House Plan B1012 The Eagle Ridge II, Barna Log House Plan
Please log in or create account to add the product in wishlist.
Wishlist is not saved permanently yet. Please log in or create account to save it.
Or order by phone: (870) 931-5777
Floor Plans
Description
NDG B1012
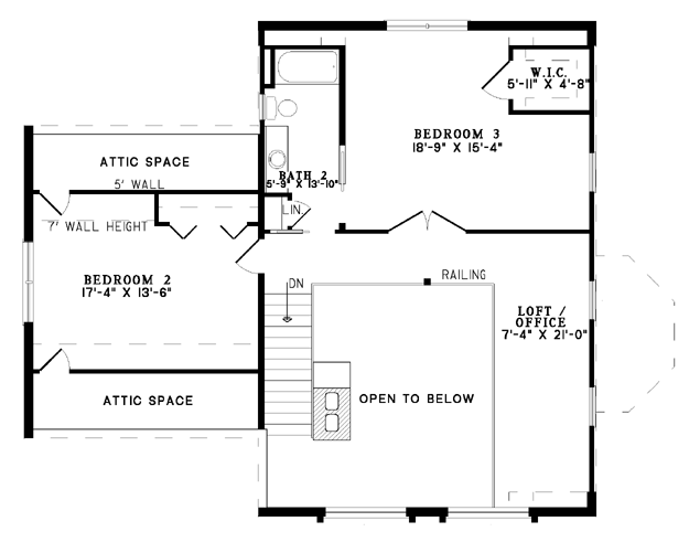
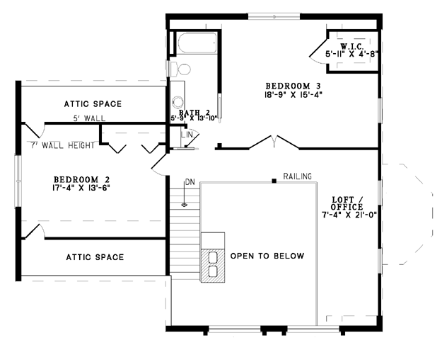
A stunning addition to our Barna Log House Collection, The Eagle Ridge II first welcomes you with a light wood exterior, picture frame windows, and a wrap-around deck for look of Southern charm. Stepping inside from the Deck, you will find yourself in the open floor plan, incorporating the Dining Room, Kitchen, and Great Room into one space. The Great Room features a stone fireplace and cozy Sitting Area for family to enjoy quality time together, while an angled eat-at bar counter separates the Kitchen from the Dining Room for plenty of gathering opportunities. Nearby you will find a Laundry/Mudroom accessing the Deck near the Entry Porch, ensuring those dirty shoes never go too far inside. On the left side of The Eagle Ridge II is your Master Suite, where a spacious bedroom leads out onto the Deck and a walk-in closet offers plenty of wardrobe space. The Master Bath features a relaxing corner shower and can also be accessed from the Dining Room. The upper level houses a Loft/Office that is open to the open floor plan below, as well as two additional bedrooms. Bedroom 2 has tons of storage space, with a closet and two attic spaces, while Bedroom 3 boasts tons of space, a walk-in closet, and a private bath with a linen closet, also accessible from the hallway. How would you customize this amazing house plan?
NOTE: Barna plans are intended for log exterior walls. Converting these to 2X6 exterior walls requires modification and will be subject to additional modification cost. Contact one of our home plan specialists today to discuss modification requirements by emailing info@nelsondesigngroup.com or calling 870-931-5777
Customizing This House Plan
Make this house plan into your dream home!
We understand that when it comes to building a home you want it to be perfect for you. Our team of experienced house plan specialists would love to be able to help you through the process of modifying this, or any of the other house plans found on our website, to better fit your needs. Whether you know the exact changes you need made or just have some ideas that would like to discuss with our team send us an email at: info@nelsondesigngroup.com or give us a call at 870-931-5777 What to know a little more about the process of customizing one of our house plans? Check out our Modifications FAQ page.
Home Specifications
- Total Living Space: 2389
- Ridge Height (Ft.) N/A
- Main Floor (Sq. Ft.): 1486 Sq.Ft
- Ridge Height (In.) 0
- Upper Floor (Sq. Ft.): 903 Sq.Ft.
- Main Ceiling Height: 8
- Lower Floor (Sq. Ft.): N/A
- Upper Ceiling Height: 8
- Porch (Sq. Ft.): 48 Sq.Ft.
- Lower Ceiling Height: N/A
- Garage (Sq. Ft.): N/A
- Garage: No
- Bonus (Sq.Ft): N/A
- Garage/Carport Type:N/A N/A
- Bedrooms: 3
- Carport: No
- Full Baths: 2
- Roof Pitch: 12:12
- Porch Roof Pitch: N/A
- Stories: 2.0
- Wall Construction: N/A
- Lower Bonus (Sq. Ft.): N/A
- Vaulted Ceiling: No
- Depth (Ft): 52
- Width (Ft): 54
- Depth (In.) N/A
- Width (In.) N/A
- Total Sq. Ft. 2437 Sq.Ft.
- Customizable: Yes
Key Features
- Decks Patios Balconies
- Formal Dining Room
- Great Room
- Home Office/Study
- Loft
- Main Floor Master
- Mudroom
- Open Floor Plan House Plans
- Peninsula/Eating Bar
- Sitting Area
- Split Bedroom Design
- Two Story
- Walk-in Closet
Plan Collections
- Barna Log House Plans Collection
Plan Styles
- Country Home House Plans
- Log Cabin House Plans
- Rustic House Plans