House Plan B1021 The Windmore, Barna Log House Plan

House Plan:NDG B1021
$1,000.00
Shipping calculated at checkout.
Add to Wishlist
[View Wishlist]

Or order by phone: (870) 931-5777

Floor Plans

Floor Plan #1

Description

NDG B1021

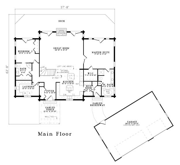
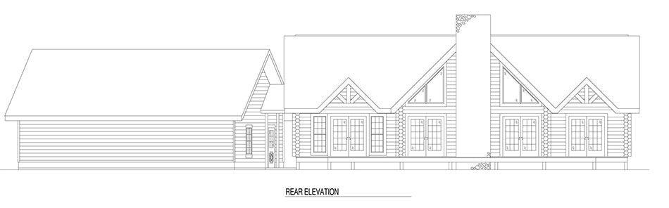
A stunning addition to our Barna Log House Collection, The Windmore has a unique layout, with an angled 3-car garage offering privacy to the right side of the home. Entering from a gabled front porch, you will find yourself in a spacious Foyer leading way to the open floor plan ahead. The huge Great Room features a cozy fireplace flanked by sliding glass doors that access the rear deck and flows seamlessly with the Kitchen. With two prep islands and tons of counterspace, this Kitchen is sure to make all your cooking dreams come true! Adjoining the Kitchen is a Mudroom with plenty of space to store shoes, coats, and backpacks. The space also accesses the gabled breezeway to the huge garage. Back inside, retire to your private Master Suite on the right side of The Windmore. With plenty of natural lighting, your mornings are sure to be peaceful, and a large walk-in closet provides plenty of wardrobe space. Relax the day away in your Master Bath, complete with a whirlpool tub and separate shower, as well as a dual sink vanity. On the opposite side of the home is Bedroom 2 with an en-suite bathroom and two spacious closets. This bathroom is also accessible from the hall, which houses the Laundry Room of your dreams! Designated space for a soaking sink and “loads” of counterspace for folding, chore day is made easy. The Loft upstairs will be the kids’ favorite place to be, with plenty of closet space for games and toys, and a railing overlooking the Great Room below will make it so easy to call them down for dinner. How would you customize this amazing house plan?

NOTE: Barna plans are intended for log exterior walls. Converting these to 2X6 exterior walls requires modification and will be subject to additional modification cost. Contact one of our home plan specialists today to discuss modification requirements by emailing info@nelsondesigngroup.com or calling 870-931-5777

Customizing This House Plan

Make this house plan into your dream home!

We understand that when it comes to building a home you want it to be perfect for you. Our team of experienced house plan specialists would love to be able to help you through the process of modifying this, or any of the other house plans found on our website, to better fit your needs. Whether you know the exact changes you need made or just have some ideas that would like to discuss with our team send us an email at: info@nelsondesigngroup.com or give us a call at 870-931-5777 What to know a little more about the process of customizing one of our house plans? Check out our Modifications FAQ page.

Home Specifications

  • Total Living Space: 2402
  • Ridge Height (Ft.) N/A
  • Main Floor (Sq. Ft.): 2128 Sq.Ft
  • Ridge Height (In.) 0
  • Upper Floor (Sq. Ft.): 274 Sq.Ft.
  • Main Ceiling Height: 8
  • Lower Floor (Sq. Ft.): N/A
  • Upper Ceiling Height: 8
  • Porch (Sq. Ft.): 168 Sq.Ft.
  • Lower Ceiling Height: N/A
  • Garage (Sq. Ft.): 960 Sq.Ft.
  • Garage: 3 Bay Yes
  • Bonus (Sq.Ft): N/A
  • Garage/Carport Type:Angled and Detatched Angled and Detatched
  • Bedrooms: 2
  • Carport: N/A
  • Full Baths: 2
  • Roof Pitch: 12:12
  • Porch Roof Pitch: N/A
  • Stories: 1.0
  • Wall Construction: N/A
  • Lower Bonus (Sq. Ft.): N/A
  • Vaulted Ceiling: No
  • Depth (Ft): 63
  • Width (Ft): 57
  • Depth (In.) 8
  • Width (In.) 8
  • Total Sq. Ft. 3530 Sq.Ft.
  • Customizable: Yes

Key Features

  • Covered Front Porch
  • Decks Patios Balconies
  • Great Room
  • Kitchen Island
  • Loft
  • Main Floor Master
  • Mudroom
  • No Formal Dining
  • Open Floor Plan House Plans
  • Split Bedroom Design
  • Walk-in Closet

Plan Collections

  • Barna Log House Plans Collection

Plan Styles

  • Craftsman House Plans
  • Mountain House Plans
  • Rustic House Plans

Plan Spec Download

PLAN SPEC DOWNLOAD

Customize This Plan

Need to make changes? We will get you a free price quote!

MODIFY THIS PLAN