House Plan B1025 The Lynnewood, Barna Log House Plan

House Plan:NDG B1025
$1,100.00
Shipping calculated at checkout.
Add to Wishlist
[View Wishlist]

Or order by phone: (870) 931-5777

Floor Plans

Floor Plan #1

Description

NDG B1025

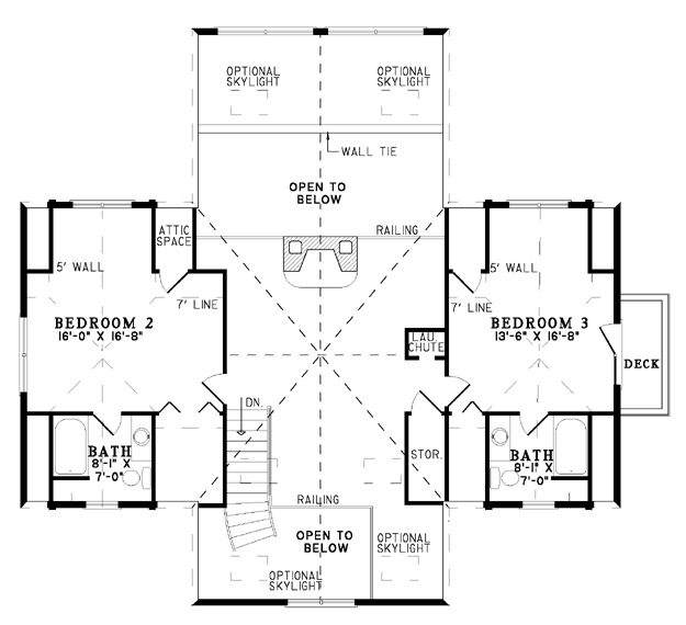
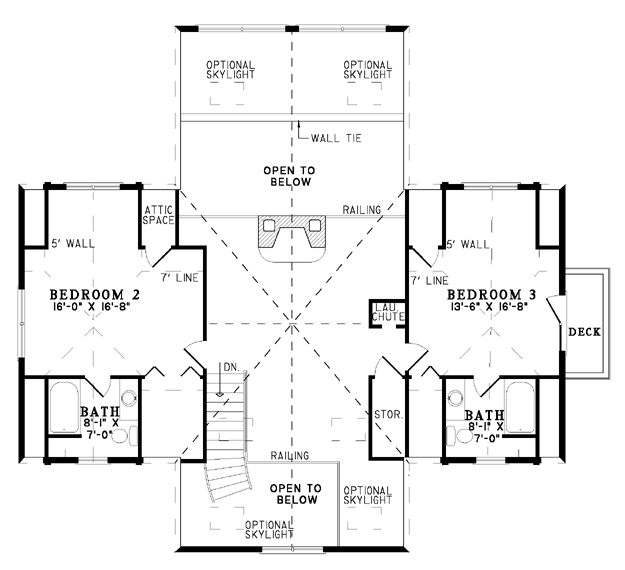
A stunning addition to our Barna Log House Collection, The Lynnewood is sure to wow, with a vaulted front porch flanked by gable dormers. Step inside to a welcoming Foyer, where your guests are met with stairs to the upper level and an expansive view of the large Great Room ahead. This Great Room is accentuated by tons of natural lighting coming from picture frame windows and sliding glass doors that look out onto the huge rear Deck. With a ceiling open to a pair of skylights above, this space is perfect for entertaining! To the left, you will find your dream Kitchen, complete with an angled bar top with seating for 4, a center prep island, and tons of counterspace. A Dining area is also open to this space, with easy access to the Deck and Screened Porch for grilling and outdoor meals. On the opposite side of The Lynnewood, you will find your private Master Suite. The master bedroom is huge, with a large walk-in closet, access to the rear Deck, and a convenient laundry chute. The Master Bath is nothing short of luxury and features a whirlpool tub beside a bay window, as well as a separate corner shower. Heading upstairs, you will find Bedrooms 2 and 3 opposite each other, each with their own private bath. Bedroom 2 enjoys a huge walk-in closet, while Bedroom 3 has a private balcony deck overlooking the right side of the property. How would you customize this amazing house plan?

NOTE: Barna plans are intended for log exterior walls. Converting these to 2X6 exterior walls requires modification and will be subject to additional modification cost. Contact one of our home plan specialists today to discuss modification requirements by emailing info@nelsondesigngroup.com or calling 870-931-5777

Customizing This House Plan

Make this house plan into your dream home!

We understand that when it comes to building a home you want it to be perfect for you. Our team of experienced house plan specialists would love to be able to help you through the process of modifying this, or any of the other house plans found on our website, to better fit your needs. Whether you know the exact changes you need made or just have some ideas that would like to discuss with our team send us an email at: info@nelsondesigngroup.com or give us a call at 870-931-5777 What to know a little more about the process of customizing one of our house plans? Check out our Modifications FAQ page.

Home Specifications

  • Total Living Space: 2569
  • Ridge Height (Ft.) N/A
  • Main Floor (Sq. Ft.): 1690 Sq.Ft
  • Ridge Height (In.) 0
  • Upper Floor (Sq. Ft.): 879 Sq.Ft.
  • Main Ceiling Height: 8
  • Lower Floor (Sq. Ft.): N/A
  • Upper Ceiling Height: 8
  • Porch (Sq. Ft.): N/A
  • Lower Ceiling Height: N/A
  • Garage (Sq. Ft.): N/A
  • Garage: No
  • Bonus (Sq.Ft): N/A
  • Garage/Carport Type:N/A N/A
  • Bedrooms: 3
  • Carport: N/A
  • Full Baths: 1
  • Roof Pitch: 12:12
  • Half Baths: 3
  • Porch Roof Pitch: N/A
  • Stories: 1.5
  • Wall Construction: N/A
  • Lower Bonus (Sq. Ft.): N/A
  • Vaulted Ceiling: No
  • Depth (Ft): 61
  • Width (Ft): 57
  • Depth (In.) 2
  • Width (In.) N/A
  • Total Sq. Ft. 2569 Sq.Ft.
  • Customizable: Yes

Key Features

  • Covered Front Porch
  • Decks Patios Balconies
  • Formal Dining Room
  • Great Room
  • Kitchen Island
  • Main Floor Master
  • Open Floor Plan House Plans
  • Peninsula/Eating Bar
  • Screened Porch
  • Split Bedroom Design
  • Walk-in Closet

Plan Collections

  • Barna Log House Plans Collection

Plan Styles

  • Country Home House Plans
  • Farmhouse House Plans
  • Log Cabin House Plans
  • Mountain House Plans
  • Rustic House Plans

Plan Spec Download

PLAN SPEC DOWNLOAD

Customize This Plan

Need to make changes? We will get you a free price quote!

MODIFY THIS PLAN