House Plan B1043 The Olympiad II, Barna Log House Plan

House Plan:NDG B1043
$800.00
Shipping calculated at checkout.
Add to Wishlist
[View Wishlist]

Or order by phone: (870) 931-5777

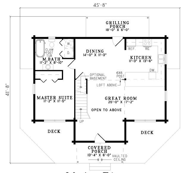
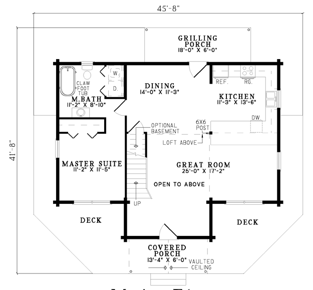
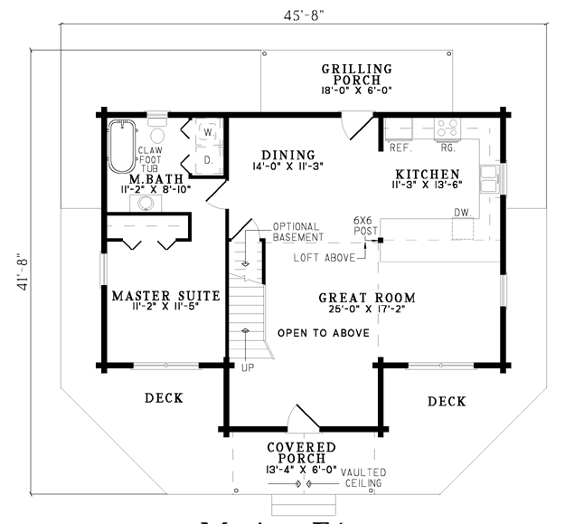
Floor Plans

Floor Plan #1

Description

NDG B1043

A stunning addition to our Barna Log House Collection, The Olympiad II first welcomes you onto a wrap-around Deck with stone steps and a gorgeous vaulted ceiling with log accents. Inside, you will find yourself in a spacious open floor plan, where the Great Room serves as a lovely focal point and front- and side-facing windows provide plenty of natural light. A 6x6 post, along with the loft line separate this space from the Kitchen/Dining, where you will enjoy plenty of counterspace and access to the cozy Grilling Porch outside. On the left side of The Olympiad II, your Master Suite awaits! The spacious master bedroom has a modest step-in closet and a nice view of the front Deck, while the Master Bath boasts a clawfoot tub and your own washer and dryer! Upstairs, you will find a Loft space, perfect for the kids, that adjoins to a full bath, also with a washer and dryer. While both bedrooms enjoy ample closet space and a cozy dormer, Bedroom 3 is larger in size, suitable for an older child, or as a shared room. How would you customize this amazing house plan?

NOTE: Barna plans are intended for log exterior walls. Converting these to 2X6 exterior walls requires modification and will be subject to additional modification cost. Contact one of our home plan specialists today to discuss modification requirements by emailing info@nelsondesigngroup.com or calling 870-931-5777

Customizing This House Plan

Make this house plan into your dream home!

We understand that when it comes to building a home you want it to be perfect for you. Our team of experienced house plan specialists would love to be able to help you through the process of modifying this, or any of the other house plans found on our website, to better fit your needs. Whether you know the exact changes you need made or just have some ideas that would like to discuss with our team send us an email at: info@nelsondesigngroup.com or give us a call at 870-931-5777 What to know a little more about the process of customizing one of our house plans? Check out our Modifications FAQ page.

Home Specifications

  • Total Living Space: 1665
  • Ridge Height (Ft.) N/A
  • Main Floor (Sq. Ft.): 1002 Sq.Ft
  • Ridge Height (In.) 0
  • Upper Floor (Sq. Ft.): 663 Sq.Ft.
  • Main Ceiling Height: 8
  • Lower Floor (Sq. Ft.): N/A
  • Upper Ceiling Height: 8
  • Porch (Sq. Ft.): 186 Sq.Ft.
  • Lower Ceiling Height: N/A
  • Garage (Sq. Ft.): N/A
  • Garage: No
  • Bonus (Sq.Ft): N/A
  • Garage/Carport Type:N/A N/A
  • Bedrooms: 3
  • Carport: N/A
  • Full Baths: 2
  • Roof Pitch: 12:12
  • Porch Roof Pitch: N/A
  • Stories: 1.5
  • Wall Construction: N/A
  • Lower Bonus (Sq. Ft.): N/A
  • Vaulted Ceiling: Yes
  • Depth (Ft): 41
  • Width (Ft): 45
  • Depth (In.) 8
  • Width (In.) 8
  • Total Sq. Ft. 1851 Sq.Ft.
  • Customizable: Yes

Key Features

  • Covered Front Porch
  • Covered Rear Porch
  • Formal Dining Room
  • Great Room
  • Grilling Porch
  • Loft
  • Main Floor Master
  • Narrow Lot House Plans
  • Open Floor Plan House Plans
  • Split Bedroom Design

Plan Collections

  • Barna Log House Plans Collection

Plan Styles

  • Country Home House Plans
  • Log Cabin House Plans
  • Rustic House Plans

Plan Spec Download

PLAN SPEC DOWNLOAD

Customize This Plan

Need to make changes? We will get you a free price quote!

MODIFY THIS PLAN