House Plan B1049 The Savannah, Barna Log House Plan
Please log in or create account to add the product in wishlist.
Wishlist is not saved permanently yet. Please log in or create account to save it.
Or order by phone: (870) 931-5777
Floor Plans
Description
NDG B1049
A stunning addition to our Barna Log House Collection, The Savannah paints a picture of trading in the hustle and bustle of the city for a cozy cabin with a wrap-around porch, where the only sound is the chirping birds. Inside creates this same feeling of serenity, with an open floor plan encouraging quality family time and a corner wood stove providing warmth to the whole Great Room space during the cold months. The rear of the open floor plan leads you into the Dining Room, where you can enjoy a great view of the 8-foot Grilling Porch and even directly access the space. The Dining Room opens into the Kitchen through an eat-at bar, making weekend grilling parties a breeze. Adjoining the Kitchen is the Laundry Room, which also accesses the Grilling Porch, perfect for transferring newly washed clothes onto a clothesline outside!
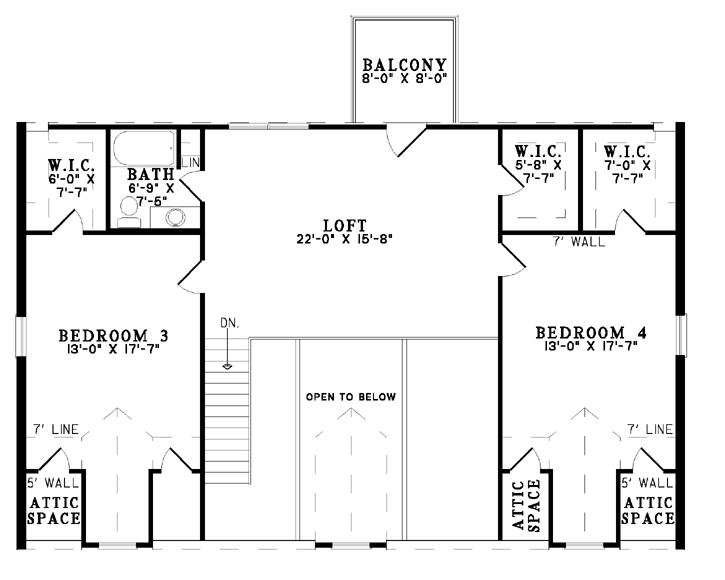
The right wing of The Savannah is occupied by the Master Suite. The spacious bedroom boasts a great view of the front porch, and side entry to the wrap-around porch gives you and your partner your own private outdoor living space. Continuing to the rear of the home plan, you will pass a linen closet and walk-in closet to enter into your luxurious Master Bath, complete with a corner whirlpool tub, separate shower, and dual sink vanity. The left side houses Bedroom 2 with a spacious closet and a hall bath. Upstairs is perfect for the kids! A large Loft would be perfect for a game room or playroom, and walk-in closet serves as a great place to store games and toys. Here you will also find a private balcony overlooking the wrap-around porch and backyard. Flanking the Loft are Bedrooms 3 and 4, which each feature a walk-in closet and two attic space closets. These bedrooms share a full bath adjacent to Bedroom 3. How would you customize this amazing house plan?
NOTE: Barna plans are intended for log exterior walls. Converting these to 2X6 exterior walls requires modification and will be subject to additional modification cost. Contact one of our home plan specialists today to discuss modification requirements by emailing info@nelsondesigngroup.com or calling 870-931-5777
Customizing This House Plan
Make this house plan into your dream home!
We understand that when it comes to building a home you want it to be perfect for you. Our team of experienced house plan specialists would love to be able to help you through the process of modifying this, or any of the other house plans found on our website, to better fit your needs. Whether you know the exact changes you need made or just have some ideas that would like to discuss with our team send us an email at: info@nelsondesigngroup.com or give us a call at 870-931-5777 What to know a little more about the process of customizing one of our house plans? Check out our Modifications FAQ page.
Home Specifications
- Total Living Space: 2741
- Ridge Height (Ft.) N/A
- Main Floor (Sq. Ft.): 1600 Sq.Ft
- Ridge Height (In.) 0
- Upper Floor (Sq. Ft.): 1141 Sq.Ft.
- Main Ceiling Height: 8
- Lower Floor (Sq. Ft.): N/A
- Upper Ceiling Height: 8
- Porch (Sq. Ft.): 1568 Sq.Ft.
- Lower Ceiling Height: N/A
- Garage (Sq. Ft.): N/A
- Garage: No
- Bonus (Sq.Ft): N/A
- Garage/Carport Type:N/A N/A
- Bedrooms: 4
- Carport: N/A
- Full Baths: 3
- Roof Pitch: 10:12
- Porch Roof Pitch: 4:12
- Stories: 1.5
- Wall Construction: N/A
- Lower Bonus (Sq. Ft.): N/A
- Vaulted Ceiling: No
- Depth (Ft): 48
- Width (Ft): 66
- Depth (In.) N/A
- Width (In.) N/A
- Total Sq. Ft. 4309 Sq.Ft.
- Customizable: Yes
Key Features
- Covered Front Porch
- Covered Rear Porch
- Formal Dining Room
- Great Room
- Grilling Porch
- Loft
- Main Floor Master
- Open Floor Plan House Plans
- Peninsula/Eating Bar
- Split Bedroom Design
- Walk-in Closet
Plan Collections
- Barna Log House Plans Collection
Plan Styles
- Country Home House Plans
- Farmhouse House Plans
- Log Cabin House Plans
- Low Country House Plans
- Mountain House Plans
- Rustic House Plans