House Plan 1126 Hickory Place, Colonial Classical Federal House Plan
Please log in or create account to add the product in wishlist.
Wishlist is not saved permanently yet. Please log in or create account to save it.
Or order by phone: (870) 931-5777
Floor Plans
Description
House Plan 1126 Hickory Place – Spacious Craftsman Ranch with Open Living & Functional Design
Experience classic ranch style and thoughtful family living with House Plan 1126 Hickory Place, a thoughtfully designed two‑story home offering approximately 3,978 sq ft of heated living space. This inviting plan features 5 bedrooms, 3 full bathrooms, and 1 half bath, providing flexible space for family members, guests, or a home office. The welcoming covered front porch and charming exterior details set the tone for timeless curb appeal. Inside, the open layout connects the great room with dining and kitchen spaces, creating an effortless flow ideal for everyday living and entertaining. The private master suite offers a well‑appointed bath and generous closet space, while secondary bedrooms provide comfort and privacy. Additional features such as a dedicated laundry room, ample storage, and a side‑load 3‑car garage enhance convenience and functionality. Hickory Place combines attractive design with practical living for modern lifestyles.
Key Features
• Approximately 3,978 sq ft of heated living space
• 5 bedrooms, 3 full bathrooms, and 1 half bath
• Open great room, kitchen, and dining area
• Private master suite with well‑appointed bath and generous closet
• Secondary bedrooms with comfortable layouts
• Dedicated laundry room for everyday convenience
• Side‑load 3‑car garage for parking and storage
• Covered front porch for outdoor enjoyment
• Ample storage throughout
Home Specifications
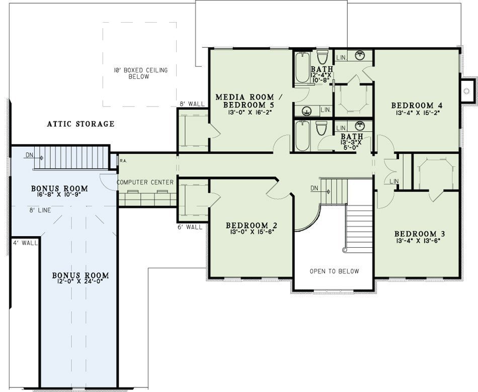
- Total Living Space: 3978
- Ridge Height (Ft.) 35
- Main Floor (Sq. Ft.): 2500 Sq.Ft
- Ridge Height (In.) 6
- Upper Floor (Sq. Ft.): 1478 Sq.Ft.
- Main Ceiling Height: 9
- Lower Floor (Sq. Ft.): N/A
- Upper Ceiling Height: 9
- Porch (Sq. Ft.): 249 Sq.Ft.
- Lower Ceiling Height: N/A
- Garage (Sq. Ft.): 803 Sq.Ft.
- Garage: 3 Bay Yes
- Bonus (Sq.Ft): 508 Sq.Ft.
- Garage/Carport Type:Side Load Side Load
- Bedrooms: 5
- Carport: N/A
- Full Baths: 3
- Roof Pitch: 10:12
- Half Baths: 1
- Porch Roof Pitch: N/A
- Stories: 2.0
- Wall Construction: 2x4
- Lower Bonus (Sq. Ft.): N/A
- Vaulted Ceiling: No
- Depth (Ft): 61
- Width (Ft): 73
- Depth (In.) 2
- Width (In.) 10
- Total Sq. Ft. 5538 Sq.Ft.
- Customizable: Yes
Key Features
- Bonus Room Over Garage
- Covered Front Porch
- Covered Rear Porch
- Formal Dining Room
- Great Room
- Grilling Porch
- Home Office/Study
- Jack & Jill Bathroom
- Main Floor Master
- Media Room
- Mudroom
- Nook/Breakfast Area
- Open Floor Plan House Plans
- Peninsula/Eating Bar
- Split Bedroom Design
- Walk-in Closet
Plan Collections
Plan Styles
- Classical House Plans
- Colonial Classical Federal House Plans
- Luxury House Plans
- Traditional House Plans









