House Plan 1222 Augustus, Village at Windstone III House Plan
Please log in or create account to add the product in wishlist.
Wishlist is not saved permanently yet. Please log in or create account to save it.
Or order by phone: (870) 931-5777
Floor Plans
Description
NDG 1222 Augustus – A Spacious, Traditional House Plan Designed for Family Comfort
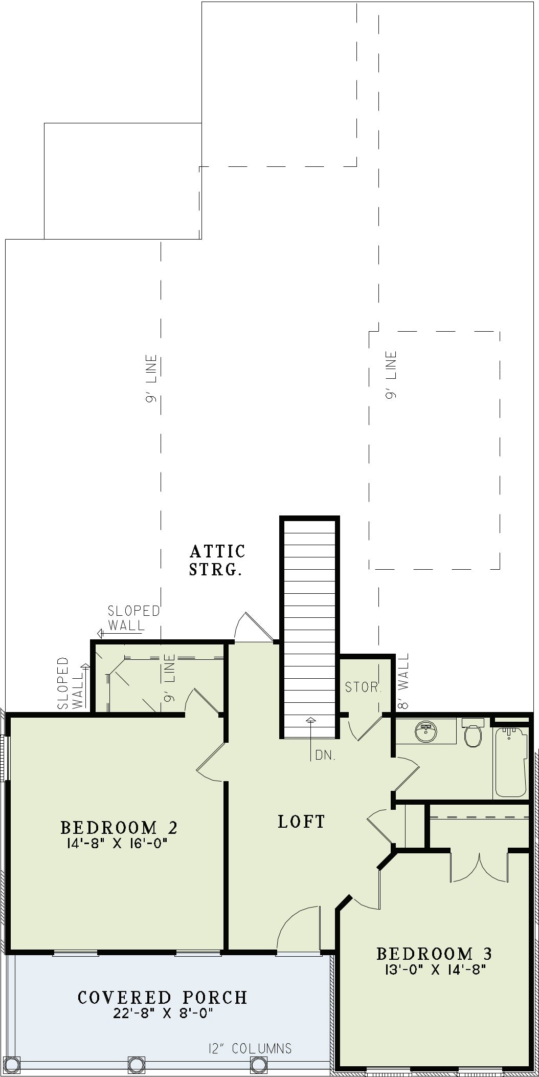
NDG 1222 Augustus is a beautifully crafted 1.5-story house plan offering 2,607 square feet of well-designed living space. This elegant traditional house plan is ideal for families who want a home that blends timeless architecture, functional layout, and generous room sizes. With four bedrooms and three full bathrooms, this house plan provides plenty of space for growing families, visiting guests, or homeowners who need additional flexibility for hobbies or work-from-home needs.
A striking two-level front porch with an upper balcony gives this house plan standout curb appeal and invites homeowners and visitors to enjoy outdoor relaxation. Inside, a spacious great room with a brick fireplace and media center offers a warm, inviting atmosphere for everyday living or entertaining. The large dining room and well-appointed kitchen support both casual meals and special gatherings, while the overall layout creates a comfortable balance between shared spaces and private retreats.
NDG 1222 Augustus is a thoughtfully designed house plan that blends traditional character with modern convenience, making it an excellent choice for families seeking long-term comfort and style.
Key Highlights of House Plan NDG 1222 Augustus
- 1.5-story house plan with approximately 2,607 sq. ft. of living space
- Four bedrooms and three full bathrooms for comfortable family living
- Impressive two-level front porch with upper balcony for added charm
- Spacious great room featuring a brick fireplace and media center
- Large dining room and well-designed kitchen ideal for everyday use and entertaining
- Functional layout with a clear balance between shared gathering spaces and private bedrooms
- Traditional architectural style that offers timeless appeal
- Versatile house plan suited for families, entertainers, or homeowners seeking room to grow
Home Specifications
- Total Living Space: 2607
- Ridge Height (Ft.) 33
- Main Floor (Sq. Ft.): 1812 Sq.Ft
- Ridge Height (In.) 5
- Upper Floor (Sq. Ft.): 795 Sq.Ft.
- Main Ceiling Height: 10
- Lower Floor (Sq. Ft.): N/A
- Upper Ceiling Height: 9
- Porch (Sq. Ft.): 449 Sq.Ft.
- Lower Ceiling Height: N/A
- Garage (Sq. Ft.): N/A
- Garage: 2 Bay Yes
- Bonus (Sq.Ft): N/A
- Garage/Carport Type:Front Load Front Load
- Bedrooms: 4
- Carport: N/A
- Full Baths: 3
- Roof Pitch: 12:12
- Porch Roof Pitch: N/A
- Stories: 1.5
- Wall Construction: 2x4
- Lower Bonus (Sq. Ft.): N/A
- Vaulted Ceiling: No
- Depth (Ft): 73
- Width (Ft): 36
- Depth (In.) 6
- Width (In.) 4
- Total Sq. Ft. 3513 Sq.Ft.
- Customizable: Yes
Key Features
- Covered Front Porch
- Covered Rear Porch
- Formal Dining Room
- Great Room
- Grilling Porch
- Home Office/Study
- Loft
- Main Floor Master
- Narrow Lot House Plans
- Nook/Breakfast Area
- Open Floor Plan House Plans
- Peninsula/Eating Bar
- Split Bedroom Design
- Walk-in Closet
- Walk-in-Pantry
Plan Collections
- Village at Windstone III House Plans Collection
Plan Styles
- Colonial Classical Federal House Plans
- Country Home House Plans
- Farmhouse House Plans
- Southern House Plans
- Traditional House Plans
- Traditional Neighborhood Design (TND) House Plans




