House Plan 564 Brittany Lane, Traditional House Plan
Please log in or create account to add the product in wishlist.
Wishlist is not saved permanently yet. Please log in or create account to save it.
Or order by phone: (870) 931-5777
Floor Plans
Description
House Plan 564 Brittany Lane – Elegant 5‑Bedroom Traditional House Plan | NDG 564
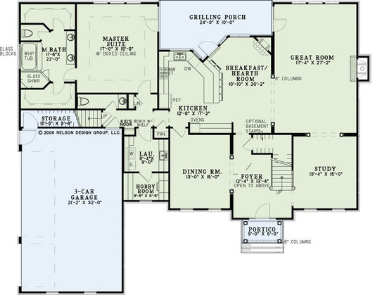
Experience luxury living with House Plan 564 Brittany Lane (Plan NDG 564), a stunning 5‑bedroom house plan that combines classic architectural style with thoughtful family‑oriented design. This spacious two‑story home offers 5 bedrooms, 3 full baths, and 1 half bath within approximately 3,283 sq ft of total living space, plus a 3‑bay front‑load garage and generous porch areas that enhance both curb appeal and outdoor enjoyment.
Designed for both comfort and style, this plan features a chef‑inspired kitchen with bar seating and a large walk‑in pantry, separated from the formal dining room by a convenient butler’s pantry — perfect for entertaining and everyday meals. The main‑floor master suite includes dual walk‑in closets and direct access to an adjoining study or nursery for versatile living space, while upstairs, three additional bedrooms share a well‑designed bath and enjoy easy access to a library wall and computer room area.
Additional highlights include a bonus room over the garage, covered front and rear porches, a grilling porch for outdoor dining, and a mudroom that adds practical convenience. With its open floor plan, classic styling, and flexible living spaces, House Plan 564 Brittany Lane ranks among desirable house plans for homeowners seeking a blend of elegance, comfort, and everyday functionality.
Home Specifications
- Total Living Space: 3283
- Ridge Height (Ft.) 32
- Main Floor (Sq. Ft.): 2184 Sq.Ft
- Ridge Height (In.) 0
- Upper Floor (Sq. Ft.): 1099 Sq.Ft.
- Main Ceiling Height: 9
- Lower Floor (Sq. Ft.): N/A
- Upper Ceiling Height: 8
- Porch (Sq. Ft.): 279 Sq.Ft.
- Lower Ceiling Height: N/A
- Garage (Sq. Ft.): 822 Sq.Ft.
- Garage: 3 Bay Yes
- Bonus (Sq.Ft): 494 Sq.Ft.
- Garage/Carport Type:Front Load Front Load
- Bedrooms: 5
- Carport: N/A
- Full Baths: 3
- Roof Pitch: 10:12
- Half Baths: 1
- Porch Roof Pitch: 10:12
- Stories: 2.0
- Wall Construction: 2x4
- Lower Bonus (Sq. Ft.): N/A
- Vaulted Ceiling: No
- Depth (Ft): 52
- Width (Ft): 69
- Depth (In.) 10
- Width (In.) N/A
- Total Sq. Ft. 4878 Sq.Ft.
- Customizable: Yes
Key Features
- Bonus Room Over Garage
- Butler's Pantry
- Covered Front Porch
- Covered Rear Porch
- Formal Dining Room
- Great Room
- Grilling Porch
- Home Office/Study
- Jack & Jill Bathroom
- Main Floor Master
- Mudroom
- Nook/Breakfast Area
- Open Floor Plan House Plans
- Peninsula/Eating Bar
- Split Bedroom Design
- Walk-in Closet
- Walk-in-Pantry
Plan Collections
Plan Styles
- Colonial Classical Federal House Plans
- Country Home House Plans
- French Traditional House Plans
- Traditional House Plans









