House Plan 591 Hampton Circle, Traditional Home Plan
Please log in or create account to add the product in wishlist.
Wishlist is not saved permanently yet. Please log in or create account to save it.
Or order by phone: (870) 931-5777
Floor Plans
Description
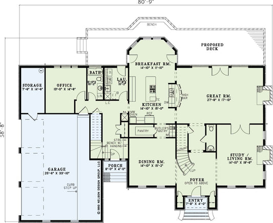
This home beckons you into the grand foyer accented by corner niches. The great room pleads for entertaining opportunities with media center. The kitchen features a large pantry and the snack bar opens to the fireplace accented hearth room. The master suite affords entry to the rear-grilling porch while the bath stands ready for relaxation in the whirlpool tub, glass shower and large walk-in closet. Ascending the stairway the remaining bedrooms share full bath access and central computer center. A game/TV room stands ready for entertaining with window seat accents. Attic storage and future space completes the design.
Home Specifications
- Total Living Space: 3946
- Ridge Height (Ft.) 40
- Main Floor (Sq. Ft.): 2636 Sq.Ft
- Ridge Height (In.) 0
- Upper Floor (Sq. Ft.): 1310 Sq.Ft.
- Main Ceiling Height: 9
- Lower Floor (Sq. Ft.): N/A
- Upper Ceiling Height: 8
- Porch (Sq. Ft.): 432 Sq.Ft.
- Lower Ceiling Height: N/A
- Garage (Sq. Ft.): 842 Sq.Ft.
- Garage: 3 Bay Yes
- Bonus (Sq.Ft): 539 Sq.Ft.
- Garage/Carport Type:Side Load Side Load
- Bedrooms: 5
- Carport: N/A
- Full Baths: 3
- Roof Pitch: 12:12
- Half Baths: 1
- Porch Roof Pitch: N/A
- Stories: 2.0
- Wall Construction: 2x4
- Lower Bonus (Sq. Ft.): N/A
- Vaulted Ceiling: No
- Depth (Ft): 89
- Width (Ft): 69
- Depth (In.) 10
- Width (In.) 4
- Total Sq. Ft. 5759 Sq.Ft.
- Customizable: Yes
Key Features
- Bonus Room Over Garage
- Covered Front Porch
- Covered Rear Porch
- Formal Dining Room
- Game Room
- Great Room
- Grilling Porch
- Home Office/Study
- Main Floor Master
- Mudroom
- Open Floor Plan House Plans
- Peninsula/Eating Bar
- Split Bedroom Design
- Walk-in Closet
- Walk-in-Pantry
Plan Collections
Plan Styles
- Classical House Plans
- Colonial Classical Federal House Plans
- Traditional House Plans









