House Plan 598 Brittany Lane, Classical Home Plan
Please log in or create account to add the product in wishlist.
Wishlist is not saved permanently yet. Please log in or create account to save it.
Or order by phone: (870) 931-5777
Floor Plans
Description
House Plan 598 Brittany Lane – Classic 4‑Bedroom House Plan | NDG 598
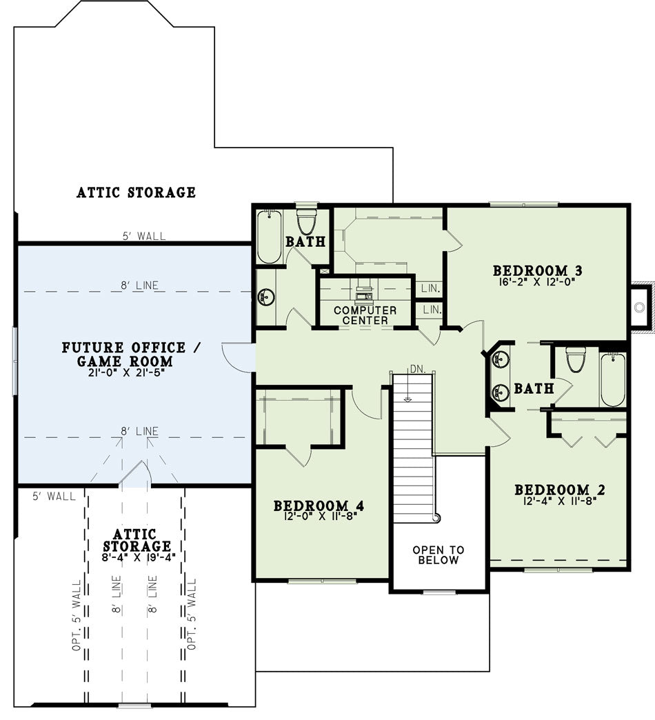
Introduce timeless appeal and thoughtful design with House Plan 598 Brittany Lane, a charming 4‑bedroom house plan that blends classic architectural style with modern family functionality. This two‑story home delivers 4 bedrooms and 3 full baths across approximately 2,952 sq ft of total living space, featuring a 2‑bay garage and flexible layout ideal for everyday comfort, entertaining, and family life.
The open floor plan creates a seamless flow between living areas, making daily routines and gatherings effortless. A spacious great room provides a central gathering space perfect for relaxing or hosting guests, while the adjacent dining area and well‑designed kitchen offer both convenience and style. Each bedroom is thoughtfully proportioned for comfort and privacy, with easy access to full bathrooms that support family life and accommodate visitors.
Practical features such as generous closet storage, versatile living spaces, and a 2‑bay garage enhance everyday living. With its balanced proportions, timeless exterior details, and functional design, House Plan 598 Brittany Lane stands out among house plans for homeowners seeking a blend of traditional charm, spacious interiors, and thoughtful layout for modern living.
Home Specifications
- Total Living Space: 2952
- Ridge Height (Ft.) 32
- Main Floor (Sq. Ft.): 1930 Sq.Ft
- Ridge Height (In.) 7
- Upper Floor (Sq. Ft.): 1022 Sq.Ft.
- Main Ceiling Height: 9
- Lower Floor (Sq. Ft.): N/A
- Upper Ceiling Height: 8
- Porch (Sq. Ft.): 377 Sq.Ft.
- Lower Ceiling Height: N/A
- Garage (Sq. Ft.): 572 Sq.Ft.
- Garage: 2 Bay Yes
- Bonus (Sq.Ft): 471 Sq.Ft.
- Garage/Carport Type:Side Load Side Load
- Bedrooms: 4
- Carport: N/A
- Full Baths: 3
- Roof Pitch: 9:12
- Half Baths: 1
- Porch Roof Pitch: 9:12
- Stories: 2.0
- Wall Construction: 2x4
- Lower Bonus (Sq. Ft.): N/A
- Vaulted Ceiling: No
- Depth (Ft): 63
- Width (Ft): 57
- Depth (In.) 4
- Width (In.) 2
- Total Sq. Ft. 4372 Sq.Ft.
- Customizable: Yes
Key Features
- Bonus/Game and Media Room
- Covered Front Porch
- Covered Rear Porch
- Decks Patios Balconies
- Formal Dining Room
- Game Room
- Great Room
- Home Office/Study
- Jack & Jill Bathroom
- Main Floor Master
- Nook/Breakfast Area
- Open Floor Plan House Plans
- Peninsula/Eating Bar
- Sitting Area
- Split Bedroom Design
- Walk-in Closet
- Walk-in-Pantry
Plan Collections
Plan Styles
- Classical House Plans
- Colonial Classical Federal House Plans
- Country Home House Plans
- Southern House Plans
- Traditional House Plans








