House Plan 704 Prestige Meadow, Classical House Plan
Please log in or create account to add the product in wishlist.
Wishlist is not saved permanently yet. Please log in or create account to save it.
Or order by phone: (870) 931-5777
Floor Plans
Description
House Plan 704 Prestige Meadow – Classical 4‑Bedroom House Plan (NDG 704)
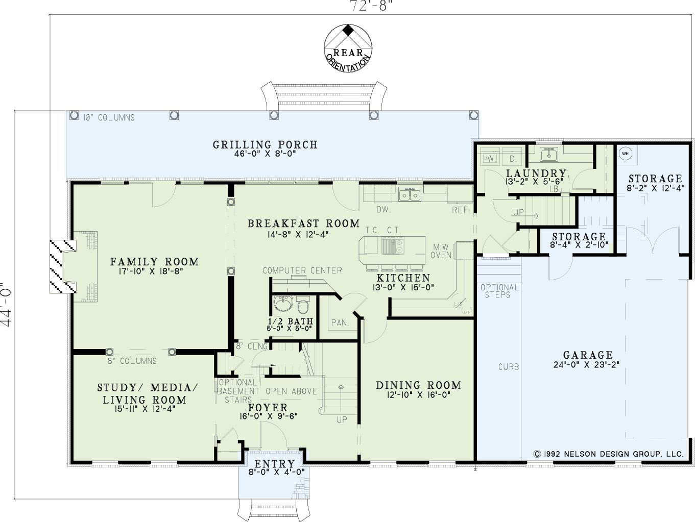
Experience timeless elegance and thoughtful design with House Plan 704 Prestige Meadow, a beautifully crafted classical and traditional house plan from Nelson Design Group that delivers both style and everyday functionality. This spacious two‑story home offers approximately 3,099 sq. ft. of living space, featuring 4 bedrooms, 3 full bathrooms, and 1 half bath, making it perfect for families who want generous interior space and flexible living options.
Step inside to discover a well‑planned layout designed for comfortable living and entertaining. The inviting family room serves as the heart of the home, complete with a fireplace and access to a rear grilling porch—ideal for indoor‑outdoor gatherings. The kitchen impresses with a large eat‑at island bar, ample counter space, and a walk‑in pantry, while a spacious formal dining room brings natural light to shared meals. Upstairs, the master suite boasts dual walk‑in closets, a whirlpool tub, and a corner glass shower. Bedrooms 2 and 3 share a Jack‑and‑Jill bathroom, and the fourth bedroom also features a walk‑in closet and shares a Jack‑and‑Jill bath with the huge home theater—offering versatile space for family and guests. With a 2‑bay side‑load garage and classic architectural details, House Plan 704 Prestige Meadow is a standout choice among sought‑after house plans for those seeking space, style, and everyday livability.
Home Specifications
- Total Living Space: 3099
- Ridge Height (Ft.) 29
- Main Floor (Sq. Ft.): 1603 Sq.Ft
- Ridge Height (In.) 3
- Upper Floor (Sq. Ft.): 1496 Sq.Ft.
- Main Ceiling Height: 9
- Lower Floor (Sq. Ft.): N/A
- Upper Ceiling Height: 8
- Porch (Sq. Ft.): 384 Sq.Ft.
- Lower Ceiling Height: N/A
- Garage (Sq. Ft.): 748 Sq.Ft.
- Garage: 2 Bay Yes
- Bonus (Sq.Ft): 439 Sq.Ft.
- Garage/Carport Type:Side Load Side Load
- Bedrooms: 4
- Carport: N/A
- Full Baths: 3
- Roof Pitch: 8:12
- Half Baths: 1
- Porch Roof Pitch: N/A
- Stories: 2.0
- Wall Construction: 2x4
- Lower Bonus (Sq. Ft.): N/A
- Vaulted Ceiling: No
- Depth (Ft): 44
- Width (Ft): 72
- Depth (In.) N/A
- Width (In.) 8
- Total Sq. Ft. 4670 Sq.Ft.
- Customizable: Yes
Key Features
- Covered Rear Porch
- Formal Dining Room
- Grilling Porch
- Home Office/Study
- Home Theater
- Jack & Jill Bathroom
- Kitchen Island
- Media Room
- Nook/Breakfast Area
- Open Floor Plan House Plans
- Peninsula/Eating Bar
- Walk-in Closet
- Walk-in-Pantry
Plan Collections
Plan Styles
- Classical House Plans
- Colonial Classical Federal House Plans
- Luxury House Plans
- Traditional House Plans









