House Plan 361 Dogwood Avenue, Classical House Plan
House Plan:NDG 361
$1,550.00
/
Add to Wishlist
Remove from Wishlist
[View Wishlist]
Please log in or create account to add the product in wishlist.
Wishlist is not saved permanently yet. Please log in or create account to save it.
Or order by phone: (870) 931-5777
Floor Plans
Description
Grand, Classical House Plans — House Plan NDG 361 “Dogwood Avenue”
If you’re seeking a showpiece among house plans—one that combines classical elegance, size, and thoughtful layout—House Plan NDG 361 “Dogwood Avenue” makes a compelling statement. This two-story, 5-bedroom design offers 4,155 square feet of living area, with 3 full baths, 1 half bath, and a 3-bay side-load garage—crafted for families who demand style, comfort, and plenty of room to grow.
Signature Features & Design Highlights
- Distinguished curb appeal: Bay windows in the formal living and dining rooms add architectural flair, bringing character and light into the heart of the home.
- Grand main-floor living: The entry foyer leads you into formal living and dining spaces, while a wall‑length window seat invites cozy mornings of reflection and natural light.
- Blend of public & private zones: Main-floor spaces include a computer center overlooking family areas, a private office, and a game room—perfect for work, play, or relaxation without compromising flow.
- Luxurious master retreat: The master bath offers a corner whirlpool tub and a corner glass shower, creating a spa-like escape at the end of your day.
Home Specifications
- Total Living Space: 4155
- Ridge Height (Ft.) 30
- Main Floor (Sq. Ft.): 2952 Sq.Ft
- Ridge Height (In.) 4
- Upper Floor (Sq. Ft.): 1203 Sq.Ft.
- Main Ceiling Height: 9
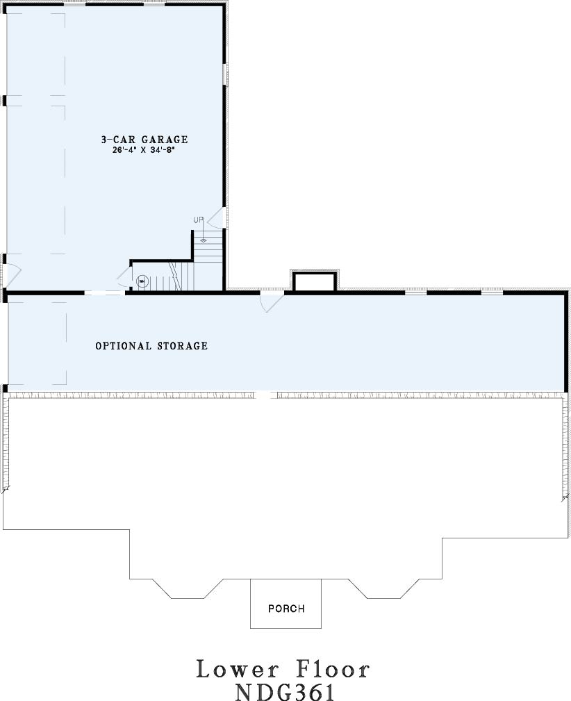
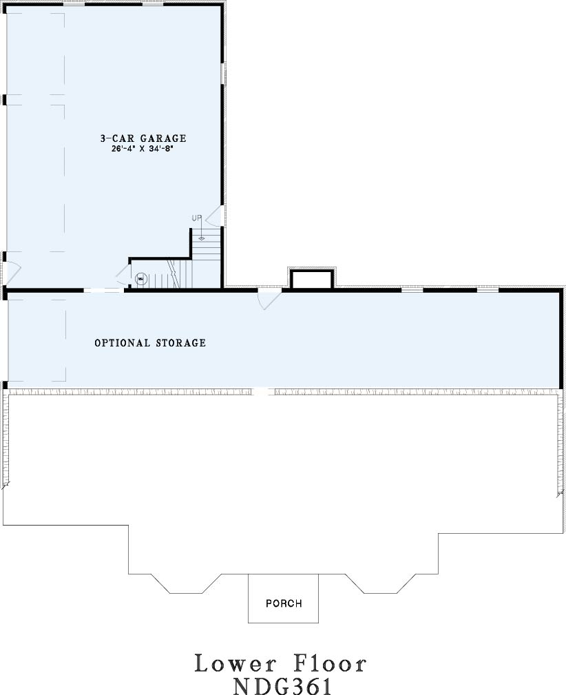
- Lower Floor (Sq. Ft.): N/A
- Upper Ceiling Height: 8
- Porch (Sq. Ft.): 348 Sq.Ft.
- Lower Ceiling Height: 8
- Garage (Sq. Ft.): 1220 Sq.Ft.
- Garage: 3 Bay Yes
- Bonus (Sq.Ft): N/A
- Garage/Carport Type:Side Load Side Load
- Bedrooms: 5
- Carport: N/A
- Full Baths: 3
- Roof Pitch: 8:12
- Half Baths: 1
- Porch Roof Pitch: 8:12
- Stories: 2.0
- Wall Construction: 2x4
- Lower Bonus (Sq. Ft.): 1885 Sq.Ft.
- Vaulted Ceiling: No
- Depth (Ft): 76
- Width (Ft): 68
- Depth (In.) N/A
- Width (In.) 8
- Total Sq. Ft. 7608 Sq.Ft.
- Customizable: Yes
Key Features
- Covered Front Porch
- Decks Patios Balconies
- Formal Dining Room
- Game Room
- Great Room
- Home Office/Study
- Jack & Jill Bathroom
- Kitchen Island
- Main Floor Master
- Nook/Breakfast Area
- Open Floor Plan House Plans
- Peninsula/Eating Bar
- Split Bedroom Design
- Walk-in Closet
- Walk-in-Pantry
Plan Collections
Plan Styles
- Classical House Plans
- Colonial Classical Federal House Plans
- European House Plans
- Luxury House Plans
- Traditional House Plans