House Plan 1303 Breckenridge, Multi-Family House Plan
Please log in or create account to add the product in wishlist.
Wishlist is not saved permanently yet. Please log in or create account to save it.
Or order by phone: (870) 931-5777
Floor Plans
Description
Breckenridge Plan NDG 1303 | Spacious, Versatile Multi‑Family House Plan
The Breckenridge house plan (Plan 1303) is a well-designed, roomy home layout — ideal for families, multi-unit developments, or anyone seeking generous, flexible living space with classic style and modern convenience.
Why Breckenridge Is a Smart Choice
- Large total living area: approximately 1,875 sq ft per unit — ample space for comfortable living
- Four bedrooms and three full bathrooms — plenty of private rooms and full-bath access for households of various sizes
- Two-bay front-load garage — practical for multiple vehicles or extra storage needs
- One-and-a-half-story design — balances generous living areas with efficient use of space
Highlights of the Breckenridge Plan
- Spacious layout accommodates family, guests, or multi-generation living with ease
- Great room, formal dining, and flexible living areas — designed for gathering, entertaining, and everyday comfort
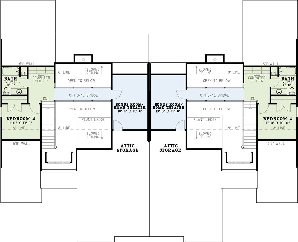
- Bonus room and additional upstairs space — ideal for media room, home office, or hobby use
- Covered front porch and rear porch — enhances curb appeal and functional outdoor living space
- Open floor plan and split-bedroom design — provides privacy for the master suite while optimizing communal spaces
Envision Life in Breckenridge
Imagine morning light filling a large great room, family dinners in a formal dining area, and separate bedrooms and baths for family or guests. With multiple living zones, a bonus room for flexibility, and a two-car garage, Breckenridge is well-suited for growing families, multi-generational households, or anyone wanting space, flexibility, and classic design.
Multi-family home
Floor Plan Specifications:
Heat/Cooled Main Floor Unit 1: 1588 SQ. FT
Heat/Cooled Upper Floor Unit 1: 287 SQ. FT
Heat/Cooled Total Unit 1: 1875 SQ. FT
Garage, Storage Unit 1: 480 SQ. FT
Porches Unit 1: 280 SQ. FT
Total Unit 1: 2635 SQ. FT
Bonus Room & Bridge Unit 1: 233 SQ. FT
Heat/Cooled Main Floor Unit 2: 1588 SQ. FT
Heat/Cooled Upper Floor Unit 2: 287 SQ. FT
Heat/Cooled Total Unit 2: 1875 SQ. FT
Garage, Storage Unit 2: 480 SQ. FT
Porches Unit 2: 280 SQ. FT
Total Unit 2: 2635 SQ. FT
Bonus Room & Bridge Unit 2: 233 SQ. FT
Home Specifications
- Total Living Space: 1875
- Ridge Height (Ft.) 26
- Main Floor (Sq. Ft.): 1588 Sq.Ft
- Ridge Height (In.) 0
- Upper Floor (Sq. Ft.): 287 Sq.Ft.
- Main Ceiling Height: 9
- Lower Floor (Sq. Ft.): N/A
- Upper Ceiling Height: 8
- Porch (Sq. Ft.): 280 Sq.Ft.
- Lower Ceiling Height: N/A
- Garage (Sq. Ft.): 480 Sq.Ft.
- Garage: 2 Bay Yes
- Bonus (Sq.Ft): 233 Sq.Ft.
- Garage/Carport Type:Front Load Front Load
- Bedrooms: 4
- Carport: N/A
- Full Baths: 3
- Roof Pitch: 10:12
- Porch Roof Pitch: N/A
- Stories: 1.5
- Wall Construction: 2x4
- Lower Bonus (Sq. Ft.): N/A
- Vaulted Ceiling: No
- Depth (Ft): 68
- Width (Ft): 84
- Depth (In.) 6
- Width (In.) 2
- Total Sq. Ft. 2635 Sq.Ft.
- Customizable: Yes
Key Features
- Bonus Room
- Covered Front Porch
- Covered Rear Porch
- Formal Dining Room
- Great Room
- Home Theater
- Main Floor Master
- Media Room
- Nook/Breakfast Area
- Open Floor Plan House Plans
- Peninsula/Eating Bar
- Split Bedroom Design
- Walk-in Closet
Plan Collections
- Multi-Family House Plans
Plan Styles
- Arts & Crafts House Plans
- Craftsman House Plans
- Traditional House Plans









