House Plan 1356 Elizabeth, Traditional House Plan
Please log in or create account to add the product in wishlist.
Wishlist is not saved permanently yet. Please log in or create account to save it.
Or order by phone: (870) 931-5777
Floor Plans
Description
Discover a Well‑Balanced Traditional House Plan: Elizabeth NDG 1356
Elizabeth (NDG 1356) is a thoughtfully designed home plan that merges classic exterior charm with a flexible, functional layout — ideal for many kinds of homeowners, from growing families to those needing bonus or guest space.
Highlights of the Elizabeth House Plan
- Total living space of approximately 2,457 square feet
- Three bedrooms and three full bathrooms
- 2‑bay front‑load garage
- One-and-a-half story design (main floor + upstairs bonus/game/media area)
- Main floor includes open‑concept living: great room, dining area, breakfast nook, and kitchen — creating a welcoming, flowing living space
- Covered front porch and covered rear porch for outdoor living and curb appeal
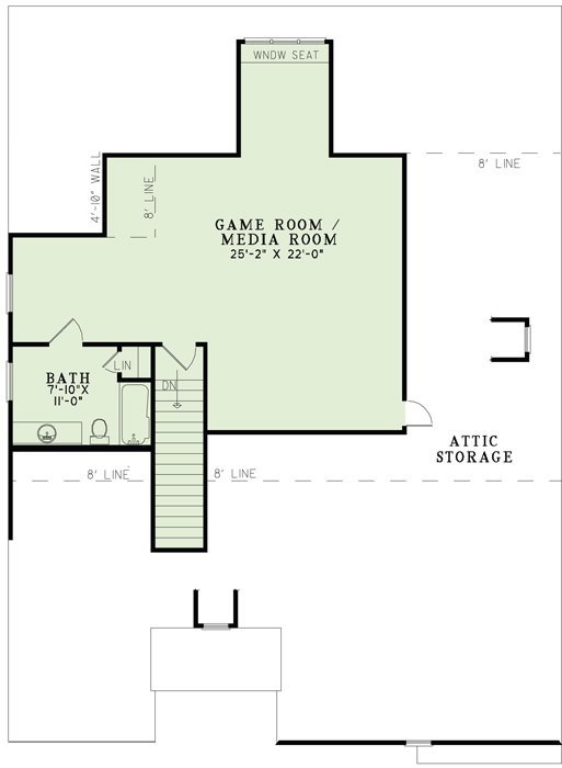
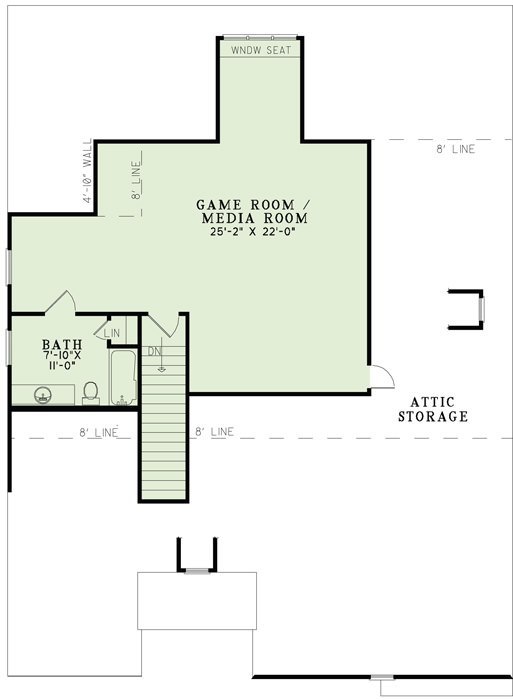
- Upstairs game/media room (or bonus room) plus a full bath — ideal for guests, children’s activities, or flexible living space
- Main-floor layout is efficient yet comfortable, balancing common living areas and private rooms
- Design suitable for many lot sizes, offering traditional styling with functional living and entertaining spaces
A House Plan Built for Flexibility, Comfort, and Classic Appeal
Elizabeth delivers an excellent balance of form and function. The open floor plan on the main level fosters easy everyday living and entertaining. Bedrooms and baths are arranged to provide privacy and convenience. The upstairs bonus room adds flexibility — perfect for use as a media room, game room, guest suite, or home office — making this plan adaptable to changing family needs or lifestyle changes.
With its modest footprint, practical layout, and classic styling, Elizabeth stands out as a versatile and appealing choice among traditional house plans, suited for families who want comfort, flexibility, and timeless design.
Home Specifications
- Total Living Space: 2457
- Ridge Height (Ft.) 24
- Main Floor (Sq. Ft.): 1738 Sq.Ft
- Ridge Height (In.) 6
- Upper Floor (Sq. Ft.): 719 Sq.Ft.
- Main Ceiling Height: 9
- Lower Floor (Sq. Ft.): N/A
- Upper Ceiling Height: 8
- Porch (Sq. Ft.): 285 Sq.Ft.
- Lower Ceiling Height: N/A
- Garage (Sq. Ft.): 528 Sq.Ft.
- Garage: 2 Bay Yes
- Bonus (Sq.Ft): N/A
- Garage/Carport Type:Front Load Front Load
- Bedrooms: 3
- Carport: N/A
- Full Baths: 3
- Roof Pitch: 10:12
- Porch Roof Pitch: 3:12
- Stories: 1.5
- Wall Construction: 2x4
- Lower Bonus (Sq. Ft.): N/A
- Vaulted Ceiling: No
- Depth (Ft): 60
- Width (Ft): 44
- Depth (In.) N/A
- Width (In.) N/A
- Total Sq. Ft. 3270 Sq.Ft.
- Customizable: Yes
Key Features
- Covered Front Porch
- Covered Rear Porch
- Formal Dining Room
- Game Room
- Great Room
- Home Office/Study
- Main Floor Master
- Media Room
- Narrow Lot House Plans
- Nook/Breakfast Area
- Open Floor Plan House Plans
- Peninsula/Eating Bar
- Walk-in Closet
Plan Collections
Plan Styles
- Craftsman House Plans
- Traditional House Plans











