House Plan 546 Willow Lane, Traditional House Plan
Please log in or create account to add the product in wishlist.
Wishlist is not saved permanently yet. Please log in or create account to save it.
Or order by phone: (870) 931-5777
Floor Plans
Description
House Plan 546 Willow Lane – Traditional 5‑Bedroom House Plan | NDG 546
Experience spacious family living with House Plan 546 Willow Lane, a beautifully designed 5‑bedroom house plan that combines traditional architectural charm with functional, modern layout. This inviting home offers 5 bedrooms and 4 full baths within approximately 3,067 sq ft of total living space, complemented by a 2‑bay courtyard garage and generous porch areas that enhance both curb appeal and outdoor enjoyment.
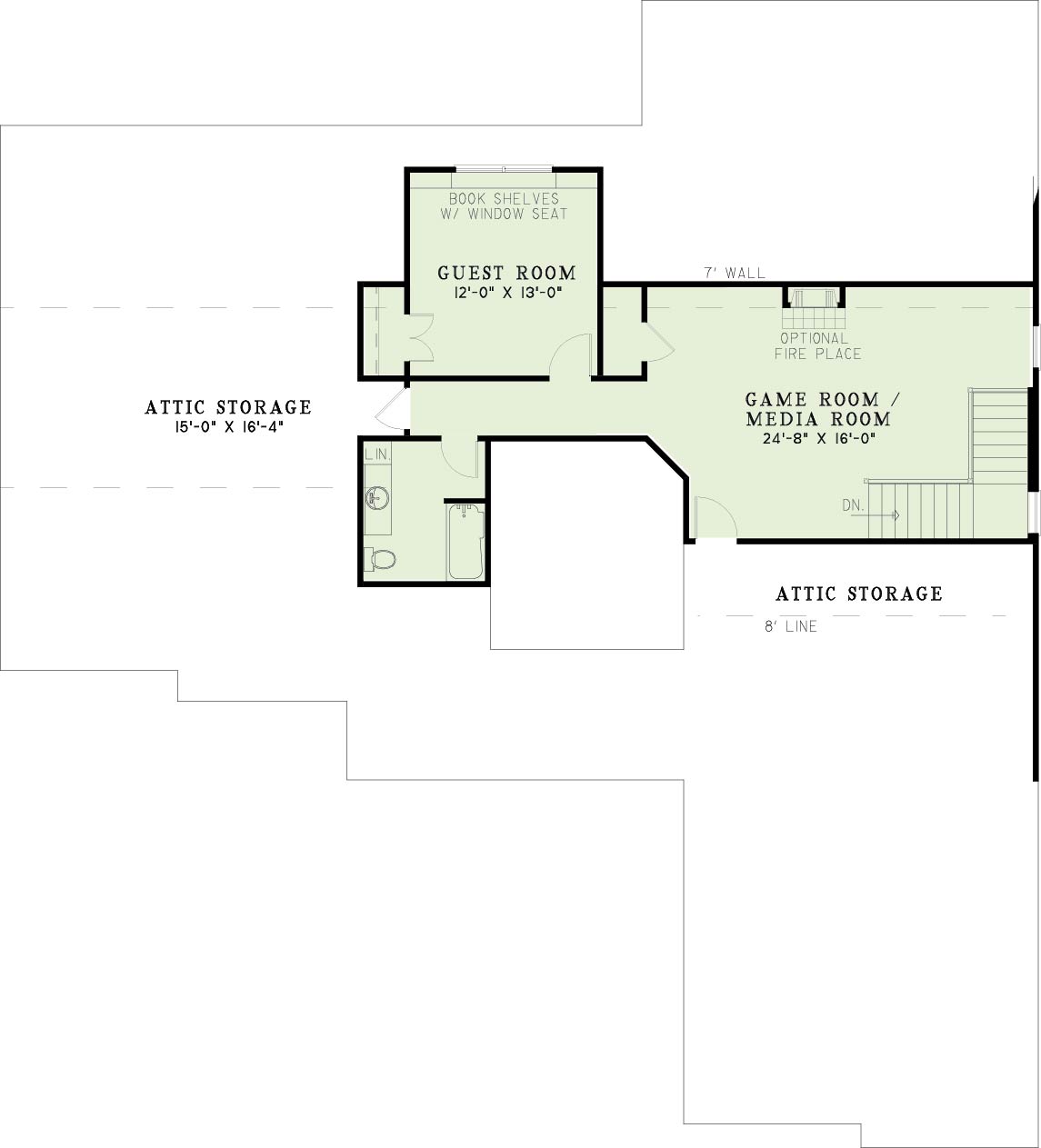
The layout is designed for comfortable living and entertaining, with a covered front porch that sets a welcoming tone and thoughtful separation of private and shared spaces. A luxurious dining room framed by columns provides an elegant space for meals, while the adjacent great room opens to the cozy hearth room — creating a warm gathering area for family and friends. The open kitchen and breakfast area flow to a rear grilling porch, ideal for indoor‑outdoor living and entertaining. Most bedrooms are conveniently located on the main floor for easy access and privacy, and a rear bedroom offers a secluded suite for guests or teens. Upstairs, additional space can serve as a guestroom, home office, or game/media room complete with a full bath.
With its open floor plan, thoughtful room placement, and blend of traditional style and practical features, House Plan 546 Willow Lane stands out among house plans that deliver comfort, flexibility, and everyday livability.
Home Specifications
- Total Living Space: 3067
- Ridge Height (Ft.) 28
- Main Floor (Sq. Ft.): 2379 Sq.Ft
- Ridge Height (In.) 1
- Upper Floor (Sq. Ft.): 688 Sq.Ft.
- Main Ceiling Height: 9
- Lower Floor (Sq. Ft.): N/A
- Upper Ceiling Height: 8
- Porch (Sq. Ft.): 405 Sq.Ft.
- Lower Ceiling Height: N/A
- Garage (Sq. Ft.): 576 Sq.Ft.
- Garage: 2 Bay Yes
- Bonus (Sq.Ft): N/A
- Garage/Carport Type:Side Load Side Load
- Bedrooms: 5
- Carport: N/A
- Full Baths: 4
- Roof Pitch: 10:12
- Porch Roof Pitch: 10:12
- Stories: 1.5
- Wall Construction: 2x4
- Lower Bonus (Sq. Ft.): N/A
- Vaulted Ceiling: No
- Depth (Ft): 73
- Width (Ft): 66
- Depth (In.) 4
- Width (In.) 10
- Total Sq. Ft. 4048 Sq.Ft.
- Customizable: Yes
Key Features
- Covered Front Porch
- Covered Rear Porch
- Formal Dining Room
- Game Room
- Great Room
- Grilling Porch
- Home Office/Study
- Main Floor Master
- Media Room
- Mudroom
- Nook/Breakfast Area
- Open Floor Plan House Plans
- Peninsula/Eating Bar
- Split Bedroom Design
- Vacation Golf Course
- Walk-in Closet
Plan Collections
Plan Styles
- Country Home House Plans
- Craftsman House Plans
- Luxury House Plans
- Traditional House Plans
- Vacation House Plans







