House Plan 5230 Overland Farms, Farmhouse House Plan

House Plan:MEN 5230
$1,650.00
Shipping calculated at checkout.
Add to Wishlist
[View Wishlist]

Or order by phone: (870) 931-5777

Floor Plans

Floor Plan #1

Description

Discover House Plan MEN 5230 – Overland Farms: Spacious Farmhouse Living with Modern Functionality

When it comes to finding house plans that offer both rustic charm and modern convenience, Overland Farms stands in a league of its own. House Plan 5230 delivers a beautifully designed farmhouse layout with ample space for large families or multi-generational living. With 3,934 square feet, 6 bedrooms, 4 full bathrooms, and a 3-car garage, this plan is built for those who need room to grow.

Key Features of House Plan MEN 5230 – Overland Farms

  • Classic Farmhouse Curb Appeal: A timeless exterior featuring gabled rooflines, covered front and rear porches, and charming architectural details that reflect traditional farmhouse style with a modern twist.
  • Sprawling Main Level: The main floor includes a large great room with fireplace, a formal dining space, and an open-concept kitchen complete with a large center island, walk-in pantry, and casual dining area.
  • Private Master Suite: Located on the main floor for privacy, the master suite includes a luxurious bathroom with dual vanities, a soaking tub, walk-in shower, and a generous walk-in closet.
  • Abundant Bedrooms: With six total bedrooms, this home is perfect for large families, frequent guests, or flexible use as home offices, gyms, or hobby rooms.
  • Functional Layout: A large laundry room, mudroom with bench storage, and a walk-through butler’s pantry enhance daily functionality and organization.
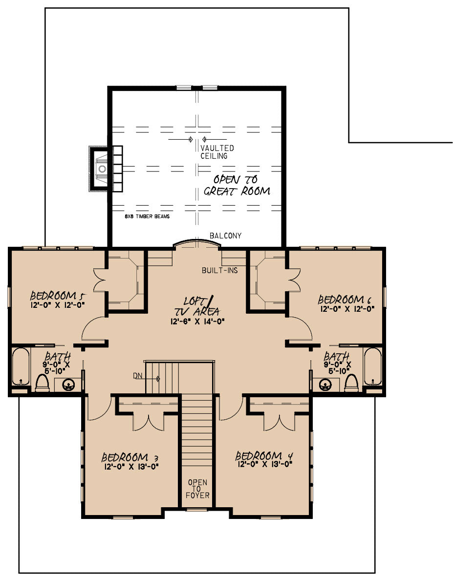
  • Upstairs Living: The second level includes additional bedrooms, full bathrooms, and bonus space perfect for a playroom, media room, or home school setup.
  • Expansive Garage: A 3-car garage offers plenty of space for vehicles, storage, or even a workshop area—an ideal feature for homeowners needing more room.
  • Outdoor Living: Covered front and rear porches extend the living space outdoors, making it easy to enjoy morning coffee or host evening gatherings.

Home Specifications

  • Total Living Space: 3934
  • Ridge Height (Ft.) 30
  • Main Floor (Sq. Ft.): 2664 Sq.Ft
  • Ridge Height (In.) 4
  • Upper Floor (Sq. Ft.): 1270 Sq.Ft.
  • Main Ceiling Height: 10
  • Lower Floor (Sq. Ft.): N/A
  • Upper Ceiling Height: 9
  • Porch (Sq. Ft.): 1345 Sq.Ft.
  • Lower Ceiling Height: N/A
  • Garage (Sq. Ft.): 1151 Sq.Ft.
  • Garage: 3 Bay Yes
  • Bonus (Sq.Ft): N/A
  • Garage/Carport Type:Side Load, Angled, and Detatched Side Load, Angled, and Detatched
  • Bedrooms: 6
  • Carport: No
  • Full Baths: 4
  • Roof Pitch: 12:12
  • Half Baths: 1
  • Porch Roof Pitch: N/A
  • Stories: 1.5
  • Wall Construction: 2x4
  • Lower Bonus (Sq. Ft.): N/A
  • Vaulted Ceiling: Yes
  • Depth (Ft): 132
  • Width (Ft): 77
  • Depth (In.) 11
  • Width (In.) N/A
  • Total Sq. Ft. 6430 Sq.Ft.
  • Customizable: Yes

Key Features

  • Covered Front Porch
  • Covered Rear Porch
  • Formal Dining Room
  • Great Room
  • Grilling Porch
  • Home Office/Study
  • Kitchen Island
  • Loft
  • Main Floor Master
  • Mudroom
  • Narrow Lot House Plans
  • Open Floor Plan House Plans
  • Peninsula/Eating Bar
  • Split Bedroom Design
  • Walk-in Closet
  • Walk-in-Pantry
  • Wrap-Around Porch

Plan Collections

  • Modern Farmhouse Plans
  • Michael E. Nelson House Plans Collection

Plan Styles

  • Country Home House Plans
  • Craftsman House Plans
  • Farmhouse House Plans

Plan Spec Download

PLAN SPEC DOWNLOAD

Customize This Plan

Need to make changes? We will get you a free price quote!

MODIFY THIS PLAN