House Plan 300 Cross Creek, Traditional House Plan
Please log in or create account to add the product in wishlist.
Wishlist is not saved permanently yet. Please log in or create account to save it.
Or order by phone: (870) 931-5777
Floor Plans
Description
House Plan NDG 300 – Cross Creek | Nelson Design Group House Plans
Discover classic architectural elegance and thoughtful family‑oriented design with House Plan NDG 300 – Cross Creek, a beautifully crafted traditional home from Nelson Design Group that blends timeless style with everyday livability. This inviting plan offers 3 bedrooms, 2 full bathrooms, and 1 half bath within approximately 1,684 sq ft of living space, plus a 2‑bay front‑load garage, making it an excellent choice among popular “house plans” for families, downsizers, or anyone seeking a warm, welcoming home.
Step through a covered front porch into a home where high 9‑foot ceilings and a well‑designed layout create a sense of openness and comfort. The great room, featuring a gas fireplace, provides a cozy gathering spot for family time and entertaining, while the adjacent dining room offers a dedicated space for shared meals and conversations. Just off the kitchen, a grilling porch provides convenience for outdoor cooking and casual entertaining, blending indoor and outdoor living with ease.
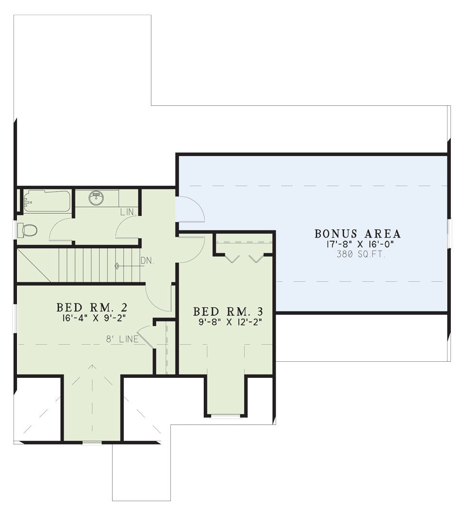
The main floor primary suite serves as a private retreat, complete with a full bathroom that includes a relaxing whirlpool tub. Upstairs, a large bonus room and two additional bedrooms — along with a shared full bathroom — offer flexible space for kids, guests, or a home office, ideal for growing households or multi‑use needs.
Thoughtful design elements like a breakfast nook, kitchen island, and split bedroom layout enhance both function and flow throughout the home. With its traditional exterior, convenient bonus space, and versatile living areas, House Plan NDG 300 – Cross Creek delivers comfort, style, and practical living in a timeless package — perfect for today’s families and everyday life.
Home Specifications
- Total Living Space: 1684
- Ridge Height (Ft.) 27
- Main Floor (Sq. Ft.): 1155 Sq.Ft
- Ridge Height (In.) 6
- Upper Floor (Sq. Ft.): 529 Sq.Ft.
- Main Ceiling Height: 9
- Lower Floor (Sq. Ft.): N/A
- Upper Ceiling Height: 8
- Porch (Sq. Ft.): 106 Sq.Ft.
- Lower Ceiling Height: N/A
- Garage (Sq. Ft.): 458 Sq.Ft.
- Garage: 2 Bay Yes
- Bonus (Sq.Ft): 414 Sq.Ft.
- Garage/Carport Type:Front Load Front Load
- Bedrooms: 3
- Carport: N/A
- Full Baths: 2
- Roof Pitch: 12:12
- Half Baths: 1
- Porch Roof Pitch: N/A
- Stories: 1.5
- Wall Construction: 2x4
- Lower Bonus (Sq. Ft.): N/A
- Vaulted Ceiling: No
- Depth (Ft): 50
- Width (Ft): 47
- Depth (In.) N/A
- Width (In.) N/A
- Total Sq. Ft. 2662 Sq.Ft.
- Customizable: Yes
Key Features
- Bonus Room
- Covered Front Porch
- Covered Rear Porch
- Formal Dining Room
- Great Room
- Grilling Porch
- Kitchen Island
- Main Floor Master
- Narrow Lot House Plans
- Nook/Breakfast Area
- Open Floor Plan House Plans
- Peninsula/Eating Bar
- Split Bedroom Design
- Walk-in Closet
Plan Collections
- Cross Creek House Plans Collection
Plan Styles
- European House Plans
- Traditional House Plans











