House Plan 5014 Summer Breeze, Country Home House Plan

House Plan:MEN 5014
$1,550.00
Shipping calculated at checkout.
Add to Wishlist
[View Wishlist]

Or order by phone: (870) 931-5777

Floor Plans

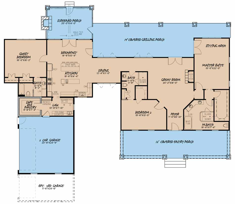
Floor Plan #1

Description

Introducing Summer Breeze Plan MEN 5014

If you're searching for house plans that feel expansive yet inviting, the Summer Breeze Plan MEN 5014 stands out. This country‑home design blends generous proportions, charming architectural detail, and indoor-outdoor connectivity—crafted for both elegance and everyday comfort.

Why Summer Breeze Is a Standout House Plan

  • Striking Country Exterior
    The home features board and batten siding accented by a stone skirt, while strong yet simple rooflines and a broad front porch supported by wood and stone columns give it a classic country aesthetic.
  • Spacious Layout
    With approximately 2,921 square feet of living space on a single level, this plan delivers roomy living without stairs. It includes 3 full bedrooms and 3 full baths, making it ideal for families who value ease and flow.
  • Inviting Great Room with Outdoor Flow
    From the foyer, you’re drawn into the great room, which centers on a fireplace and opens through French doors to a vast covered grilling porch. This layout fosters seamless indoor-outdoor living—perfect for entertaining or quiet evenings.
  • Luxurious Master Suite
    The master bedroom includes a sitting area, a wall of windows, and French doors to the rear porch. The master bath is richly appointed, with dual vanities, a whirlpool tub, and a three-sided glass shower. A large walk-in closet further enhances convenience and comfort.
  • Flexible Guest & Secondary Rooms
    The second bedroom is spacious, with a walk-in closet and direct access to a full bath (also accessible from the hall). The third bedroom, located near the breakfast nook, features two closets and its own private bath—ideal for guests or teen privacy.
  • Well‑Equipped Kitchen & Service Areas
    The kitchen delivers both form and function—offering a prep island, an eat-at island bar, and abundant counter and cabinet space. A connected laundry room and a large walk-in pantry / safe room enhance convenience and storage.
  • Outdoor & Screened Porch Appeal
    A screened-in porch off the breakfast nook features a vaulted ceiling and fireplace, giving you a bug-free spot to enjoy weather and views. From there, the grilling porch invites you deeper into outdoor living.

Home Specifications

  • Total Living Space: 2921
  • Ridge Height (Ft.) 25
  • Main Floor (Sq. Ft.): 2921 Sq.Ft
  • Ridge Height (In.) 7
  • Upper Floor (Sq. Ft.): N/A
  • Main Ceiling Height: 10
  • Lower Floor (Sq. Ft.): N/A
  • Upper Ceiling Height: N/A
  • Porch (Sq. Ft.): 1595 Sq.Ft.
  • Lower Ceiling Height: N/A
  • Garage (Sq. Ft.): 611 Sq.Ft.
  • Garage: 2 Bay Yes
  • Bonus (Sq.Ft): N/A
  • Garage/Carport Type:Side Load Side Load
  • Bedrooms: 3
  • Carport: N/A
  • Full Baths: 3
  • Roof Pitch: 8:12
  • Porch Roof Pitch: 4:12
  • Stories: 1.0
  • Wall Construction: 2x4
  • Lower Bonus (Sq. Ft.): N/A
  • Vaulted Ceiling: No
  • Depth (Ft): 72
  • Width (Ft): 97
  • Depth (In.) 10
  • Width (In.) 10
  • Total Sq. Ft. 5127 Sq.Ft.
  • Customizable: Yes

Key Features

  • Covered Front Porch
  • Covered Rear Porch
  • Great Room
  • Grilling Porch
  • Kitchen Island
  • Main Floor Master
  • No Formal Dining
  • Nook/Breakfast Area
  • Open Floor Plan House Plans
  • Outdoor Living Space
  • Peninsula/Eating Bar
  • Saferoom
  • Screened Porch
  • Sitting Area
  • Walk-in Closet
  • Walk-in-Pantry

Plan Collections

  • Customizable Exteriors House Plans Collection
  • Michael E. Nelson House Plans Collection

Plan Styles

  • Country Home House Plans
  • Rustic House Plans

Plan Spec Download

PLAN SPEC DOWNLOAD

Customize This Plan

Need to make changes? We will get you a free price quote!

MODIFY THIS PLAN