House Plan 719 Theodosia, French Classic House Plan
Please log in or create account to add the product in wishlist.
Wishlist is not saved permanently yet. Please log in or create account to save it.
Or order by phone: (870) 931-5777
Floor Plans
Description
House Plan 719 Theodosia – French Classic 4‑Bedroom House Plan (NDG 719)
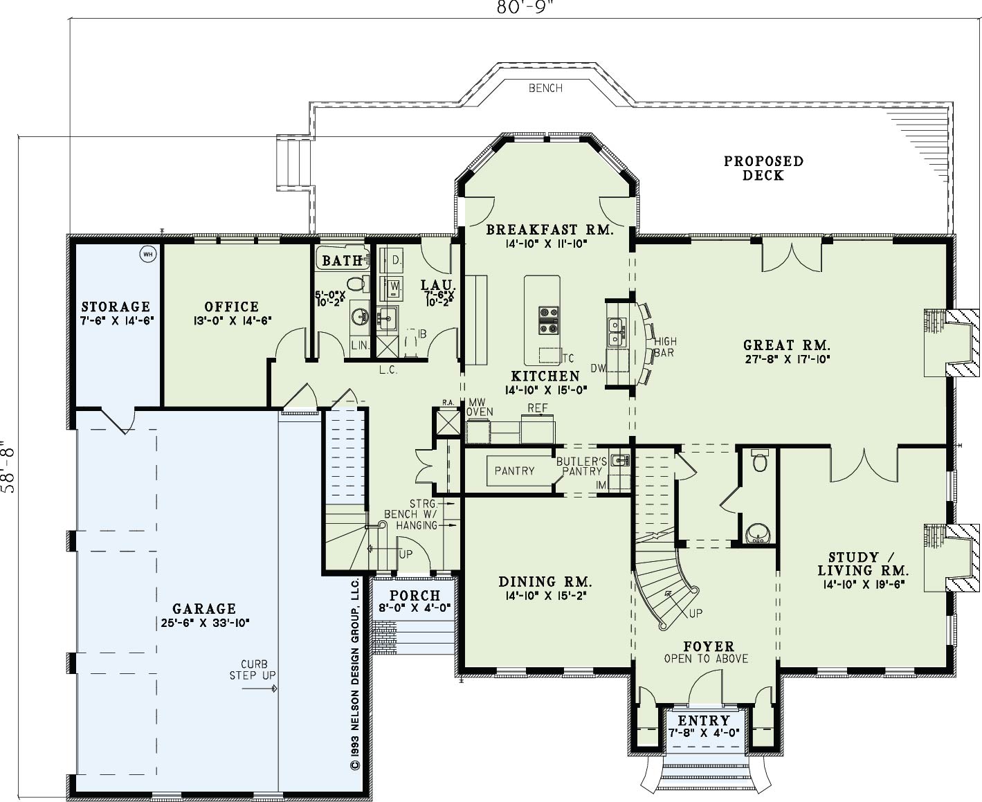
Elevate your home design with House Plan 719 Theodosia, a grand French Classic house plan from Nelson Design Group that beautifully combines elegant traditional architecture with spacious, functional living spaces. This luxurious two‑story home offers approximately 4,420 sq. ft. of living space, featuring 4 bedrooms, 4 full bathrooms, and 2 half baths, ideal for large families or those who love to entertain with style and comfort.
Step inside the striking foyer and discover an open layout where the great room flows seamlessly into the kitchen and dining spaces—perfect for everyday living and social gatherings. Upstairs, enjoy a generous master suite with an en‑suite bath, plus additional bedroom suites and airy secondary bedrooms connected by a Jack‑and‑Jill bath. A remarkable bonus room above the garage offers flexible space for a home office, entertainment area, or future guest apartment. With a 3‑bay side‑load garage, classic exterior details, and thoughtful interior design, House Plan 719 Theodosia stands out among sought‑after house plans that deliver elegance, craftsmanship, and livability for modern lifestyles.
Home Specifications
- Total Living Space: 4420
- Ridge Height (Ft.) 40
- Main Floor (Sq. Ft.): 2466 Sq.Ft
- Ridge Height (In.) 0
- Upper Floor (Sq. Ft.): 1954 Sq.Ft.
- Main Ceiling Height: 10
- Lower Floor (Sq. Ft.): N/A
- Upper Ceiling Height: 9
- Porch (Sq. Ft.): 63 Sq.Ft.
- Lower Ceiling Height: N/A
- Garage (Sq. Ft.): 971 Sq.Ft.
- Garage: 3 Bay Yes
- Bonus (Sq.Ft): 672 Sq.Ft.
- Garage/Carport Type:Side Load Side Load
- Bedrooms: 4
- Carport: N/A
- Full Baths: 4
- Roof Pitch: 12:12
- Half Baths: 2
- Porch Roof Pitch: N/A
- Stories: 2.0
- Wall Construction: 2x4
- Lower Bonus (Sq. Ft.): N/A
- Vaulted Ceiling: No
- Depth (Ft): 58
- Width (Ft): 80
- Depth (In.) 8
- Width (In.) 9
- Total Sq. Ft. 6126 Sq.Ft.
- Customizable: Yes
Key Features
- Balcony
- Bonus Room Over Garage
- Butler's Pantry
- Covered Front Porch
- Decks Patios Balconies
- Formal Dining Room
- Great Room
- Home Office/Study
- Jack & Jill Bathroom
- Kitchen Island
- Mudroom
- Nook/Breakfast Area
- Open Floor Plan House Plans
- Oversized Garage
- Peninsula/Eating Bar
- Walk-in Closet
- Walk-in-Pantry
Plan Collections
Plan Styles
- Classical House Plans
- Colonial Classical Federal House Plans
- French Classic House Plans
- Luxury House Plans
- Traditional House Plans









