House Plan 136 Spruce Street, French Country House Plan

House Plan:NDG 136
$800.00
Add to Wishlist
[View Wishlist]

Or order by phone: (870) 931-5777

Floor Plans

Floor Plan #1

Description

House Plan NDG 136 Spruce Street — Timeless French Country Elegance

Step into a world of refined sophistication with House Plan 136 Spruce Street, a distinguished addition to our French Country House Collection. This two-story residence masterfully blends classic European charm with modern luxury, offering 2,731 sq. ft. of thoughtfully designed living space.

Architectural Highlights

  • Grand Arched Entry: A stately brick archway welcomes you, setting the tone for the home's elegant design.
  • Expansive Great Room: The heart of the home, featuring a cozy fireplace with built-in shelving, creating an inviting atmosphere for gatherings.
  • Formal Dining Room: Ideal for hosting elegant dinners, seamlessly connected to the kitchen for convenience.
  • Chef-Inspired Kitchen: Equipped with modern amenities and a central island, perfect for culinary endeavors.
  • Main-Level Master Suite: A luxurious retreat with a 10-foot boxed ceiling and private access to the covered rear deck.
  • Spa-Like Master Bath: Features a corner whirlpool tub, separate shower, and his-and-her vanities, complemented by dual walk-in closets.
  • Versatile Bedrooms: Two additional bedrooms with a shared bath, one of which can serve as a study.
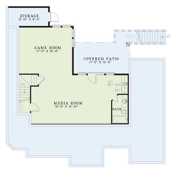
  • Finished Basement: Includes a game room, media room, full bath, and optional wet bar—perfect for entertainment.
  • Bonus Room: An upper-level space ideal for a playroom, complete with a convenient half bath.
  • Outdoor Living: Enjoy a main-level deck with stairs leading to a covered patio, enhancing your outdoor experience.

House Plan NDG 136 Spruce Street epitomizes the elegance and charm of French Country design, offering a harmonious blend of classic aesthetics and modern functionality. Its spacious layout and luxurious features make it an ideal choice for those seeking a home that is both beautiful and practical.

Home Specifications

  • Total Living Space: 2731
  • Ridge Height (Ft.) 24
  • Main Floor (Sq. Ft.): 1871 Sq.Ft
  • Ridge Height (In.) 2
  • Upper Floor (Sq. Ft.): N/A
  • Main Ceiling Height: 9
  • Lower Floor (Sq. Ft.): 860 Sq.Ft.
  • Upper Ceiling Height: 8
  • Porch (Sq. Ft.): 210 Sq.Ft.
  • Lower Ceiling Height: N/A
  • Garage (Sq. Ft.): 599 Sq.Ft.
  • Garage: 2 Bay Yes
  • Bonus (Sq.Ft): 390 Sq.Ft.
  • Garage/Carport Type:Front Load Front Load
  • Bedrooms: 3
  • Carport: No
  • Full Baths: 3
  • Roof Pitch: 10:12
  • Porch Roof Pitch: N/A
  • Stories: 2.0
  • Wall Construction: 2x4
  • Lower Bonus (Sq. Ft.): N/A
  • Vaulted Ceiling: Yes
  • Depth (Ft): 51
  • Width (Ft): 73
  • Depth (In.) 8
  • Width (In.) 4
  • Total Sq. Ft. 3930 Sq.Ft.
  • Customizable: Yes

Key Features

  • Arched Entry
  • Bonus Room
  • Covered Front Porch
  • Decks Patios Balconies
  • Formal Dining Room
  • Game Room
  • Great Room
  • Home Office/Study
  • Kitchen Island
  • Main Floor Master
  • Media Room
  • Nook/Breakfast Area
  • Open Floor Plan House Plans
  • Split Bedroom Design
  • Walk-in Closet

Plan Collections

  • Stone Village Collection House Plans

Plan Styles

  • French Country House Plans
  • Luxury House Plans
  • Traditional House Plans

Plan Spec Download

PLAN SPEC DOWNLOAD

Customize This Plan

Need to make changes? We will get you a free price quote!

MODIFY THIS PLAN