Pool House 1483 Hagan Drive, Garage & Pool House Plan
House Plan:NDG 1483
$700.00
/
Shipping calculated at checkout.
Add to Wishlist
Remove from Wishlist
[View Wishlist]
Please log in or create account to add the product in wishlist.
Wishlist is not saved permanently yet. Please log in or create account to save it.
Or order by phone: (870) 931-5777
Floor Plans
Description
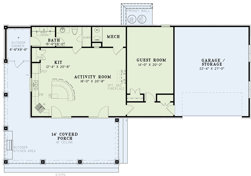
Pool House 1483 – Hagan Drive: A Versatile Poolside Retreat With Garage and Guest Living
Pool House 1483, Hagan Drive, is a beautifully designed pool house and guest suite combination that blends comfort, functionality, and style. With nearly 1,200 square feet of living space, a two-car garage, a full bedroom suite, and generous porch areas, this plan is ideal for poolside entertaining, private guest accommodations, or a flexible outbuilding for your property.
Spacious, Multi-Purpose Design
This plan offers a thoughtful layout that includes a full bedroom, a private full bathroom, and an open living area perfect for relaxing, hosting, or creating a pool lounge. The interior can easily be customized into a guest quarters, entertainment room, hobby space, or studio.
Home Specifications
- Total Living Space: 1199
- Ridge Height (Ft.) 20
- Main Floor (Sq. Ft.): 1199 Sq.Ft
- Ridge Height (In.) 8
- Upper Floor (Sq. Ft.): N/A
- Main Ceiling Height: 10
- Lower Floor (Sq. Ft.): N/A
- Upper Ceiling Height: N/A
- Porch (Sq. Ft.): 704 Sq.Ft.
- Lower Ceiling Height: N/A
- Garage (Sq. Ft.): 627 Sq.Ft.
- Garage: 2 Bay Yes
- Bonus (Sq.Ft): N/A
- Garage/Carport Type:Front Load Front Load
- Bedrooms: 1
- Carport: N/A
- Full Baths: 1
- Roof Pitch: 6:12
- Porch Roof Pitch: N/A
- Stories: 1.0
- Wall Construction: 2x4
- Lower Bonus (Sq. Ft.): N/A
- Vaulted Ceiling: No
- Depth (Ft): 41
- Width (Ft): 73
- Depth (In.) 8
- Width (In.) N/A
- Total Sq. Ft. 2530 Sq.Ft.
- Customizable: Yes
Key Features
- Covered Front Porch
- Kitchen Island
- No Formal Dining
- Open Floor Plan House Plans
- Peninsula/Eating Bar
- Wrap-Around Porch
Plan Collections
- Affordable House Plans Collection
- Garage & Pool House Plans
Plan Styles
- Traditional House Plans

