Pool House 1484 Result Drive, Garage & Pool House Plan
Please log in or create account to add the product in wishlist.
Wishlist is not saved permanently yet. Please log in or create account to save it.
Or order by phone: (870) 931-5777
Floor Plans
Description
Luxury Custom Poolhouse Designs for Sale
While poolhouses are primarily used as clothes changing and pool equipment storage areas, or in some cases, art or writing studios or workout rooms, they can also feature a more spacious design that allows them to serve as fully appointed homes.
Nelson Design Group is proud to offer Luxury Custom Poolhouse plans for sale that will change the way you think about this unique residential structure. A shining example is our 1484 Result Drive model that seamlessly combines a compact design with a wide range of luxury features and amenities.
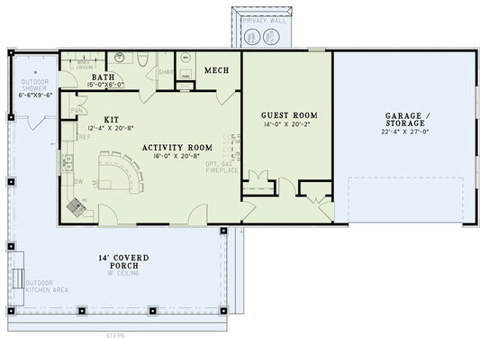
This pool house offers a covered front porch with a fireplace, which is perfect for entertaining or taking a break from the pool. Entry from the covered porch accesses the activity room, with a full kitchen and an eat-at island bar.
A bedroom is off the kitchen with a full bathroom and walk-in closet. A laundry room and a half bath share a hallway from the activity room to the garage with the half-bath having convenient access to outside. A second smaller garage is off the main garage, with a large storage room off it.
Home Specifications
- Total Living Space: 1117
- Ridge Height (Ft.) 24
- Main Floor (Sq. Ft.): 1117 Sq.Ft
- Ridge Height (In.) 10
- Upper Floor (Sq. Ft.): N/A
- Main Ceiling Height: 10
- Lower Floor (Sq. Ft.): N/A
- Upper Ceiling Height: N/A
- Porch (Sq. Ft.): 373 Sq.Ft.
- Lower Ceiling Height: N/A
- Garage (Sq. Ft.): 730 Sq.Ft.
- Garage: 1 Bay Yes
- Bonus (Sq.Ft): N/A
- Garage/Carport Type:Side Load Side Load
- Bedrooms: 1
- Carport: N/A
- Full Baths: 1
- Roof Pitch: 12:12
- Half Baths: 1
- Porch Roof Pitch: N/A
- Stories: 1.0
- Wall Construction: 2x4
- Lower Bonus (Sq. Ft.): N/A
- Vaulted Ceiling: No
- Depth (Ft): 50
- Width (Ft): 62
- Depth (In.) 6
- Width (In.) N/A
- Total Sq. Ft. 2220 Sq.Ft.
- Customizable: Yes
Key Features
- Arched Entry
- Covered Front Porch
- Kitchen Island
- Mudroom
- No Formal Dining
- Open Floor Plan House Plans
- Peninsula/Eating Bar
- Walk-in Closet
Plan Collections
- Garage & Pool House Plans
Plan Styles
- Traditional House Plans

