House Plan 847 Ambrose Boulevard, Heritage House Plan
Please log in or create account to add the product in wishlist.
Wishlist is not saved permanently yet. Please log in or create account to save it.
Or order by phone: (870) 931-5777
Floor Plans
Description
House Plan 847 – Ambrose Boulevard | Grand Heritage House Plan with Expansive Living
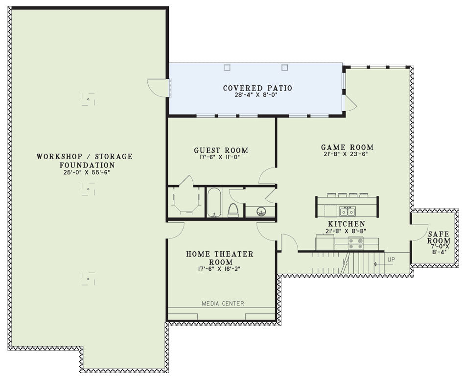
House Plan 847, Ambrose Boulevard, is an impressive heritage house plan that blends classic architectural elegance with expansive, family‑friendly living spaces. This distinguished 1½‑story design offers approximately 5,723 square feet of living space, making it ideal for larger households or anyone who wants room to grow and entertain. The plan features 4 bedrooms and 3 full bathrooms, providing comfortable, private retreats for family members and guests. A three‑bay garage adds convenience and storage, while the balanced exterior delivers timeless curb appeal. Inside, generous living areas bring families together, and multiple flexible spaces allow for formal gatherings, casual everyday life, or work‑from‑home needs. With its combination of scale, thoughtful layout, and traditional charm, Ambrose Boulevard stands out among quality house plans that offer both functionality and style.
Key Features
- Approximately 5,723 sq. ft. of expansive living space
- 4 bedrooms and 3 full bathrooms for family living and guest comfort
- Grand 1½‑story layout with traditional architectural character
- Three‑bay garage for vehicles and storage
- Spacious shared living areas ideal for entertaining and daily life
- Flexible interior spaces that adapt to formal and casual needs
- Strong curb appeal with classic heritage details on the exterior
Home Specifications
- Total Living Space: 5723
- Ridge Height (Ft.) 41
- Main Floor (Sq. Ft.): 2907 Sq.Ft
- Ridge Height (In.) 0
- Upper Floor (Sq. Ft.): N/A
- Main Ceiling Height: 9
- Lower Floor (Sq. Ft.): 2816 Sq.Ft.
- Upper Ceiling Height: 9
- Porch (Sq. Ft.): 543 Sq.Ft.
- Lower Ceiling Height: N/A
- Garage (Sq. Ft.): 676 Sq.Ft.
- Garage: 3 Bay Yes
- Bonus (Sq.Ft): N/A
- Bedrooms: 4
- Carport: N/A
- Full Baths: 3
- Roof Pitch: 10:12
- Half Baths: 1
- Porch Roof Pitch: N/A
- Stories: 1.5
- Wall Construction: 2x4
- Lower Bonus (Sq. Ft.): N/A
- Vaulted Ceiling: Yes
- Depth (Ft): 68
- Width (Ft): 73
- Depth (In.) N/A
- Width (In.) 8
- Total Sq. Ft. 6942 Sq.Ft.
- Customizable: Yes
Key Features
- Covered Front Porch
- Covered Rear Porch
- Decks Patios Balconies
- Formal Dining Room
- Game Room
- Great Room
- Grilling Porch
- Home Office/Study
- Home Theater
- Jack & Jill Bathroom
- Main Floor Master
- Mudroom
- Nook/Breakfast Area
- Open Floor Plan House Plans
- Peninsula/Eating Bar
- Saferoom
- Sitting Area
- Split Bedroom Design
- Sunroom
- Walk-in Closet
- Walk-in-Pantry
- Workshop Garage
Plan Collections
- Heritage House Plans Collection
Plan Styles
- Arts & Crafts House Plans
- Craftsman House Plans
- Luxury House Plans
- Traditional House Plans







