House Plan 1189 Lake Side II, Riverbend House Plan
Please log in or create account to add the product in wishlist.
Wishlist is not saved permanently yet. Please log in or create account to save it.
Or order by phone: (870) 931-5777
Floor Plans
Description
NDG 1189 Lake Side II – A Scenic, Family-Focused House Plan Designed for Lake or Country Living
NDG 1189 Lake Side II is a 1.5‑story house plan offering approximately 1,970 square feet of heated living space, making it a comfortable and practical choice for families, retreats, or vacation homes. This house plan maximizes comfort and livability while embracing a rustic, lake-house or country-home style — ideal for lakeside lots, wooded properties, or tranquil getaway sites.
With four bedrooms and four full bathrooms, this house plan provides ample space for family, guests, or multi-purpose use. The layout includes a vaulted-ceiling great room that opens to covered front and rear porches, blending indoor comfort with outdoor living opportunities and making it easy to enjoy nature, views, or outdoor meals.
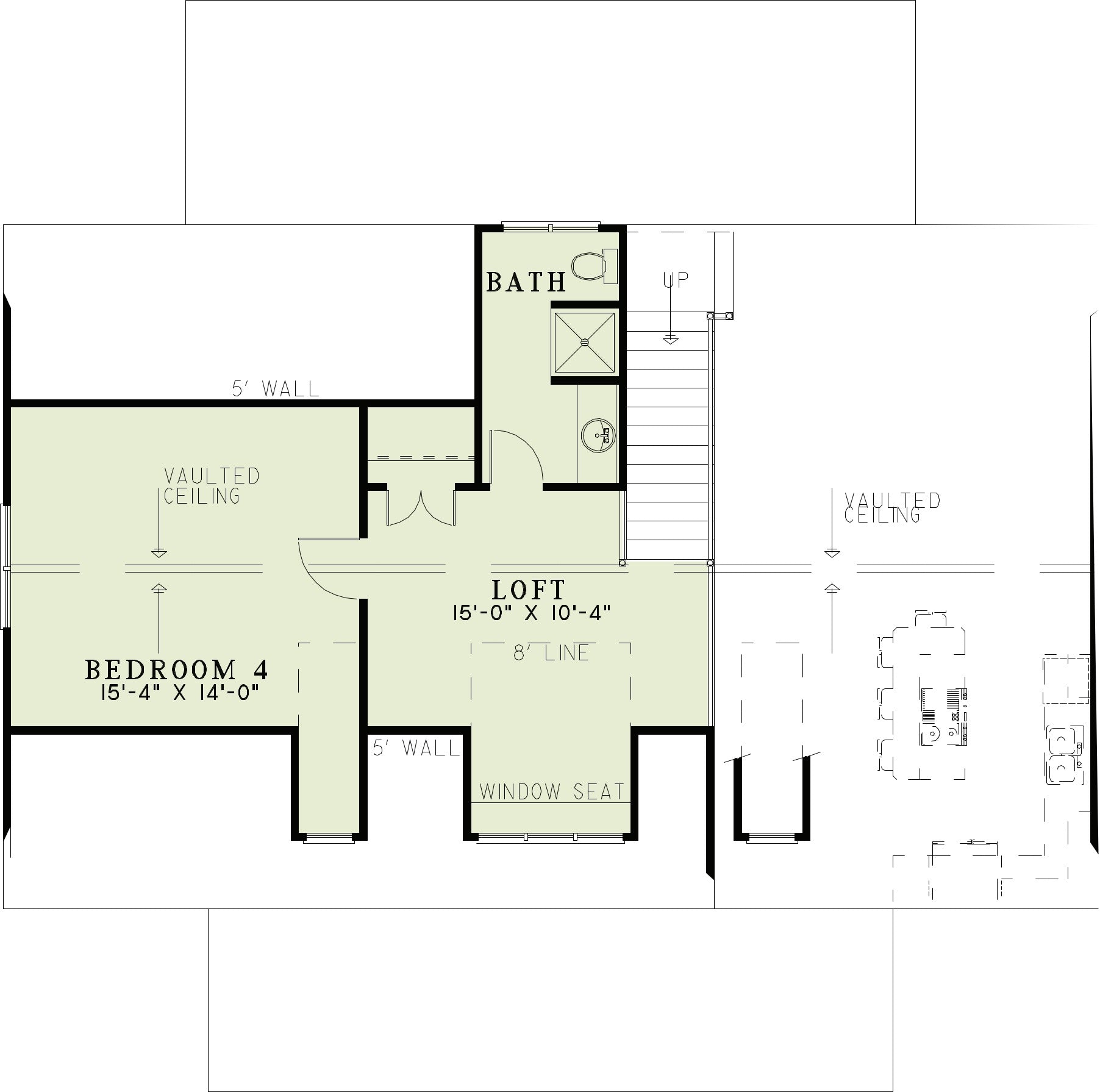
An open floor plan with a kitchen island and formal dining room makes everyday living and entertaining seamless. Upstairs, a loft adds flexibility — perfect for a bonus room, quiet retreat, or extra guest space. This house plan combines traditional charm with thoughtful design, offering a home ideal for full-time living, vacation use, or long-term relaxation.
Key Highlights of House Plan NDG 1189 Lake Side II
- 1.5-story house plan with approximately 1,970 sq. ft. of living space
- Four bedrooms and four full bathrooms — spacious for family, guests, or multi-use needs
- Vaulted-ceiling great room providing an open, airy central living space
- Covered front and rear porches for outdoor living, relaxing, and enjoying scenic surroundings
- Open floor plan with kitchen island and formal dining room — ideal for everyday living and entertaining
- Loft upstairs offering extra flexibility — bonus room, guest space, or quiet retreat
- Lake-house / rustic / country-home style — well suited to lakeside, wooded, or rural properties
- Balanced blend of comfort, functionality, and outdoor-friendly design — perfect for vacation homes or year-round living
*For Slab, BSMT, WOB options for this design, see plan NDG417
Home Specifications
- Total Living Space: 1970
- Ridge Height (Ft.) 21
- Main Floor (Sq. Ft.): 1440 Sq.Ft
- Ridge Height (In.) 2
- Upper Floor (Sq. Ft.): 530 Sq.Ft.
- Main Ceiling Height: 8
- Lower Floor (Sq. Ft.): N/A
- Upper Ceiling Height: 8
- Porch (Sq. Ft.): 560 Sq.Ft.
- Lower Ceiling Height: N/A
- Garage (Sq. Ft.): N/A
- Garage: No
- Bonus (Sq.Ft): N/A
- Garage/Carport Type:N/A N/A
- Bedrooms: 4
- Carport: N/A
- Full Baths: 4
- Roof Pitch: 10:12
- Porch Roof Pitch: 4:12
- Stories: 1.5
- Wall Construction: 2x4
- Lower Bonus (Sq. Ft.): N/A
- Vaulted Ceiling: Yes
- Depth (Ft): 48
- Width (Ft): 50
- Depth (In.) N/A
- Width (In.) 4
- Total Sq. Ft. 2530 Sq.Ft.
- Customizable: Yes
Key Features
- Covered Front Porch
- Covered Rear Porch
- Economic Structure
- Formal Dining Room
- Kitchen Island
- Loft
- Main Floor Master
- Open Floor Plan House Plans
- Outdoor Living Space
- Peninsula/Eating Bar
- Screened Porch
- Split Bedroom Design
- Vaulted High Cathedral Ceiling
- Walk-in Closet
Plan Collections
- Riverbend Cabin House Plans Collection
Plan Styles
- Lake House Plans
- Country Home House Plans
- Low Country House Plans
- Rustic House Plans
- Southern House Plans
- Traditional House Plans

