House Plan 1477 Overcup Landing, Riverbend House Plan
Please log in or create account to add the product in wishlist.
Wishlist is not saved permanently yet. Please log in or create account to save it.
Or order by phone: (870) 931-5777
Floor Plans
Description
Overcup Landing – House Plan 1477: Attractive Lake‑oriented Cottage Plan
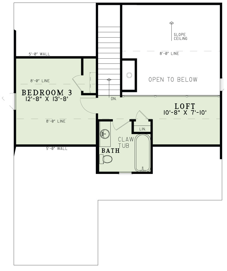
House Plan 1477, Overcup Landing, is a charming, compact home ideal for lakeside living, vacation retreats, or a cozy full-time residence. With approximately 1,560 square feet and a 1½-story layout, it’s thoughtfully designed for comfort, practicality, and easy living.
Designed for Relaxed, Scenic Living
At just 45 feet wide by 53 feet deep, Overcup Landing fits well on modest or sloping lots, especially those with water or woodland views. Its modest footprint makes it efficient and versatile, while its cottage styling lends character and charm.
Comfortable Interior Layout
This plan offers 3 bedrooms and 2 bathrooms, giving enough space for family, guests, or a home office. The 1½-story design allows for a warm, welcoming main floor along with additional sleeping or storage space upstairs — a great balance for flexibility without excess.
Indoor-Outdoor Appeal
Overcup Landing is well-suited for indoor-outdoor living. Large windows and well-placed doors help connect the interior with outdoor surroundings, making it easy to enjoy porch space, natural views, or a relaxed evening breeze.
Home Specifications
- Total Living Space: 1560
- Ridge Height (Ft.) 24
- Main Floor (Sq. Ft.): 1172 Sq.Ft
- Ridge Height (In.) 0
- Upper Floor (Sq. Ft.): 388 Sq.Ft.
- Main Ceiling Height: 9
- Lower Floor (Sq. Ft.): N/A
- Upper Ceiling Height: 8
- Porch (Sq. Ft.): 640 Sq.Ft.
- Lower Ceiling Height: N/A
- Garage (Sq. Ft.): N/A
- Garage: No
- Bonus (Sq.Ft): N/A
- Garage/Carport Type:N/A N/A
- Bedrooms: 3
- Carport: N/A
- Full Baths: 2
- Roof Pitch: 9:12
- Porch Roof Pitch: 4:12
- Stories: 1.5
- Wall Construction: 2x4
- Lower Bonus (Sq. Ft.): N/A
- Vaulted Ceiling: No
- Depth (Ft): 53
- Width (Ft): 45
- Depth (In.) 8
- Width (In.) N/A
- Total Sq. Ft. 2200 Sq.Ft.
- Customizable: Yes
Key Features
- Covered Rear Porch
- Formal Dining Room
- Great Room
- Grilling Porch
- Kitchen Island
- Loft
- Narrow Lot House Plans
- Open Floor Plan House Plans
- Peninsula/Eating Bar
- Screened Porch
- Split Bedroom Design
- Vaulted High Cathedral Ceiling
- Walk-in Closet
Plan Collections
- Riverbend Cabin House Plans Collection
Plan Styles
- Lake House Plans
- Craftsman House Plans
- Rustic House Plans
- Traditional House Plans



