House Plan B1009 The WestWind III, Barna Log House Plan

House Plan:NDG B1009
$1,000.00
Add to Wishlist
[View Wishlist]

Or order by phone: (870) 931-5777

Floor Plans

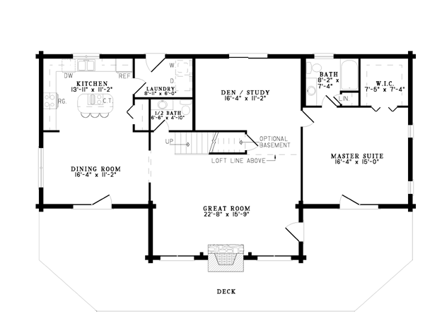
Floor Plan #1

Description

NDG B1009

A stunning addition to our Barna Log House Collection, The Westwind III invites you in through lovely windows, a stone chimney, and gable dormers. Inside, the cozy fireplace adds warmth to the Great Room, and natural lighting in the Den/Study allows for pleasant days working from home, or simply winding down with family. To the left of the Great Room, you will find even more places to gather, with a Kitchen and Dining Room separated from each other by an eat-at center island. On the opposite side of The Westwind III, you will find your private Master Suite, complete with private access to the wrap-around Deck, a walk-in closet, and private Master Bath! Upstairs is perfect for the kids, with a Loft open to the Great Room below serving as a great game room or TV room. Plenty of storage space is found throughout, and the two additional bedrooms each boast a cozy dormer window. A full bath is also found just off the Loft. How would you customize this amazing house plan?

NOTE: Barna plans are intended for log exterior walls. Converting these to 2X6 exterior walls requires modification and will be subject to additional modification cost. Contact one of our home plan specialists today to discuss modification requirements by emailing info@nelsondesigngroup.com or calling 870-931-5777

Customizing This House Plan

Make this house plan into your dream home!

We understand that when it comes to building a home you want it to be perfect for you. Our team of experienced house plan specialists would love to be able to help you through the process of modifying this, or any of the other house plans found on our website, to better fit your needs. Whether you know the exact changes you need made or just have some ideas that would like to discuss with our team send us an email at: info@nelsondesigngroup.com or give us a call at 870-931-5777 What to know a little more about the process of customizing one of our house plans? Check out our Modifications FAQ page.

Home Specifications

  • Total Living Space: 2402
  • Ridge Height (Ft.) 24
  • Main Floor (Sq. Ft.): 1584 Sq.Ft
  • Ridge Height (In.) 0
  • Upper Floor (Sq. Ft.): 818 Sq.Ft.
  • Main Ceiling Height: 8
  • Lower Floor (Sq. Ft.): N/A
  • Upper Ceiling Height: 8
  • Porch (Sq. Ft.): N/A
  • Lower Ceiling Height: N/A
  • Garage (Sq. Ft.): N/A
  • Garage: No
  • Bonus (Sq.Ft): N/A
  • Garage/Carport Type:N/A N/A
  • Bedrooms: 3
  • Carport: No
  • Full Baths: 2
  • Roof Pitch: 14:12
  • Half Baths: 1
  • Porch Roof Pitch: N/A
  • Stories: 1.5
  • Wall Construction: N/A
  • Lower Bonus (Sq. Ft.): N/A
  • Vaulted Ceiling: No
  • Depth (Ft): 40
  • Width (Ft): 58
  • Depth (In.) N/A
  • Width (In.) N/A
  • Total Sq. Ft. 2402 Sq.Ft.
  • Customizable: Yes

Key Features

  • Decks Patios Balconies
  • Formal Dining Room
  • Great Room
  • Home Office/Study
  • Kitchen Island
  • Loft
  • Main Floor Master
  • Open Floor Plan House Plans
  • Peninsula/Eating Bar
  • Split Bedroom Design
  • Walk-in Closet

Plan Collections

  • Barna Log House Plans Collection

Plan Styles

  • Country Home House Plans
  • Log Cabin House Plans
  • Mountain House Plans
  • Rustic House Plans

Plan Spec Download

PLAN SPEC DOWNLOAD

Customize This Plan

Need to make changes? We will get you a free price quote!

MODIFY THIS PLAN