House Plan B1014 The Monterey, Barna Log House Plan
Please log in or create account to add the product in wishlist.
Wishlist is not saved permanently yet. Please log in or create account to save it.
Or order by phone: (870) 931-5777
Floor Plans
Description
NDG B1014
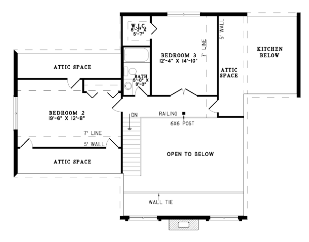
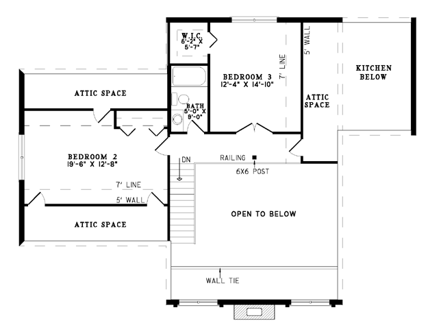
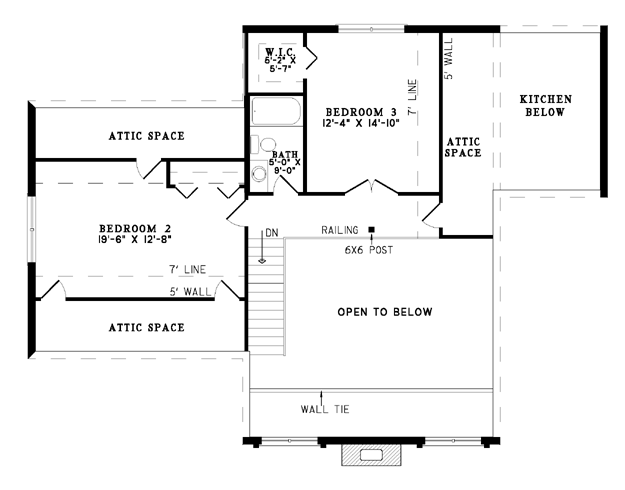
A stunning addition to our Barna Log House Collection, The Monterey exhibits a vibrant curb appeal that gives your guests a warm welcome inside. Entering from the front French doors leads you into the large Great Room, where a cozy stone fireplace makes this space perfect for gathering. The rear of the home leads way to the large Dining Room, which provides plenty of space for a sizeable dining table. The nearby pantry is perfect for storing extra cooking essentials or all the fancy plates and cutlery. To the right is your lovely Kitchen, complete with a center eat-at island and access to the Deck, which has more than enough space for an outdoor table and chairs. Back inside, you will be delighted with your private Master Suite, located on the left side of The Monterey. With private access to the front Deck and tons of space for additional furniture, the master bedroom is sure to please. The walk-in closet will hold all of your wardrobe favorites, and the adjacent Master Bath has all the essentials, including a whirlpool tub, separate corner shower, and dual sink vanity. Another space to admire, the upper level houses two large bedrooms. Bedroom 2 has tons of closet and attic space, and both lie adjacent to the hall bath. This whole upper space is open to the Great Room below, making it so easy to call the kids down for meals! How would you customize this amazing house plan?
NOTE: Barna plans are intended for log exterior walls. Converting these to 2X6 exterior walls requires modification and will be subject to additional modification cost. Contact one of our home plan specialists today to discuss modification requirements by emailing info@nelsondesigngroup.com or calling 870-931-5777
Customizing This House Plan
Make this house plan into your dream home!
We understand that when it comes to building a home you want it to be perfect for you. Our team of experienced house plan specialists would love to be able to help you through the process of modifying this, or any of the other house plans found on our website, to better fit your needs. Whether you know the exact changes you need made or just have some ideas that would like to discuss with our team send us an email at: info@nelsondesigngroup.com or give us a call at 870-931-5777 What to know a little more about the process of customizing one of our house plans? Check out our Modifications FAQ page.
Home Specifications
- Total Living Space: 2206
- Ridge Height (Ft.) 22
- Main Floor (Sq. Ft.): 1576 Sq.Ft
- Ridge Height (In.) 0
- Upper Floor (Sq. Ft.): 630 Sq.Ft.
- Main Ceiling Height: 8
- Lower Floor (Sq. Ft.): N/A
- Upper Ceiling Height: 8
- Porch (Sq. Ft.): N/A
- Lower Ceiling Height: N/A
- Garage (Sq. Ft.): N/A
- Garage: No
- Bonus (Sq.Ft): N/A
- Garage/Carport Type:N/A N/A
- Bedrooms: 3
- Carport: No
- Full Baths: 2
- Roof Pitch: 12:12
- Half Baths: 1
- Porch Roof Pitch: N/A
- Stories: 1.5
- Wall Construction: N/A
- Lower Bonus (Sq. Ft.): N/A
- Vaulted Ceiling: No
- Depth (Ft): 53
- Width (Ft): 54
- Depth (In.) N/A
- Width (In.) N/A
- Total Sq. Ft. 2206 Sq.Ft.
- Customizable: Yes
Key Features
- Covered Rear Porch
- Decks Patios Balconies
- Formal Dining Room
- Great Room
- Kitchen Island
- Main Floor Master
- Open Floor Plan House Plans
- Split Bedroom Design
- Walk-in Closet
Plan Collections
- Barna Log House Plans Collection
Plan Styles
- Country Home House Plans
- Log Cabin House Plans
- Rustic House Plans