House Plan B1030 Etowah, Barna Log House Plan
Please log in or create account to add the product in wishlist.
Wishlist is not saved permanently yet. Please log in or create account to save it.
Or order by phone: (870) 931-5777
Floor Plans
Description
NDG B1030
A stunning addition to our Barna Log House Collection, Etowah takes you straight into the Living Room from a charming front porch. The Living Room features access to the side Deck and joins with the Dining Room, which enjoys a great ambience of natural light from the bank of windows to the right. The loft line from above seems to separate these spaces from the Kitchen, which has tons of counterspace, a wall of open cabinets, a center island, and a large walk-in pantry that accesses the Laundry Room. The Laundry Room serves as entry to the cozy Grilling Porch, ensuring any dirt that may be brought in is limited to one space.
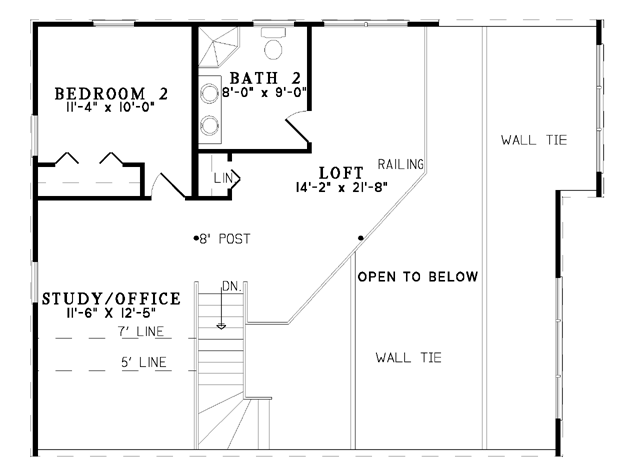
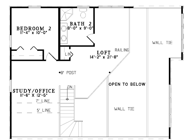
The left side Etowah is occupied by your Master Suite. The spacious master bedroom features a walk-in closet and front-facing windows for great natural lighting, as well as entry to your own private Deck! Enjoy peaceful nights outdoors with your partner before relaxing in your Master Bath, which features a tub and two separate vanities, one of which is privately located in the toilet room. Upstairs is perfect for the kids or overnight guests, with a spacious Loft overlooking the Dining Room and Living Room below. An 8-foot post separates this space from a Study/Office that is tucked away behind the stairs. Bedroom 2 is decently sized with a modest step-in closet, and a full bath with dual vanities lies adjacent. How would you customize this amazing house plan?
NOTE: Barna plans are intended for log exterior walls. Converting these to 2X6 exterior walls requires modification and will be subject to additional modification cost. Contact one of our home plan specialists today to discuss modification requirements by emailing info@nelsondesigngroup.com or calling 870-931-5777
Customizing This House Plan
Make this house plan into your dream home!
We understand that when it comes to building a home you want it to be perfect for you. Our team of experienced house plan specialists would love to be able to help you through the process of modifying this, or any of the other house plans found on our website, to better fit your needs. Whether you know the exact changes you need made or just have some ideas that would like to discuss with our team send us an email at: info@nelsondesigngroup.com or give us a call at 870-931-5777 What to know a little more about the process of customizing one of our house plans? Check out our Modifications FAQ page.
Home Specifications
- Total Living Space: 1940
- Ridge Height (Ft.) N/A
- Main Floor (Sq. Ft.): 1287 Sq.Ft
- Ridge Height (In.) 0
- Upper Floor (Sq. Ft.): 653 Sq.Ft.
- Main Ceiling Height: 8
- Lower Floor (Sq. Ft.): N/A
- Upper Ceiling Height: 8
- Porch (Sq. Ft.): 460 Sq.Ft.
- Lower Ceiling Height: N/A
- Garage (Sq. Ft.): N/A
- Garage: No
- Bonus (Sq.Ft): N/A
- Garage/Carport Type:N/A N/A
- Bedrooms: 2
- Carport: N/A
- Full Baths: 2
- Roof Pitch: 10:12
- Porch Roof Pitch: 4:12
- Stories: 1.5
- Wall Construction: N/A
- Lower Bonus (Sq. Ft.): N/A
- Vaulted Ceiling: No
- Depth (Ft): 46
- Width (Ft): 50
- Depth (In.) N/A
- Width (In.) N/A
- Total Sq. Ft. 2400 Sq.Ft.
- Customizable: Yes
Key Features
- Covered Front Porch
- Covered Rear Porch
- Decks Patios Balconies
- Formal Dining Room
- Great Room
- Grilling Porch
- Home Office/Study
- Kitchen Island
- Loft
- Main Floor Master
- Narrow Lot House Plans
- Open Floor Plan House Plans
- Split Bedroom Design
- Walk-in Closet
- Walk-in-Pantry
Plan Collections
- Barna Log House Plans Collection
Plan Styles
- Country Home House Plans
- Log Cabin House Plans
- Low Country House Plans
- Mountain House Plans
- Rustic House Plans