House Plan B1041 The Le Conte, Barna Log House Plan

House Plan:NDG B1041
$1,350.00
Shipping calculated at checkout.
Add to Wishlist
[View Wishlist]

Or order by phone: (870) 931-5777

Floor Plans

Floor Plan #1

Description

NDG B1041

A stunning addition to our Barna Log House Collection, The Le Conte has a breathtaking exterior, created by warm wood and beautiful picture frame windows looking out to an expansive porch/deck. Upon entry, you will be able to see the entire open floor plan from the Foyer. The Living Room invites you to cozy up beside the fire with family, while the Dining Room offers space for large gatherings while still being open to the Kitchen. The Kitchen is very spacious, featuring tons of counterspace, a charming Breakfast nook with a bench, and a center prep island. You can even access a small Grilling Porch here. The whole right side of this space enjoys tons of natural lighting, and the left of the Living Room leads way to an Office space with a desk, half bath, and a Laundry Room serving as a mudroom entry to the 2-car garage. 

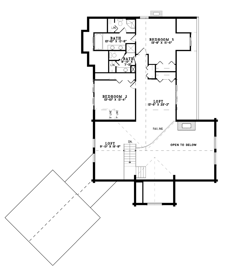
At the very rear of The Le Conte, you will find your expansive Master Suite. The master bedroom enjoys a great view of the side porch and has private access not only to the rear Covered Porch, but also to a lovely Gazebo! Moving to the left, a brief entryway flanked by walk-in closets lead you into your huge Master Bath, complete with dual vanities, a whirlpool tub, and separate shower. Upstairs is perfect for the kids! An expansive Loft opening to the Living Room below would be a great playroom/game room. Bedroom 3 is more spacious in size than Bedroom 2 and boasts a cozy dormer window, as well as a private bath with dual vanities, a bath, and a separate room housing a linen closet, shower and toilet. Bedroom 2 lies adjacent to a hall bath. How would you customize this amazing house plan?

NOTE: Barna plans are intended for log exterior walls. Converting these to 2X6 exterior walls requires modification and will be subject to additional modification cost. Contact one of our home plan specialists today to discuss modification requirements by emailing info@nelsondesigngroup.com or calling 870-931-5777

Customizing This House Plan

Make this house plan into your dream home!

We understand that when it comes to building a home you want it to be perfect for you. Our team of experienced house plan specialists would love to be able to help you through the process of modifying this, or any of the other house plans found on our website, to better fit your needs. Whether you know the exact changes you need made or just have some ideas that would like to discuss with our team send us an email at: info@nelsondesigngroup.com or give us a call at 870-931-5777 What to know a little more about the process of customizing one of our house plans? Check out our Modifications FAQ page.

Home Specifications

  • Total Living Space: 3537
  • Ridge Height (Ft.) 27
  • Main Floor (Sq. Ft.): 2216 Sq.Ft
  • Ridge Height (In.) 8
  • Upper Floor (Sq. Ft.): 1321 Sq.Ft.
  • Main Ceiling Height: 8
  • Lower Floor (Sq. Ft.): N/A
  • Upper Ceiling Height: 8
  • Porch (Sq. Ft.): 1033 Sq.Ft.
  • Lower Ceiling Height: N/A
  • Garage (Sq. Ft.): 529 Sq.Ft.
  • Garage: 2 Bay Yes
  • Bonus (Sq.Ft): N/A
  • Garage/Carport Type:Angled Angled
  • Bedrooms: 3
  • Carport: N/A
  • Full Baths: 3
  • Roof Pitch: 12:12
  • Half Baths: 1
  • Porch Roof Pitch: N/A
  • Stories: 2.5
  • Wall Construction: N/A
  • Lower Bonus (Sq. Ft.): N/A
  • Vaulted Ceiling: No
  • Depth (Ft): 100
  • Width (Ft): 82
  • Depth (In.) 5
  • Width (In.) N/A
  • Total Sq. Ft. 5099 Sq.Ft.
  • Customizable: Yes

Key Features

  • Covered Front Porch
  • Covered Rear Porch
  • Decks Patios Balconies
  • Fireplace in Master
  • Formal Dining Room
  • Great Room
  • Grilling Porch
  • Home Office/Study
  • Kitchen Island
  • Loft
  • Main Floor Master
  • Nook/Breakfast Area
  • Open Floor Plan House Plans
  • Split Bedroom Design
  • Walk-in Closet
  • Walk-in-Pantry
  • Wrap-Around Porch

Plan Collections

  • Barna Log House Plans Collection

Plan Styles

  • Log Cabin House Plans
  • Mountain House Plans
  • Rustic House Plans

Plan Spec Download

PLAN SPEC DOWNLOAD

Customize This Plan

Need to make changes? We will get you a free price quote!

MODIFY THIS PLAN