House Plan B1054 The Grey Fox, Barna Log House Plan

House Plan:NDG B1054
$1,100.00
Shipping calculated at checkout.
Add to Wishlist
[View Wishlist]

Or order by phone: (870) 931-5777

Floor Plans

Floor Plan #1

Description

NDG B1054

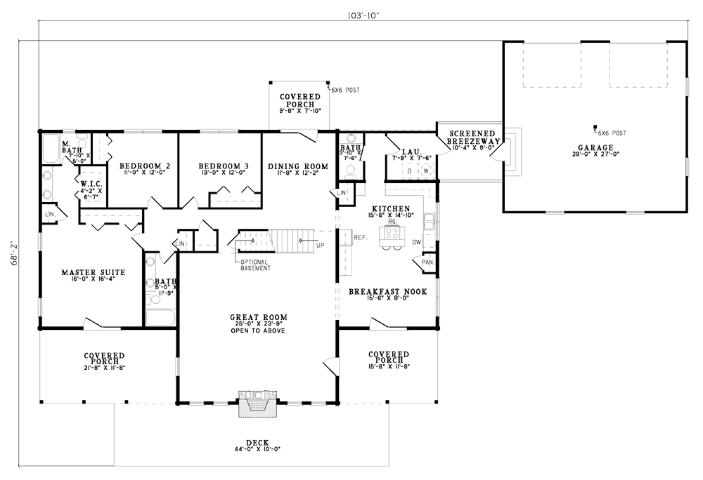
A stunning addition to our Barna Log House Collection, The Grey Fox gives you a warm welcome, with a cozy front deck/porch and a stone chimney accentuating the log exterior. The right Covered Porch allows you to access either the Great Room or Breakfast Nook. The Great Room is home to the warm stone fireplace, flanked by picture frame windows, and has tons of space for large gatherings. The Breakfast Nook is located to the right of the Great Room and shares a space with the Kitchen, where a center island features a gas stove and seating for 2. The Kitchen has plenty of counter and cabinet space and leads way to the Laundry Room and half bath at the rear of the home. The Laundry Room also serves as a mudroom entry to the 2-car garage, attached by a Screened Breezeway. To the left of the Kitchen, you can enter the formal Dining Room. The linen closet would be perfect for storing your dining essentials, and the charming rear Covered Porch serves as the perfect view for your meals. 

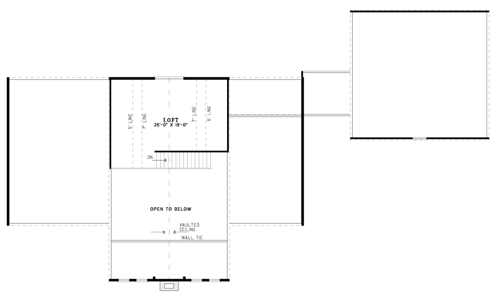
A nearby hallway houses the bedrooms of The Grey Fox, along with a hall bath with a dual sink vanity. Across from this bath are Bedrooms 2 and 3, each with sizeable closets. At the very end of this hallway, you will find the Master Suite which boasts private access to the left front Covered Porch. Storage space is in no way lacking here, with a long step-in closet, a spacious walk-in closet, and a convenient closet. His and her sinks share a vanity just outside the toilet/shower room, providing maximum privacy. Upstairs is a spacious Loft open to the Great Room below. This space would be perfect for the kids to share or for family game nights!  How would you customize this amazing house plan?

NOTE: Barna plans are intended for log exterior walls. Converting these to 2X6 exterior walls requires modification and will be subject to additional modification cost. Contact one of our home plan specialists today to discuss modification requirements by emailing info@nelsondesigngroup.com or calling 870-931-5777

Customizing This House Plan

Make this house plan into your dream home!

We understand that when it comes to building a home you want it to be perfect for you. Our team of experienced house plan specialists would love to be able to help you through the process of modifying this, or any of the other house plans found on our website, to better fit your needs. Whether you know the exact changes you need made or just have some ideas that would like to discuss with our team send us an email at: info@nelsondesigngroup.com or give us a call at 870-931-5777 What to know a little more about the process of customizing one of our house plans? Check out our Modifications FAQ page.

Home Specifications

  • Total Living Space: 2660
  • Ridge Height (Ft.) N/A
  • Main Floor (Sq. Ft.): 2360 Sq.Ft
  • Ridge Height (In.) 0
  • Upper Floor (Sq. Ft.): 300 Sq.Ft.
  • Main Ceiling Height: 8
  • Lower Floor (Sq. Ft.): N/A
  • Upper Ceiling Height: 8
  • Porch (Sq. Ft.): 973 Sq.Ft.
  • Lower Ceiling Height: N/A
  • Garage (Sq. Ft.): 840 Sq.Ft.
  • Garage: 2 Bay Yes
  • Bonus (Sq.Ft): N/A
  • Garage/Carport Type:Rear Load Rear Load
  • Bedrooms: 3
  • Carport: N/A
  • Full Baths: 2
  • Roof Pitch: 12:12
  • Half Baths: 1
  • Porch Roof Pitch: 3:12
  • Stories: 1.0
  • Wall Construction: N/A
  • Lower Bonus (Sq. Ft.): N/A
  • Vaulted Ceiling: No
  • Depth (Ft): 68
  • Width (Ft): 103
  • Depth (In.) 2
  • Width (In.) 10
  • Total Sq. Ft. 4473 Sq.Ft.
  • Customizable: Yes

Key Features

  • Covered Front Porch
  • Covered Rear Porch
  • Decks Patios Balconies
  • Formal Dining Room
  • Great Room
  • Kitchen Island
  • Loft
  • Main Floor Master
  • Nook/Breakfast Area
  • Open Floor Plan House Plans
  • Peninsula/Eating Bar
  • Walk-in Closet

Plan Collections

  • Barna Log House Plans Collection

Plan Styles

  • Country Home House Plans
  • Log Cabin House Plans
  • Low Country House Plans
  • Mountain House Plans
  • Rustic House Plans

Plan Spec Download

PLAN SPEC DOWNLOAD

Customize This Plan

Need to make changes? We will get you a free price quote!

MODIFY THIS PLAN