House Plan 602 Olive Street, Country House Home Plan
Please log in or create account to add the product in wishlist.
Wishlist is not saved permanently yet. Please log in or create account to save it.
Or order by phone: (870) 931-5777
Floor Plans
Description
House Plan 602 Olive Street – Southern Country 3‑Bedroom House Plan | NDG 602
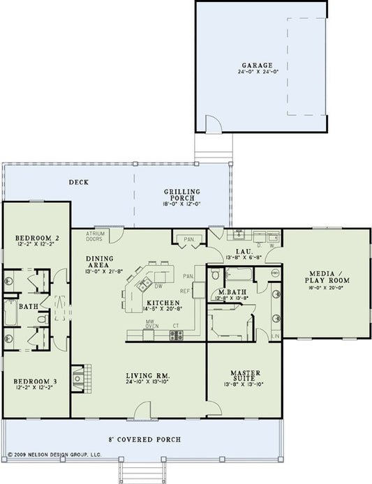
Embrace classic Southern charm and functional family living with House Plan 602 Olive Street, a beautiful 3‑bedroom house plan that blends traditional architecture with modern comfort. This thoughtfully designed low‑country home offers 3 bedrooms and 3 full baths within approximately 1,921 sq ft of total living space, plus a 2‑bay side‑load garage and expansive wrap‑around porch that enhances both curb appeal and outdoor living.
Inside, an open floor plan greets you with a great room featuring a fireplace and media center, creating a warm hub for everyday life and entertaining. The adjacent hearth room with its own fireplace adds an intimate space ideal for quiet evenings or small gatherings. The well‑appointed kitchen features ample counter space and a central island bar perfect for casual meals and social interaction. A generous master suite boasts abundant storage and a luxurious bath with a magnificent whirlpool tub, while two additional bedrooms share a walk‑through bathroom designed for convenience and comfort.
Outdoor living is elevated with both covered front and rear porches, plus a large game room that provides flexible space for recreation or hobbies. With its open floor plan, Southern styling, and thoughtful amenities, House Plan 602 Olive Street ranks among desirable house plans for homeowners seeking charm, comfort, and everyday livability.
Home Specifications
- Total Living Space: 1921
- Ridge Height (Ft.) 20
- Main Floor (Sq. Ft.): 1921 Sq.Ft
- Ridge Height (In.) 4
- Upper Floor (Sq. Ft.): N/A
- Main Ceiling Height: 8
- Lower Floor (Sq. Ft.): N/A
- Upper Ceiling Height: 8
- Porch (Sq. Ft.): 1437 Sq.Ft.
- Lower Ceiling Height: N/A
- Garage (Sq. Ft.): 528 Sq.Ft.
- Garage: 2 Bay Yes
- Bonus (Sq.Ft): 812 Sq.Ft.
- Garage/Carport Type:Side Load Side Load
- Bedrooms: 3
- Carport: N/A
- Full Baths: 3
- Roof Pitch: 8:12
- Porch Roof Pitch: 3:12
- Stories: 1.0
- Wall Construction: 2x4
- Lower Bonus (Sq. Ft.): N/A
- Vaulted Ceiling: Yes
- Depth (Ft): 55
- Width (Ft): 84
- Depth (In.) 6
- Width (In.) N/A
- Total Sq. Ft. 4698 Sq.Ft.
- Customizable: Yes
Key Features
- Bonus/Game and Media Room
- Covered Front Porch
- Covered Rear Porch
- Decks Patios Balconies
- Economic Structure
- Formal Dining Room
- Grilling Porch
- Jack & Jill Bathroom
- Main Floor Master
- Open Floor Plan House Plans
- Peninsula/Eating Bar
- Split Bedroom Design
- Walk-in Closet
- Wrap-Around Porch
Plan Collections
Plan Styles
- Country Home House Plans
- Farmhouse House Plans
- Low Country House Plans
- Southern House Plans
- Traditional House Plans



