House Plan 772 Magnolia Drive, Farmhouse House Plan
Please log in or create account to add the product in wishlist.
Wishlist is not saved permanently yet. Please log in or create account to save it.
Or order by phone: (870) 931-5777
Floor Plans
Description
House Plan 772 Magnolia Drive – Farmhouse-Style 3-Bedroom House Plan (NDG 772)
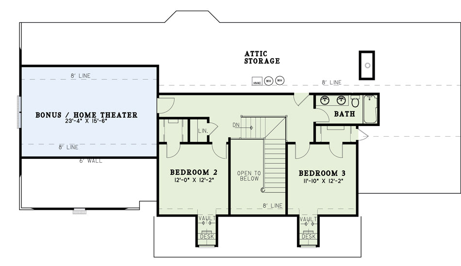
Discover the inviting charm of House Plan 772 Magnolia Drive, a beautifully designed farmhouse house plan that blends traditional curb appeal with thoughtful modern living. Boasting approximately 2,422 sq. ft. of living space, this plan features 3 bedrooms and 2 full bathrooms plus a half bath, offering generous and comfortable accommodations for families or anyone seeking versatile living spaces. The layout centers around an open interior that flows naturally from the welcoming foyer to the living and dining areas, perfect for everyday living and entertaining. A column-lined covered front porch enhances the home’s classic farmhouse exterior and provides a warm, inviting entry. Inside, the well-appointed kitchen is conveniently situated between the dining and living spaces, creating a functional hub for meal preparation and gatherings. The primary suite offers a private retreat, while two additional bedrooms provide flexibility for family, guests, or a home office. With a 2-bay garage and timeless architectural details, House Plan 772 Magnolia Drive stands out among popular house plans for its blend of style, space, and practical design.
Home Specifications
- Total Living Space: 2422
- Ridge Height (Ft.) 32
- Main Floor (Sq. Ft.): 1778 Sq.Ft
- Ridge Height (In.) 0
- Upper Floor (Sq. Ft.): 644 Sq.Ft.
- Main Ceiling Height: 9
- Lower Floor (Sq. Ft.): N/A
- Upper Ceiling Height: 8
- Porch (Sq. Ft.): 729 Sq.Ft.
- Lower Ceiling Height: N/A
- Garage (Sq. Ft.): 687 Sq.Ft.
- Garage: 2 Bay Yes
- Bonus (Sq.Ft): 384 Sq.Ft.
- Garage/Carport Type:Front Load Front Load
- Bedrooms: 3
- Carport: N/A
- Full Baths: 2
- Roof Pitch: 12:12
- Half Baths: 1
- Porch Roof Pitch: N/A
- Stories: 1.5
- Wall Construction: 2x4
- Lower Bonus (Sq. Ft.): N/A
- Vaulted Ceiling: No
- Depth (Ft): 52
- Width (Ft): 76
- Depth (In.) 6
- Width (In.) N/A
- Total Sq. Ft. 4213 Sq.Ft.
- Customizable: Yes
Key Features
- Balcony
- Bonus Room Over Garage
- Covered Front Porch
- Covered Rear Porch
- Formal Dining Room
- Great Room
- Grilling Porch
- Home Office/Study
- Home Theater
- Main Floor Master
- Nook/Breakfast Area
- Open Floor Plan House Plans
- Oversized Garage
- Peninsula/Eating Bar
- Split Bedroom Design
- Walk-in Closet
Plan Collections
Plan Styles
- Country Home House Plans
- Farmhouse House Plans
- Low Country House Plans
- Southern House Plans
- Traditional House Plans









