House Plan 787 Madison Cove, Historical House Plan
Please log in or create account to add the product in wishlist.
Wishlist is not saved permanently yet. Please log in or create account to save it.
Or order by phone: (870) 931-5777
Floor Plans
Description
Discover House Plan NDG 787 – Madison Cove: Timeless Southern House Plans Designed for Modern Living
This House plan combines classic Southern charm with smart, livable design. House Plan NDG 787 – Madison Cove offers the perfect balance. With nearly 2,000 square feet of well-thought-out space, this single-story home embraces both elegance and everyday functionality — ideal for families, empty nesters, or anyone who values thoughtful design and beautiful curb appeal.
Key Features of This Southern Traditional Home
- Living Space: 1,989 sq. ft. of heated living area with an open-concept layout perfect for both daily life and entertainment.
- Bedrooms & Bathrooms: 3 spacious bedrooms and 2 full bathrooms, including a luxurious master suite with a private bath and large walk-in closet.
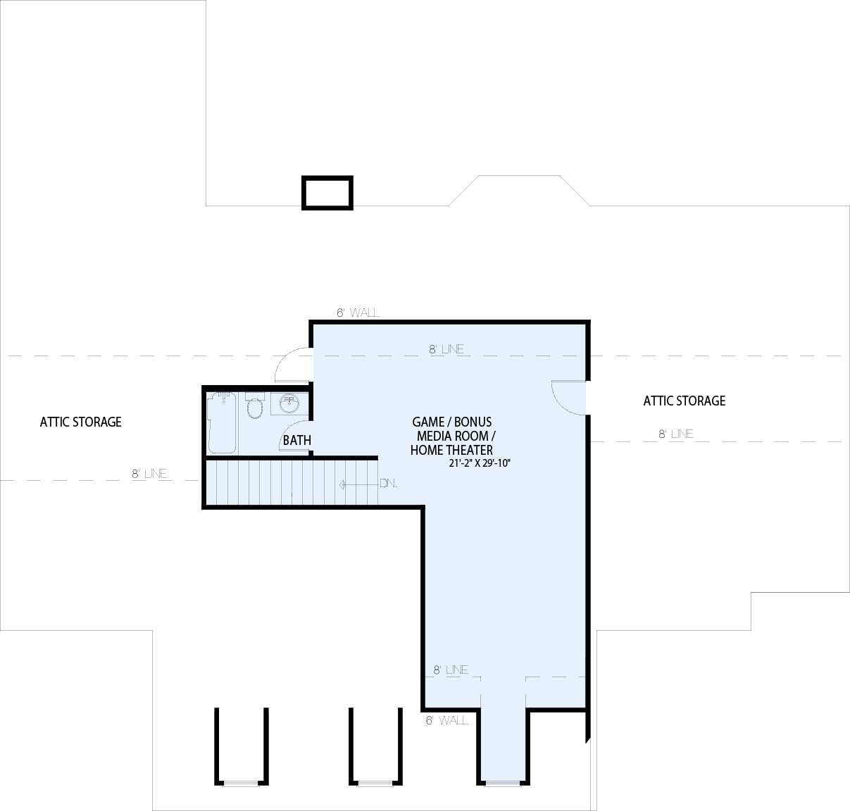
- Bonus Room: 471 sq. ft. of expandable space upstairs — ideal for a media room, playroom, or home office.
- Garage & Storage: A side-loading 2-car garage and generous attic storage offer practicality without sacrificing style.
- Outdoor Living: Covered front and rear porches, along with a grilling porch, provide over 700 sq. ft. of outdoor enjoyment.
Designed for Comfort, Built for Life
This plan is part of a historical Southern collection of house plans that honors traditional architecture while offering a fresh, updated feel. Vaulted ceilings and a flowing layout create a sense of spaciousness, while the formal dining room and large kitchen with snack bar make hosting guests effortless.
Whether you're enjoying coffee on the front porch, unwinding in the great room by the fireplace, or working from home in the optional study, Madison Cove is designed to meet the needs of modern homeowners.
Why This Plan Stands Out Among Other House Plans
- Combines classic Southern architecture with practical floor plan features.
- Features open living areas with natural flow between spaces.
- Includes flexible bonus space for changing family needs.
- Offers multiple foundation options (slab, crawl space, or basement)
- Delivers comfort, efficiency, and timeless style in one elegant design.
If you're looking at house plans that feel like home from the moment you walk in, House Plan NDG 787 – Madison Cove delivers a graceful blend of tradition and convenience — the kind of home you'll love for years to come.
Home Specifications
- Total Living Space: 1989
- Ridge Height (Ft.) 25
- Main Floor (Sq. Ft.): 1989 Sq.Ft
- Ridge Height (In.) 8
- Upper Floor (Sq. Ft.): N/A
- Main Ceiling Height: 9
- Lower Floor (Sq. Ft.): N/A
- Upper Ceiling Height: 8
- Porch (Sq. Ft.): 704 Sq.Ft.
- Lower Ceiling Height: N/A
- Garage (Sq. Ft.): 537 Sq.Ft.
- Garage: 2 Bay Yes
- Bonus (Sq.Ft): 471 Sq.Ft.
- Garage/Carport Type:Side Load Side Load
- Bedrooms: 3
- Carport: N/A
- Full Baths: 2
- Roof Pitch: 8:12
- Porch Roof Pitch: N/A
- Stories: 1.0
- Wall Construction: 2x4
- Lower Bonus (Sq. Ft.): N/A
- Vaulted Ceiling: No
- Depth (Ft): 63
- Width (Ft): 66
- Depth (In.) N/A
- Width (In.) N/A
- Total Sq. Ft. 3701 Sq.Ft.
- Customizable: Yes
Key Features
- Bonus/Game and Media Room
- Covered Front Porch
- Covered Rear Porch
- Formal Dining Room
- Great Room
- Home Office/Study
- Home Theater
- Main Floor Master
- Nook/Breakfast Area
- Open Floor Plan House Plans
- Peninsula/Eating Bar
- Walk-in Closet
Plan Collections
- Historical House Plans Collection
Plan Styles
- Country Home House Plans
- Farmhouse House Plans
- Low Country House Plans
- Southern House Plans
- Traditional House Plans









