House Plan 5269 Aspen Overlook, Rustic House Plan

House Plan:MEN 5269
$2,250.00
Shipping calculated at checkout.
Add to Wishlist
[View Wishlist]

Or order by phone: (870) 931-5777

Floor Plans

Floor Plan #1

Description

Aspen Overlook – Rustic House Plan

For those exploring house plans that combine rustic elegance with spacious, functional living, Aspen Overlook is an exceptional choice. This two-level design offers approximately 5,347 square feet with 3 bedrooms and 4 full bathrooms, ideal for luxury living, entertaining, and family comfort.

Key Features:

  • Striking rustic exterior with timber accents, stone elements, and framed box windows for timeless curb appeal
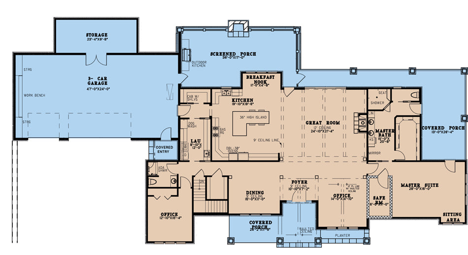
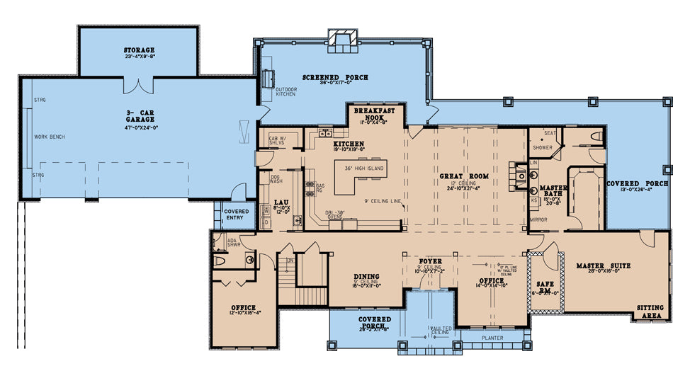
  • Grand open-floor main level with vaulted-ceiling great room, fireplace, and expansive windows connecting to a covered rear porch
  • Spacious kitchen featuring a large L-shaped island, abundant counter space, breakfast nook, and direct access to an outdoor grilling area
  • Luxurious master suite on the main level with sitting area, walk-in closet, dual vanities, and large corner shower
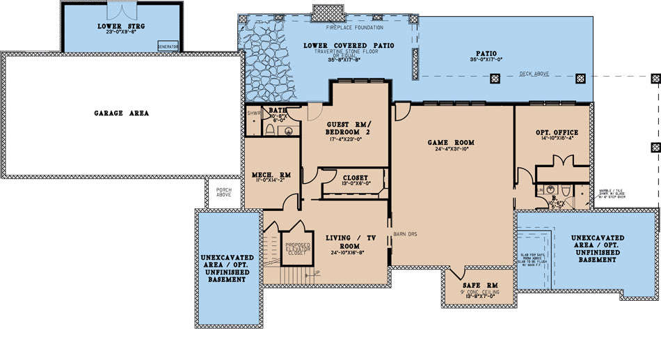
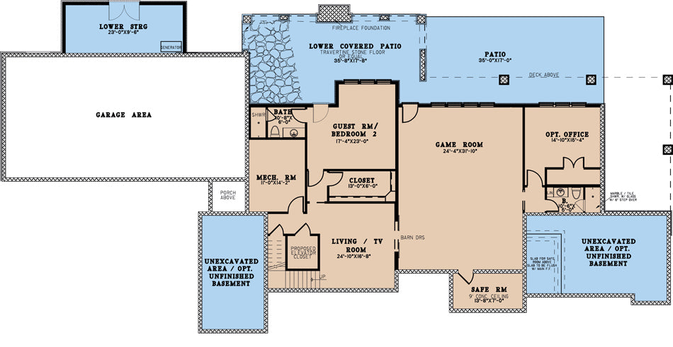
  • Lower level entertainment area with a living room, guest bedroom with en-suite bath, and covered patio access
  • Three-car garage plus additional storage space and optional safe rooms for added functionality

Perfect for families or anyone seeking house plans that deliver a blend of rustic charm, multiple living zones, and upscale amenities, Aspen Overlook stands out for its thoughtful design, flexible spaces, and dramatic aesthetic.

Home Specifications

  • Total Living Space: 5347
  • Ridge Height (Ft.) 32
  • Main Floor (Sq. Ft.): 3076 Sq.Ft
  • Ridge Height (In.) 0
  • Upper Floor (Sq. Ft.): N/A
  • Main Ceiling Height: 9
  • Lower Floor (Sq. Ft.): 2271 Sq.Ft.
  • Upper Ceiling Height: N/A
  • Porch (Sq. Ft.): 1348 Sq.Ft.
  • Lower Ceiling Height: 9
  • Garage (Sq. Ft.): 1427 Sq.Ft.
  • Garage: 3 Bay Yes
  • Bonus (Sq.Ft): N/A
  • Garage/Carport Type:Front Load Front Load
  • Bedrooms: 3
  • Carport: N/A
  • Full Baths: 4
  • Roof Pitch: 12:12
  • Porch Roof Pitch: N/A
  • Stories: 2.0
  • Wall Construction: 2x4
  • Lower Bonus (Sq. Ft.): 790 Sq.Ft.
  • Vaulted Ceiling: Yes
  • Depth (Ft): 64
  • Width (Ft): 130
  • Depth (In.) 8
  • Width (In.) 6
  • Total Sq. Ft. 8912 Sq.Ft.
  • Customizable: Yes

Key Features

  • Covered Front Porch
  • Covered Rear Porch
  • Formal Dining Room
  • Game Room
  • Great Room
  • Home Office/Study
  • Kitchen Island
  • Main Floor Master
  • Nook/Breakfast Area
  • Open Floor Plan House Plans
  • Outdoor Kitchen
  • Peninsula/Eating Bar
  • Saferoom
  • Sitting Area
  • Split Bedroom Design
  • Two Story
  • Walk-in Closet

Plan Collections

  • Michael E. Nelson House Plans Collection

Plan Styles

  • Craftsman House Plans
  • Mountain House Plans
  • Rustic House Plans

Plan Spec Download

PLAN SPEC DOWNLOAD

Customize This Plan

Need to make changes? We will get you a free price quote!

MODIFY THIS PLAN