House Plan 5297 Summervale Place, Rustic House Plan
Please log in or create account to add the product in wishlist.
Wishlist is not saved permanently yet. Please log in or create account to save it.
Or order by phone: (870) 931-5777
Floor Plans
Description
The Ashland Manor – A Classic Traditional House Plan
Searching for house plans that combine timeless elegance with modern comfort? The Ashland Manor offers a stunning blend of traditional architecture and functional living—perfect for families who value both style and practicality.
This 2,382 sq. ft. home features 3 spacious bedrooms, 2.5 baths, and a 2-car garage, designed with your lifestyle in mind. From its charming curb appeal and welcoming entryway to its open-concept living spaces, every detail of this plan is crafted for comfort, beauty, and ease of living.
Highlights of the Ashland Manor:
- Total Living Space: 2,382 sq. ft.
- Bedrooms: 3
- Bathrooms: 2.5
- Garage: 2-car with easy home access
- Design Style: Elegant Traditional with classic rooflines and brick accents
- Open Floor Plan: Spacious great room flows seamlessly into the dining and kitchen areas
- Kitchen Features: Large island and walk-in pantry for everyday convenience
- Master Suite: Private retreat with a spa-style bath and walk-in closet
- Outdoor Living: Covered porch for relaxing or entertaining guests
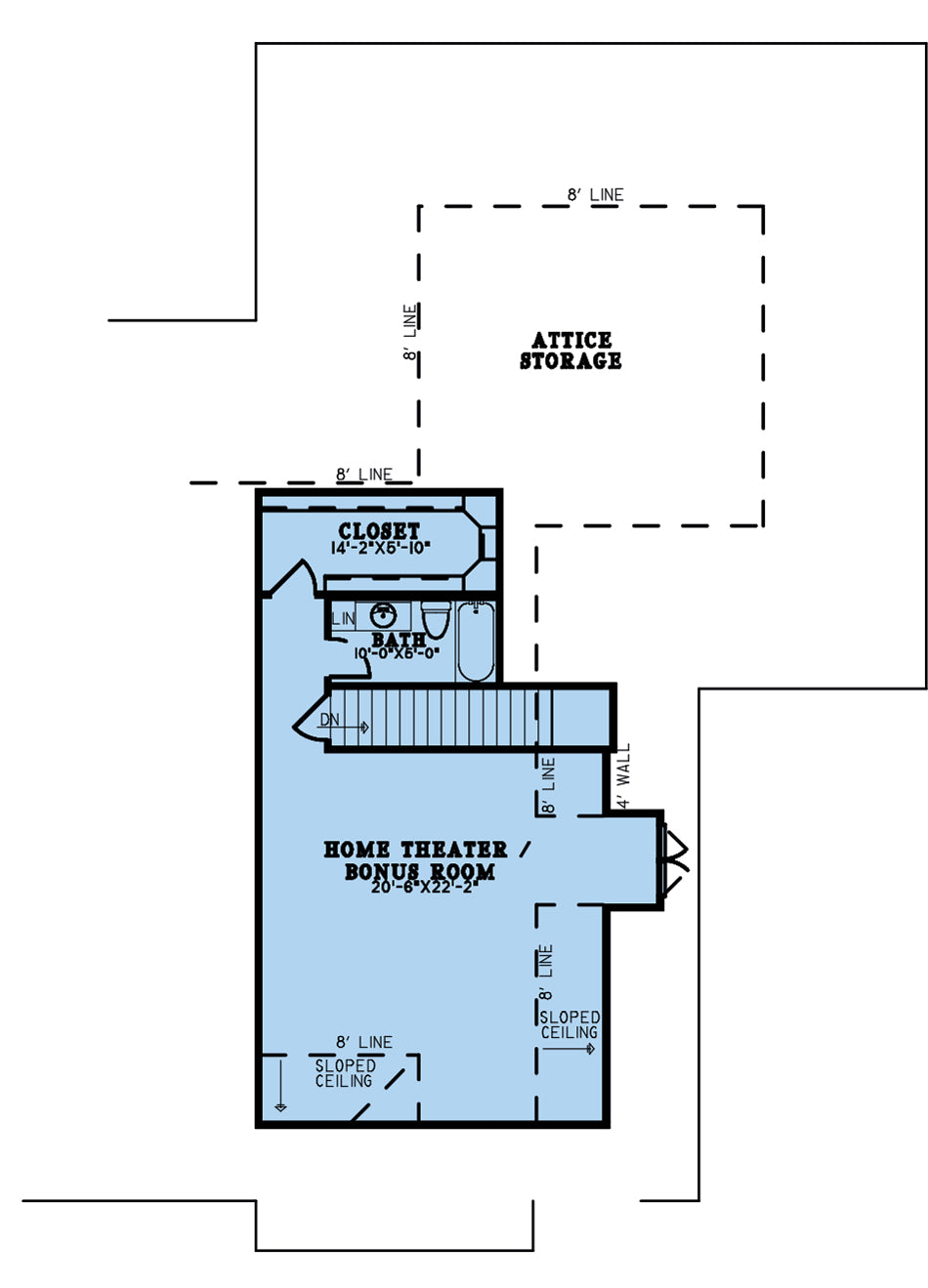
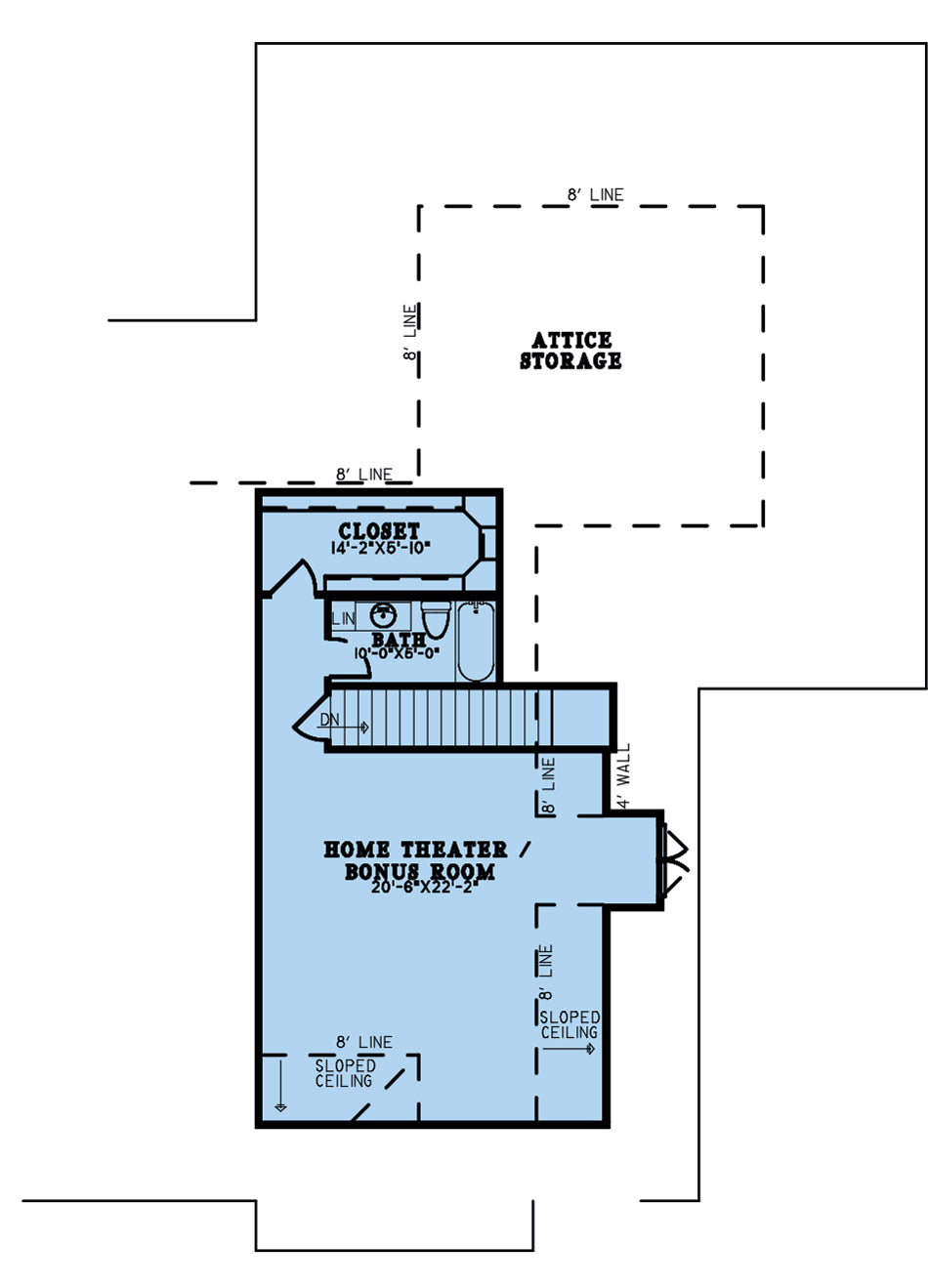
- Bonus Room Option: Perfect for a home office, media room, or guest space
- Energy-Efficient Construction: Built for durability and modern comfort
Whether you’re building your forever home or a family retreat, The Ashland Manor delivers the perfect mix of sophistication and livability. Its timeless design and thoughtful layout make it one of the most appealing house plans for homeowners who want classic beauty with a modern touch.
Home Specifications
- Total Living Space: 3358
- Ridge Height (Ft.) 38
- Main Floor (Sq. Ft.): 3358 Sq.Ft
- Ridge Height (In.) 0
- Upper Floor (Sq. Ft.): N/A
- Main Ceiling Height: 9
- Lower Floor (Sq. Ft.): N/A
- Upper Ceiling Height: 8
- Porch (Sq. Ft.): 770 Sq.Ft.
- Lower Ceiling Height: N/A
- Garage (Sq. Ft.): 1275 Sq.Ft.
- Garage: 3 Bay Yes
- Bonus (Sq.Ft): 700 Sq.Ft.
- Garage/Carport Type:Front Load and Side Load Front Load and Side Load
- Bedrooms: 4
- Carport: No
- Full Baths: 3
- Roof Pitch: 12:12
- Half Baths: 1
- Porch Roof Pitch: N/A
- Stories: 1.0
- Wall Construction: 2x4
- Lower Bonus (Sq. Ft.): N/A
- Vaulted Ceiling: Yes
- Depth (Ft): 73
- Width (Ft): 94
- Depth (In.) 8
- Width (In.) 8
- Total Sq. Ft. 6103 Sq.Ft.
- Customizable: Yes
Key Features
- Arched Entry
- Bonus Room Over Garage
- Butler's Pantry
- Covered Front Porch
- Covered Rear Porch
- Formal Dining Room
- Great Room
- Grilling Porch
- Home Office/Study
- Home Theater
- Jack & Jill Bathroom
- Kitchen Island
- Main Floor Master
- Mudroom
- Nook/Breakfast Area
- Open Floor Plan House Plans
- Peninsula/Eating Bar
- Screened Porch
- Single Story
- Walk-in Closet
- Walk-in-Pantry
Plan Collections
- Michael E. Nelson House Plans Collection
Plan Styles
- Country Home House Plans
- Craftsman House Plans
- Rustic House Plans
- Southern House Plans

