House Plan 5305 Cumberland Falls, Riverbend House Plan
Please log in or create account to add the product in wishlist.
Wishlist is not saved permanently yet. Please log in or create account to save it.
Or order by phone: (870) 931-5777
Floor Plans
Description
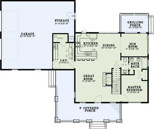
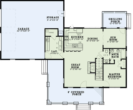
Step into relaxed elegance with the Cumberland Falls – Riverbend House Plan MEN 5305, offering 2,005 sq ft of thoughtfully designed living space with 3 bedrooms, 2 full baths, 1 half bath, and a 1‑bay rear‑load garage. Blending rustic charm and modern comfort, this 1½‑story plan features a striking stone‑accent front porch, open living areas, and an upstairs loft space for flexibility and style.
Why this house plan stands out among house plans:
- Inviting exterior with a classic covered front porch enhanced by stone accents for strong curb appeal
- Spacious great room centered on a stone fireplace, seamlessly connected to an open kitchen and dining area
- Main‑level master suite featuring dual vanities, freestanding tub, walk‑in closet, and direct porch access for a private retreat
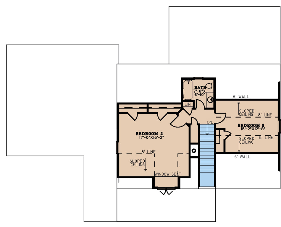
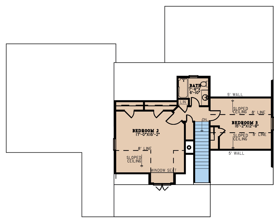
- Split‑bedroom design: two secondary bedrooms upstairs share a full bath and overlook the main area via a loft space
- Screened rear porch with a cozy fireplace adds a premium outdoor‑living dimension
Key Features of the Plan:
- 3 bedrooms
- 2 full baths + 1 half bath
- Main‑level master suite with luxury bath
- Upper‑level bedrooms + loft space
- Screened rear porch with fireplace
- Rear‑load 1‑bay garage with extra workshop/storage area
- Open‑concept great room, kitchen & dining
- Covered front porch with stone detailing
Ready to turn your “house plans” search into something you can build? Explore the full specifications of Cumberland Falls – Riverbend and imagine life in a home where rustic charm meets smart, modern living.
Home Specifications
- Total Living Space: 2005
- Ridge Height (Ft.) 22
- Main Floor (Sq. Ft.): 1356 Sq.Ft
- Ridge Height (In.) 6
- Upper Floor (Sq. Ft.): 649 Sq.Ft.
- Main Ceiling Height: 9
- Lower Floor (Sq. Ft.): N/A
- Upper Ceiling Height: 8
- Porch (Sq. Ft.): 698 Sq.Ft.
- Lower Ceiling Height: N/A
- Garage (Sq. Ft.): 574 Sq.Ft.
- Garage: 1 Bay Yes
- Bonus (Sq.Ft): N/A
- Garage/Carport Type:Rear Load Rear Load
- Bedrooms: 3
- Carport: N/A
- Full Baths: 2
- Roof Pitch: 9:12
- Half Baths: 1
- Porch Roof Pitch: 5:12
- Stories: 1.5
- Wall Construction: 2x6
- Lower Bonus (Sq. Ft.): N/A
- Vaulted Ceiling: No
- Depth (Ft): 54
- Width (Ft): 66
- Depth (In.) 8
- Width (In.) 6
- Total Sq. Ft. 3277 Sq.Ft.
- Customizable: Yes
Key Features
- Covered Front Porch
- Covered Rear Porch
- Formal Dining Room
- Main Floor Master
- Open Floor Plan House Plans
- Peninsula/Eating Bar
- Screened Porch
- Split Bedroom Design
- Walk-in Closet
- Workshop Garage
Plan Collections
- Michael E. Nelson House Plans Collection
- Riverbend Cabin House Plans Collection
Plan Styles
- Country Home House Plans
- Craftsman House Plans
- Low Country House Plans
- Mountain House Plans
- Rustic House Plans
- Southern House Plans

