House Plan 5335 Woodland Place, Craftsman House Plan
House Plan:MEN 5335
$1,850.00
/
Add to Wishlist
Remove from Wishlist
[View Wishlist]
Please log in or create account to add the product in wishlist.
Wishlist is not saved permanently yet. Please log in or create account to save it.
Or order by phone: (870) 931-5777
Floor Plans
Description
Discover the Woodland Place: A Luxurious Craftsman Retreat
House Plan 5335, known as Woodland Place, is a distinguished design from the Craftsman House Collection by award-winning designer Michael E. Nelson. This expansive 1.5-story home offers 4,694 sq. ft. of thoughtfully designed living space, combining classic Craftsman charm with modern luxury.
Key Features:
- Grand Entry: The home welcomes you with an entry porch accented by beautiful wood framing and double doors, setting the tone for the elegance within.
- Open Floor Plan: Inside, a stunning kitchen featuring a center island, a bar table, and two walk-in pantries separates the massive great room from a cozy breakfast nook, creating a perfect space for entertaining and family gatherings.
- Master Suite Retreat: The master suite, located on the left side of the home, includes his and her walk-in closets and a luxurious master bath with a glass walk-in shower, a free-standing tub, dual vanities, and a private toilet room.
- Guest Accommodations: On the opposite side of the home, three additional bedrooms each have their own adjoining bathrooms, providing privacy and comfort for guests or family members.
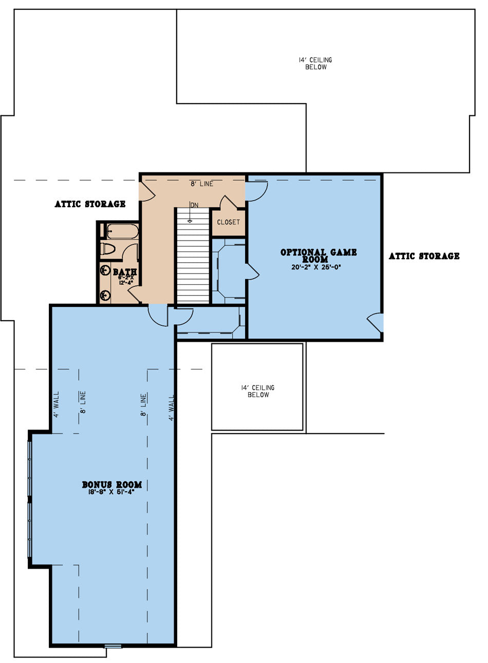
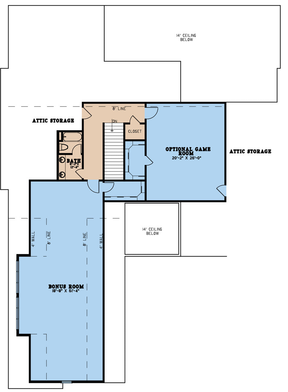
- Upper-Level Bonus Space: An expansive bonus room and a full bathroom upstairs offer additional living space that can be customized to suit your needs, whether as a game room, home office, or media room.
- Outdoor Living: A spacious grilling porch, accessible from both the master suite and the main living area, features an outdoor kitchen and grill, perfect for enjoying beautiful weather and entertaining guests.
Home Specifications
- Total Living Space: 4694
- Ridge Height (Ft.) 34
- Main Floor (Sq. Ft.): 4413 Sq.Ft
- Ridge Height (In.) 7
- Upper Floor (Sq. Ft.): 281 Sq.Ft.
- Main Ceiling Height: 10
- Lower Floor (Sq. Ft.): N/A
- Upper Ceiling Height: 8
- Porch (Sq. Ft.): 1128 Sq.Ft.
- Lower Ceiling Height: N/A
- Garage (Sq. Ft.): 1421 Sq.Ft.
- Garage: 4 Bay Yes
- Bonus (Sq.Ft): 1721 Sq.Ft.
- Garage/Carport Type:Side Load Side Load
- Bedrooms: 4
- Carport: No
- Full Baths: 5
- Roof Pitch: 12:12
- Half Baths: 1
- Porch Roof Pitch: 4:12
- Stories: 1.5
- Wall Construction: 2x6
- Lower Bonus (Sq. Ft.): N/A
- Vaulted Ceiling: No
- Depth (Ft): 98
- Width (Ft): 102
- Depth (In.) 6
- Width (In.) N/A
- Total Sq. Ft. 8964 Sq.Ft.
- Customizable: Yes
Key Features
- Bonus Room Over Garage
- Covered Front Porch
- Covered Rear Porch
- Formal Dining Room
- Great Room
- Grilling Porch
- Home Office/Study
- Kitchen Island
- Main Floor Master
- Mudroom
- Nook/Breakfast Area
- Open Floor Plan House Plans
- Oversized Garage
- Peninsula/Eating Bar
- Split Bedroom Design
- Walk-in Closet
- Walk-in-Pantry
Plan Collections
- Michael E. Nelson House Plans Collection
- Rustic Ridge House Plans Collection
Plan Styles
- Arts & Crafts House Plans
- Craftsman House Plans
- Luxury House Plans
- Mountain House Plans
- Rustic House Plans
- Traditional House Plans

