House Plan MEN 5446 Spring River Retreat, Riverbend Cabin
Please log in or create account to add the product in wishlist.
Wishlist is not saved permanently yet. Please log in or create account to save it.
Or order by phone: (870) 931-5777
Floor Plans
Description
House Plan MEN 5446 – Spring River Retreat
House Plan 5446 – Spring River Retreat is an exceptional modern farmhouse by Nelson Design Group, offering a generous 1,836 square feet of living space. Featuring 3 spacious bedrooms, 2 full bathrooms, and 1 half bath, this stunning home is designed to provide both comfort and functionality for modern living.
Upon entry, the spacious great room welcomes you with a vaulted ceiling and a central fireplace, offering both warmth and elegance. The open kitchen design includes a large central island, abundant counter space, and a walk-in pantry — ideal for preparing meals and hosting gatherings. The kitchen flows effortlessly into the dining area, which opens to a covered rear porch, perfect for outdoor dining and relaxation.
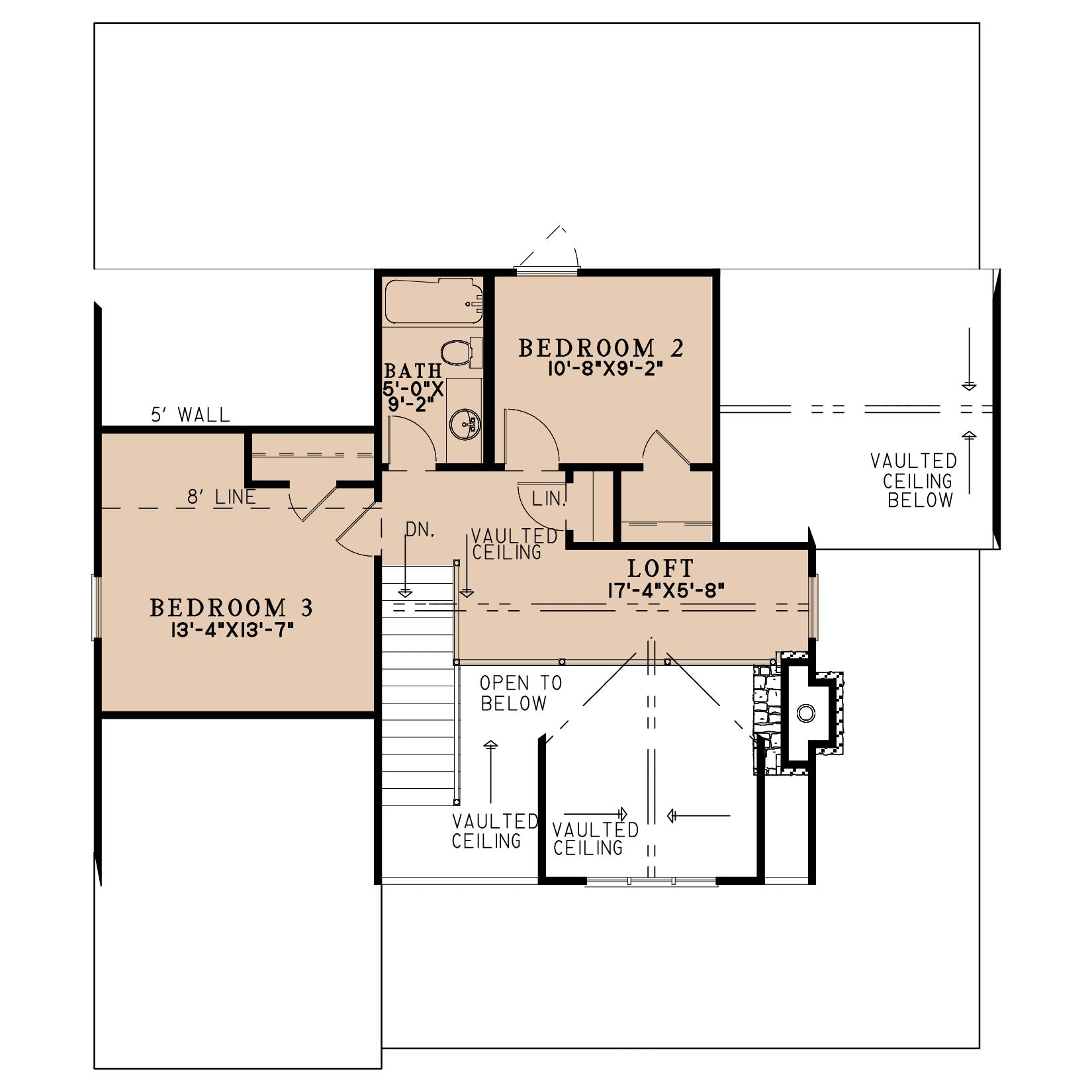
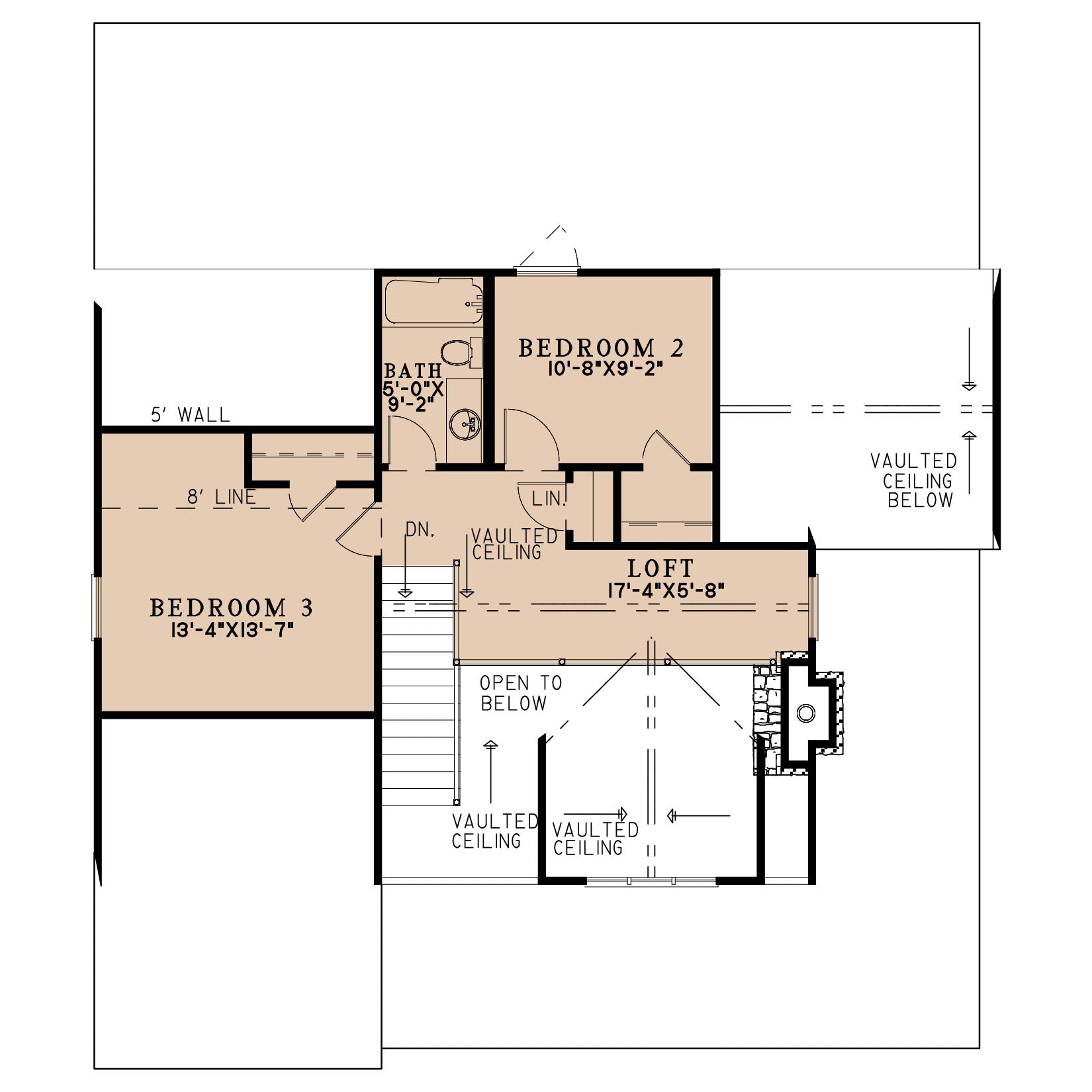
The master suite is thoughtfully positioned for privacy and offers a spacious bedroom, a luxurious en-suite bath with a freestanding tub, a separate walk-in shower, dual vanities, and a large walk-in closet. The two additional bedrooms on the upper floor are sharing a Jack-and-Jill bathroom.
Why Choose Spring River Retreat
- Modern farmhouse design with rustic charm and contemporary features
- Spacious layout (~1,836 sq ft) featuring three bedrooms and three full bathrooms
- Open-concept living spaces, ideal for family gatherings and entertaining guests
- Private master suite with a walk-in closet, and more
- Generous kitchen with central island, ample counter space, and a walk-in pantry
- Covered rear porch perfect for outdoor relaxation and meals
Home Specifications
- Total Living Space: 1836
- Ridge Height (Ft.) 22
- Main Floor (Sq. Ft.): 1304 Sq.Ft
- Ridge Height (In.) 4
- Upper Floor (Sq. Ft.): 532 Sq.Ft.
- Main Ceiling Height: 8
- Lower Floor (Sq. Ft.): N/A
- Upper Ceiling Height: 8
- Porch (Sq. Ft.): 894 Sq.Ft.
- Lower Ceiling Height: N/A
- Garage (Sq. Ft.): N/A
- Garage: No
- Bonus (Sq.Ft): N/A
- Garage/Carport Type:N/A N/A
- Bedrooms: 3
- Carport: N/A
- Full Baths: 2
- Roof Pitch: 10:12
- Half Baths: 1
- Porch Roof Pitch: 4:12
- Stories: 1.5
- Wall Construction: 2x4
- Lower Bonus (Sq. Ft.): N/A
- Vaulted Ceiling: Yes
- Depth (Ft): 51
- Width (Ft): 44
- Depth (In.) N/A
- Width (In.) 2
- Total Sq. Ft. 2730 Sq.Ft.
- Customizable: N/A
Key Features
- Covered Front Porch
- Covered Rear Porch
- Great Room
- Grilling Porch
- Mudroom
- No Formal Dining
- Open Floor Plan House Plans
- Peninsula/Eating Bar
- Split Bedroom Design
- Split-Level Foyer
- Two Story
- Vaulted High Cathedral Ceiling
- Walk-in-Pantry
Plan Collections
- Michael E. Nelson House Plans Collection
- Riverbend Cabin House Plans Collection
- Rustic Ridge House Plans Collection
Plan Styles
- Rustic House Plans
- Vacation House Plans



