House Plan B1029 The Shadow Ridge, Barna Log House Plan

House Plan:NDG B1029
$800.00
Add to Wishlist
[View Wishlist]

Or order by phone: (870) 931-5777

Floor Plans

Floor Plan #1

Description

NDG B1029

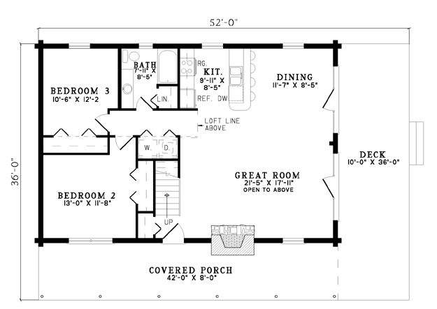
A stunning addition to our Barna Log House Collection, The Shadow Ridge showcases a classic front porch that wraps around into a side deck and features a gorgeous stone chimney. Stepping inside, you are first met with the cozy fireplace within the expansive open floor plan, incorporating the Great Room, Kitchen, and Dining spaces into one. An eat-at island separates the Kitchen from the Dining space and provides an additional gathering spot, while the Dining and Great Room provide access to the Deck so you can soak in the sunlight with great company. To the left, you will enter a hallway housing a full bath, laundry area, and Bedrooms 2 and 3. Although Bedroom 2 is more spacious in size, Bedroom 3 has a little more closet space. Head to the upper level of The Shadow Ridge to your Master Suite! With plenty of space for you and your partner to share, you will love all that it has to offer! The walk-in closet is sure to hold all your wardrobe essentials, and additional attic space is there for any extra storage needed. Don’t forget to take advantage of your private Master Bath on stressful mornings and relaxing evenings! How would you customize this amazing house plan?

NOTE: Barna plans are intended for log exterior walls. Converting these to 2X6 exterior walls requires modification and will be subject to additional modification cost. Contact one of our home plan specialists today to discuss modification requirements by emailing info@nelsondesigngroup.com or calling 870-931-5777

Customizing This House Plan

Make this house plan into your dream home!

We understand that when it comes to building a home you want it to be perfect for you. Our team of experienced house plan specialists would love to be able to help you through the process of modifying this, or any of the other house plans found on our website, to better fit your needs. Whether you know the exact changes you need made or just have some ideas that would like to discuss with our team send us an email at: info@nelsondesigngroup.com or give us a call at 870-931-5777 What to know a little more about the process of customizing one of our house plans? Check out our Modifications FAQ page.

Home Specifications

  • Total Living Space: 1581
  • Ridge Height (Ft.) N/A
  • Main Floor (Sq. Ft.): 1176 Sq.Ft
  • Ridge Height (In.) 0
  • Upper Floor (Sq. Ft.): 405 Sq.Ft.
  • Main Ceiling Height: 8
  • Lower Floor (Sq. Ft.): N/A
  • Upper Ceiling Height: 8
  • Porch (Sq. Ft.): 696 Sq.Ft.
  • Lower Ceiling Height: N/A
  • Garage (Sq. Ft.): N/A
  • Garage: No
  • Bonus (Sq.Ft): N/A
  • Bedrooms: 3
  • Carport: N/A
  • Full Baths: 2
  • Roof Pitch: 12:12
  • Porch Roof Pitch: 4:12
  • Stories: 1.5
  • Wall Construction: N/A
  • Lower Bonus (Sq. Ft.): N/A
  • Vaulted Ceiling: No
  • Depth (Ft): 36
  • Width (Ft): 52
  • Depth (In.) N/A
  • Width (In.) N/A
  • Total Sq. Ft. 2277 Sq.Ft.
  • Customizable: Yes

Key Features

  • Covered Front Porch
  • Formal Dining Room
  • Great Room
  • Open Floor Plan House Plans
  • Peninsula/Eating Bar
  • Split Bedroom Design
  • Walk-in Closet

Plan Collections

  • Barna Log House Plans Collection

Plan Styles

  • Country Home House Plans
  • Farmhouse House Plans
  • Log Cabin House Plans
  • Low Country House Plans
  • Mountain House Plans
  • Rustic House Plans

Plan Spec Download

PLAN SPEC DOWNLOAD

Customize This Plan

Need to make changes? We will get you a free price quote!

MODIFY THIS PLAN