House Plan 5200 Summer Place, Country Home House Plan
House Plan:MEN 5200
$1,550.00
/
Add to Wishlist
Remove from Wishlist
[View Wishlist]
Please log in or create account to add the product in wishlist.
Wishlist is not saved permanently yet. Please log in or create account to save it.
Or order by phone: (870) 931-5777
Floor Plans
Description
Summer Place House Plan MEN 5200 — Rustic Charm Meets Modern Living
If you're exploring “house plans” with rustic appeal, practical layout, and customizable flexibility, Summer Place Plan MEN 5200 from Nelson Design Group delivers on all fronts. This home brings together warm country style and modern conveniences in a thoughtfully designed package.
Standout Features of This House Plan
- Comfortable size & layout: Offering 2,663 square feet of living space over 1.5 stories, this plan accommodates four bedrooms and three full baths.
- Rustic curb appeal: A large front porch, dormers, and stone‑skirt columns create welcoming, rustic design elements that enhance the home’s façade.
- Inviting great room: The heart of the home features a vaulted ceiling, a fireplace, and excellent views of the rear wrap‑around covered porch.
- Indoor‑outdoor integration: A screened porch with beadboard ceiling connects to the dining room, offering a bug‑free outdoor escape, while the covered porch continues the vaulted ceiling design.
- Thoughtful flow & utility: Adjacent to the kitchen is a laundry/mudroom entry connecting to the garage. The kitchen includes a 42″ eating bar, generous cabinet and countertop space, and a walk‑in pantry closed off by a charming barn door.
- Main level master suite: On the main floor, the master bedroom features a private foyer, dual sinks in the bathroom, a spacious shower with seat, and a large walk‑in closet.
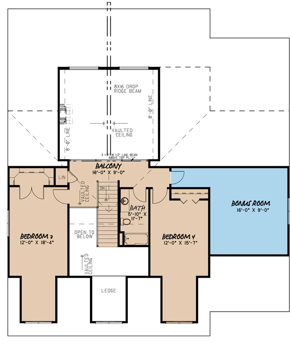
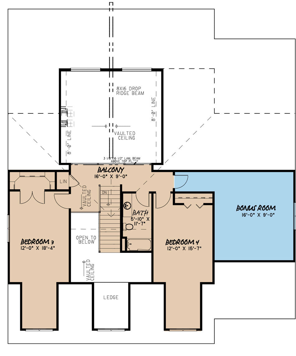
- Upper level flexibility: Upstairs are two additional bedrooms with dormers and shared bath. A balcony overlooks the great room and foyer, and an optional bonus room (338 sq. ft.) offers space for an office, media room, or play area.
Home Specifications
- Total Living Space: 2663
- Ridge Height (Ft.) 29
- Main Floor (Sq. Ft.): 1780 Sq.Ft
- Ridge Height (In.) 0
- Upper Floor (Sq. Ft.): 863 Sq.Ft.
- Main Ceiling Height: 9
- Lower Floor (Sq. Ft.): N/A
- Upper Ceiling Height: 8
- Porch (Sq. Ft.): 1336 Sq.Ft.
- Lower Ceiling Height: N/A
- Garage (Sq. Ft.): 610 Sq.Ft.
- Garage: 1 Bay Yes
- Bonus (Sq.Ft): 338 Sq.Ft.
- Garage/Carport Type:Front Load Front Load
- Bedrooms: 4
- Carport: N/A
- Full Baths: 3
- Roof Pitch: 10:12
- Porch Roof Pitch: N/A
- Stories: 1.5
- Wall Construction: 2x4
- Lower Bonus (Sq. Ft.): N/A
- Vaulted Ceiling: Yes
- Depth (Ft): 67
- Width (Ft): 58
- Depth (In.) 4
- Width (In.) N/A
- Total Sq. Ft. 4947 Sq.Ft.
- Customizable: Yes
Key Features
- Balcony
- Bonus Room Over Garage
- Covered Front Porch
- Covered Rear Porch
- Formal Dining Room
- Great Room
- Main Floor Master
- Open Floor Plan House Plans
- Peninsula/Eating Bar
- Screened Porch
- Split Bedroom Design
- Walk-in Closet
- Walk-in-Pantry
- Wrap-Around Porch
Plan Collections
- Michael E. Nelson House Plans Collection
Plan Styles
- Country Home House Plans
- Craftsman House Plans
- Mountain House Plans
- Rustic House Plans

