House Plan 385 Brandon Circle, Farmhouse House Plan
Please log in or create account to add the product in wishlist.
Wishlist is not saved permanently yet. Please log in or create account to save it.
Or order by phone: (870) 931-5777
Floor Plans
Description
NDG 385 – Brandon Circle: Luxury Home Plan with Lanai, Bonus Room & Stunning Master Suite
Enjoy refined comfort in NDG 385 – Brandon Circle, a beautifully designed luxury home plan that offers spacious indoor and outdoor living with elegant details throughout.
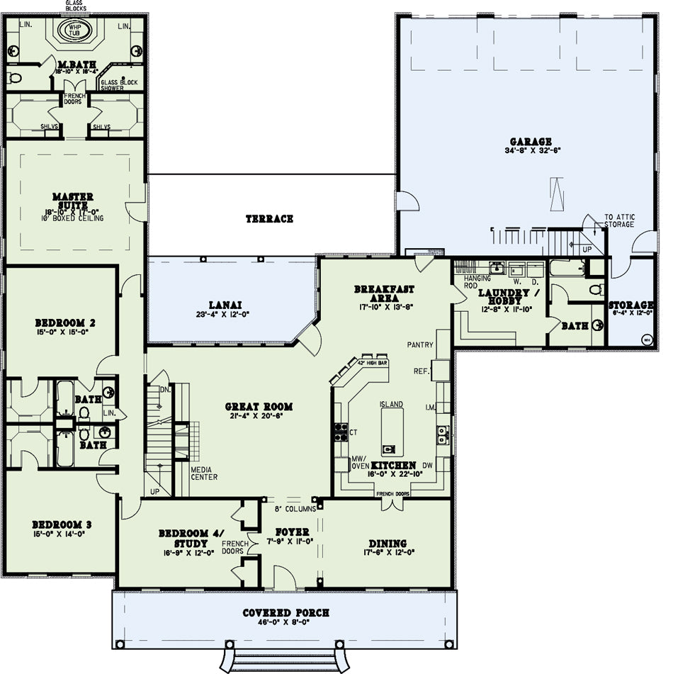
The large great room features a built-in media center and cozy fireplace, perfect for relaxing or entertaining. The adjoining kitchen boasts a grand island, ample counter space, and a large eat-at bar that seamlessly serves the breakfast room.
Step outside to enjoy the expansive lanai and connecting terrace, offering ideal spaces for outdoor dining or weekend lounging. The master suite is a private retreat with its own terrace access, a raised whirlpool tub, and sleek glass block accents for a touch of modern elegance.
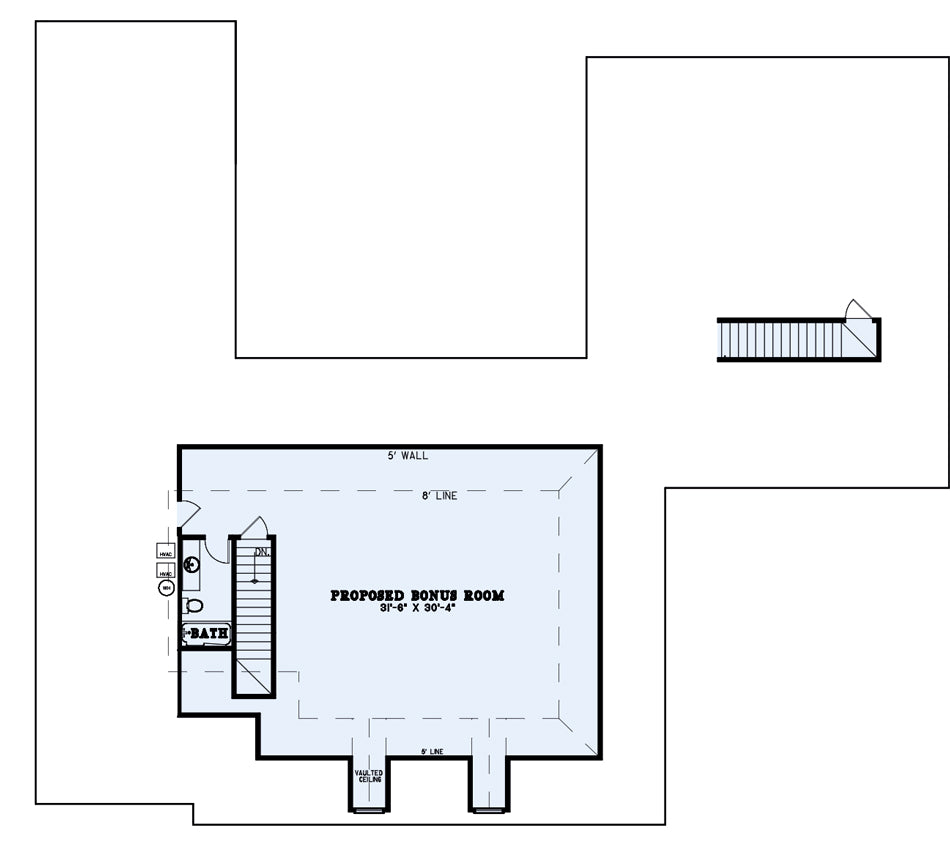
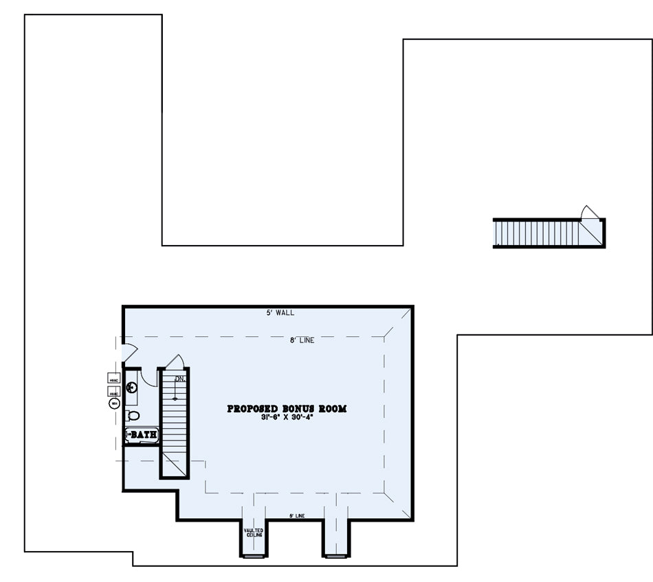
Upstairs, a massive bonus room with a full bath provides endless possibilities—whether used as a game room, guest suite, home theater, or office space.
- 3 Bedrooms, 3.5 Bathrooms
- Open Great Room with Built-In Media Center & Fireplace
- Gourmet Kitchen with Island & Eat-At Bar
- Spacious Lanai & Outdoor Terrace
- Private Master Suite with Whirlpool Tub & Terrace Access
- Huge Bonus Room with Full Bath Upstairs
- Ideal for Entertaining & Flexible Living
Whether you're hosting guests or enjoying peaceful evenings at home, Brandon Circle delivers luxury, comfort, and versatility in a thoughtfully crafted floor plan.
Home Specifications
- Total Living Space: 3474
- Ridge Height (Ft.) 28
- Main Floor (Sq. Ft.): 3474 Sq.Ft
- Ridge Height (In.) 3
- Upper Floor (Sq. Ft.): N/A
- Main Ceiling Height: 9
- Lower Floor (Sq. Ft.): N/A
- Upper Ceiling Height: 8
- Porch (Sq. Ft.): 642 Sq.Ft.
- Lower Ceiling Height: N/A
- Garage (Sq. Ft.): 1172 Sq.Ft.
- Garage: 3 Bay Yes
- Bonus (Sq.Ft): 1276 Sq.Ft.
- Garage/Carport Type:Rear Load Rear Load
- Bedrooms: 4
- Carport: N/A
- Full Baths: 4
- Roof Pitch: 9:12
- Porch Roof Pitch: N/A
- Stories: 1.0
- Wall Construction: 2x4
- Lower Bonus (Sq. Ft.): N/A
- Vaulted Ceiling: No
- Depth (Ft): 86
- Width (Ft): 89
- Depth (In.) 4
- Width (In.) N/A
- Total Sq. Ft. 6564 Sq.Ft.
- Customizable: Yes
Key Features
- Bonus Room Over Garage
- Covered Front Porch
- Formal Dining Room
- Great Room
- Home Office/Study
- Main Floor Master
- Nook/Breakfast Area
- Open Floor Plan House Plans
- Peninsula/Eating Bar
- Rear Alley Load
- Walk-in Closet
Plan Collections
Plan Styles
- Country Home House Plans
- Farmhouse House Plans
- Southern House Plans
- Traditional House Plans

