House Plan 1148 Carriage Place, Stone-And-Brick House Plan
Please log in or create account to add the product in wishlist.
Wishlist is not saved permanently yet. Please log in or create account to save it.
Or order by phone: (870) 931-5777
Floor Plans
Description
NDG 1148 Carriage Place – A Large, Elegant House Plan with Classic Style and Versatile Living Space
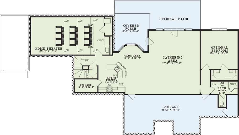
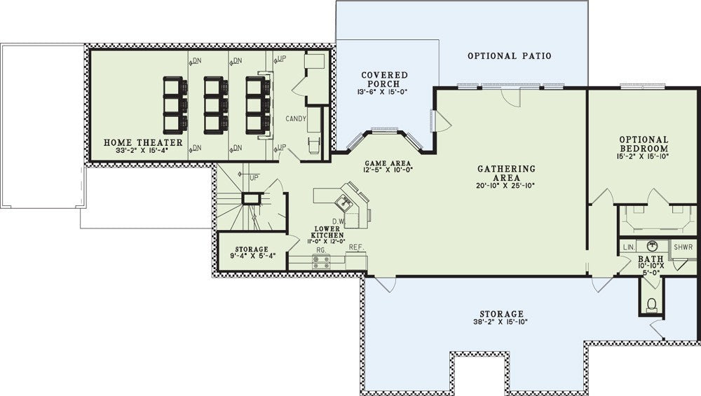
NDG 1148 Carriage Place is a generously sized two‑story house plan offering approximately 4,827 square feet of living space. This house plan is designed for homeowners wanting spacious interiors, refined architectural presence, and flexibility — ideal for families, multi‑generation living, or those who value ample living and entertaining areas.
With a broad footprint (about 97 feet 8 inches wide and 64 feet deep), this house plan provides a grand, yet functional layout that balances private living quarters and open, shared spaces. It’s well suited for larger lots and will stand out with its traditional exterior styling, making it a stately option for suburban or rural settings where space and presence matter.
Inside, Carriage Place offers the roominess and flexibility needed for modern lifestyles. Whether you envision large family gatherings, quiet privacy, guest accommodations, home offices, or hobbies — this house plan’s generous square footage and thoughtful layout adapts to evolving needs.
Key Highlights of House Plan NDG 1148 Carriage Place
- Large house plan with approximately 4,827 sq. ft. of living space — ideal for large families or multi‑generational households
- Spacious two‑story design — combining ample interior volume with classic house scale
- Wide footprint (~97 ft 8 in) and depth (~64 ft) — perfect for larger lots and strong curb appeal
- Flexible layout — accommodates multiple bedrooms, guest rooms, offices, hobby rooms, and more
- Traditional exterior styling — elegant and timeless design suitable for suburban or rural settings
- Versatile house plan — suitable for full‑time living, long‑term residence, or a home built for entertaining and comfort
Home Specifications
- Total Living Space: 4827
- Ridge Height (Ft.) 26
- Main Floor (Sq. Ft.): 2768 Sq.Ft
- Ridge Height (In.) 1
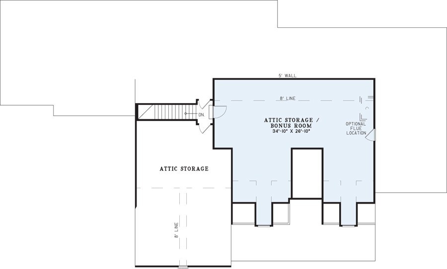
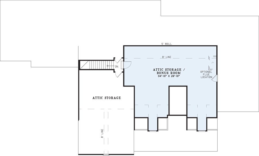
- Upper Floor (Sq. Ft.): N/A
- Main Ceiling Height: 9
- Lower Floor (Sq. Ft.): 2059 Sq.Ft.
- Upper Ceiling Height: 8
- Porch (Sq. Ft.): 838 Sq.Ft.
- Lower Ceiling Height: 9
- Garage (Sq. Ft.): 807 Sq.Ft.
- Garage: 3 Bay Yes
- Bonus (Sq.Ft): 913 Sq.Ft.
- Garage/Carport Type:Side Load and Front Load Side Load and Front Load
- Bedrooms: 5
- Carport: N/A
- Full Baths: 3
- Roof Pitch: 8:12
- Half Baths: 1
- Porch Roof Pitch: 5:12
- Stories: 2.0
- Wall Construction: 2x4
- Lower Bonus (Sq. Ft.): 636 Sq.Ft.
- Vaulted Ceiling: Yes
- Depth (Ft): 64
- Width (Ft): 97
- Depth (In.) 6
- Width (In.) 8
- Total Sq. Ft. 8021 Sq.Ft.
- Customizable: Yes
Key Features
- Bonus Room
- Covered Front Porch
- Covered Rear Porch
- Decks Patios Balconies
- Formal Dining Room
- Game Room
- Great Room
- Home Office/Study
- Home Theater
- Main Floor Master
- Nook/Breakfast Area
- Open Floor Plan House Plans
- Outdoor Living Space
- Peninsula/Eating Bar
- Screened Porch
- Split Bedroom Design
- Sunroom
- Vaulted High Cathedral Ceiling
- Walk-in Closet
Plan Collections
- Stone Village Collection House Plans
Plan Styles
- French Country House Plans
- Luxury House Plans
- Traditional House Plans









