House Plan 1332 The Mayfield, Stone-And-Brick House Plan
Please log in or create account to add the product in wishlist.
Wishlist is not saved permanently yet. Please log in or create account to save it.
Or order by phone: (870) 931-5777
Floor Plans
Description
Discover a Spacious Stone-and-Brick Home Plan: Mayfield NDG 1332
Mayfield (NDG 1332) is an elegant, well-proportioned home plan that combines classic stone-and-brick exterior charm with a flexible and efficient interior layout — ideal for families seeking comfort, style, and practicality in a long-term residence.
Highlights of the Mayfield House Plan
- Total living space of approximately 2,652 square feet — offering generous room for family living
- Four bedrooms and two full bathrooms — providing ample private space for family members or guests
- Two-bay side-load garage — offers convenience and storage while preserving curb appeal
- One-and-a-half story design — combining main-floor ease with additional upstairs living space for flexibility
- Home footprint width of about 58 ft 6 in and depth about 73 ft 4 in — adaptable to many lot sizes
- Wrap-around front porch with elegant columns, ten-foot beaded ceiling, and gentle arches — creating outstanding curb appeal and welcoming entry
- Open and flowing common areas: Great Room with fireplace opens to the grilling porch; kitchen with breakfast bay flows into formal dining — ideal for family living and entertaining
- Main-floor master suite with boxed ceiling for a private retreat; plus one additional main-floor bedroom and full bath — convenient layout for accessibility or guest use
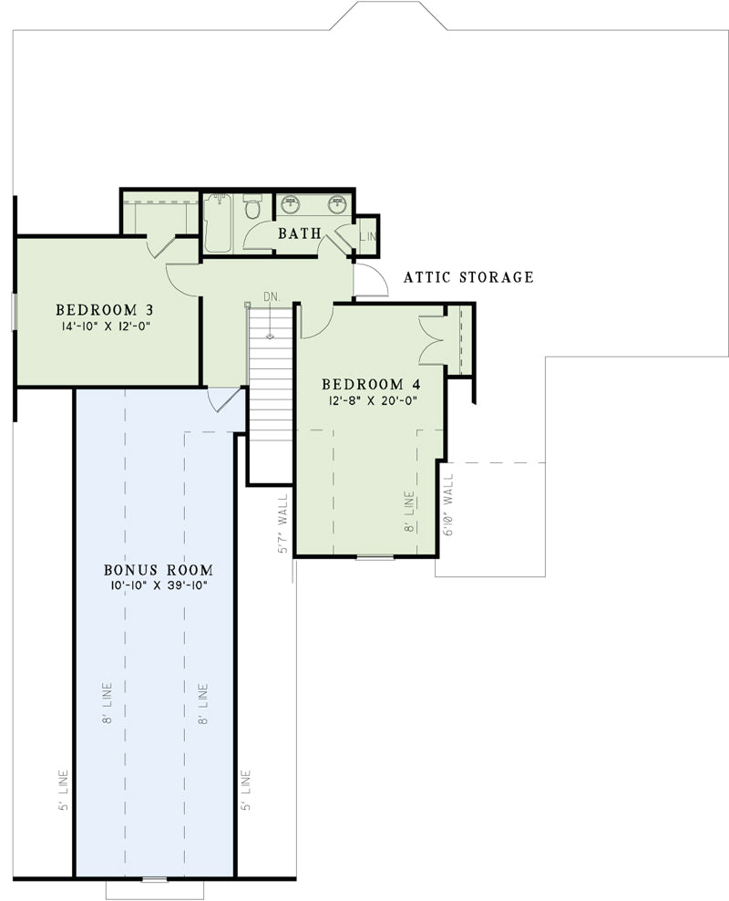
- Upper level includes two additional bedrooms, a full bath, and a large bonus room over the garage — offering extra space for family, guests, hobbies, or media use
A Home Plan That Combines Classic Style, Function, and Family Living
Mayfield strikes a balance between traditional charm and modern functionality. The stone-and-brick exterior, wrap-around porch, and architectural details give it timeless curb appeal. Inside, the layout supports both daily living and entertaining, with an open flow and plenty of private space. The mix of main-floor convenience (master suite, living areas) and upstairs flexibility (additional bedrooms plus bonus room) makes this plan a strong choice for families at different life stages — from young families to multigenerational households.
Home Specifications
- Total Living Space: 2652
- Ridge Height (Ft.) 28
- Main Floor (Sq. Ft.): 2001 Sq.Ft
- Ridge Height (In.) 5
- Upper Floor (Sq. Ft.): 651 Sq.Ft.
- Main Ceiling Height: 9
- Lower Floor (Sq. Ft.): N/A
- Upper Ceiling Height: 8
- Porch (Sq. Ft.): 367 Sq.Ft.
- Lower Ceiling Height: N/A
- Garage (Sq. Ft.): 586 Sq.Ft.
- Garage: 2 Bay Yes
- Bonus (Sq.Ft): 546 Sq.Ft.
- Garage/Carport Type:Court Yard Court Yard
- Bedrooms: 4
- Carport: N/A
- Full Baths: 2
- Roof Pitch: 8:12
- Porch Roof Pitch: 8:12
- Stories: 1.5
- Wall Construction: 2x4
- Lower Bonus (Sq. Ft.): N/A
- Vaulted Ceiling: No
- Depth (Ft): 73
- Width (Ft): 58
- Depth (In.) 4
- Width (In.) 6
- Total Sq. Ft. 4151 Sq.Ft.
- Customizable: Yes
Key Features
- Bonus Room Over Garage
- Covered Front Porch
- Covered Rear Porch
- Formal Dining Room
- Great Room
- Grilling Porch
- Main Floor Master
- Nook/Breakfast Area
- Open Floor Plan House Plans
- Outdoor Living Space
- Peninsula/Eating Bar
- Split Bedroom Design
- Walk-in Closet
- Walk-in-Pantry
Plan Collections
- Stone Village Collection House Plans
Plan Styles
- Arts & Crafts House Plans
- Country Home House Plans
- Craftsman House Plans
- Traditional House Plans









