House Plan 5364 The Aberdeen, European House Plan
Please log in or create account to add the product in wishlist.
Wishlist is not saved permanently yet. Please log in or create account to save it.
Or order by phone: (870) 931-5777
Floor Plans
Description
MEN 5364
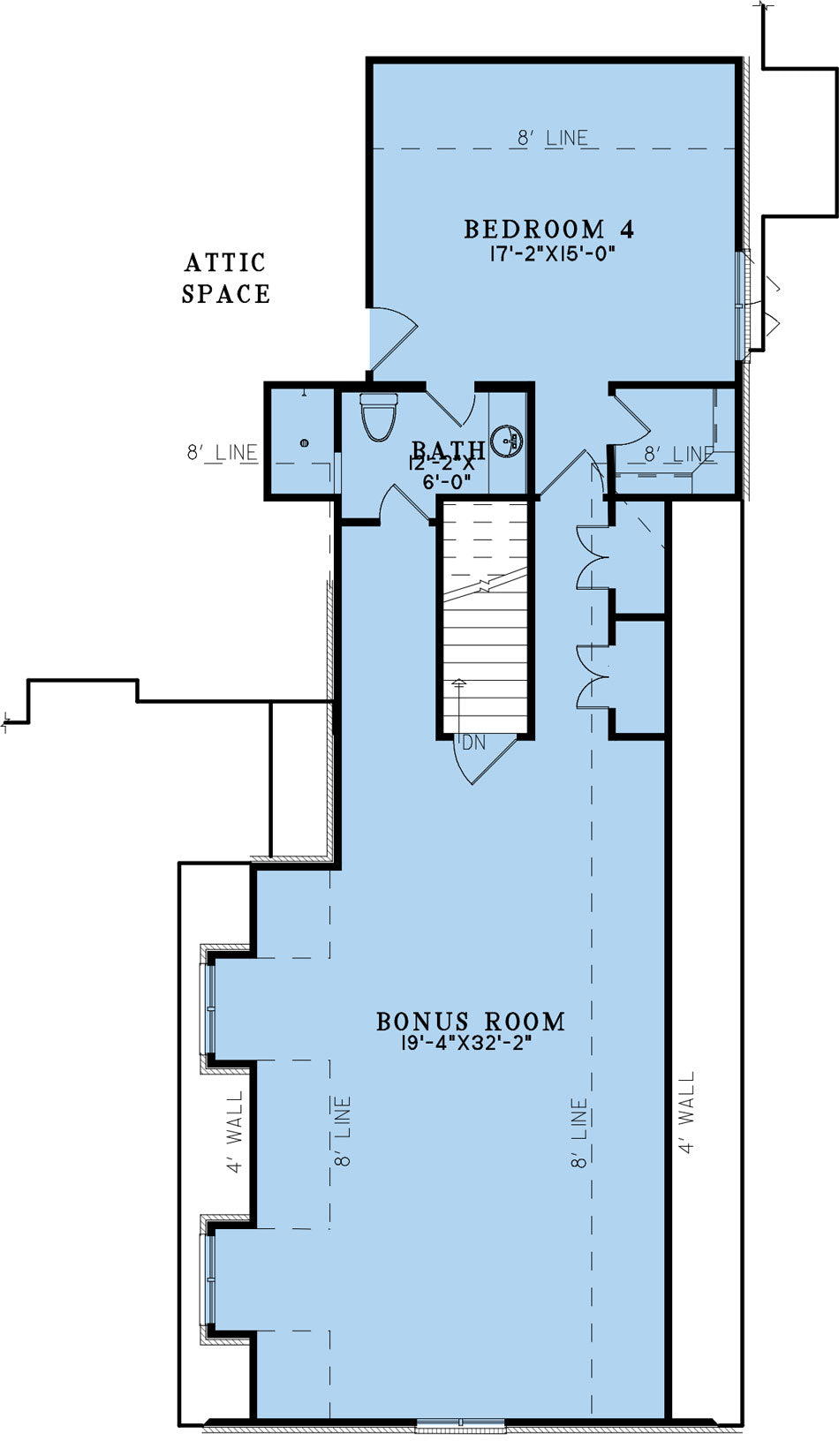
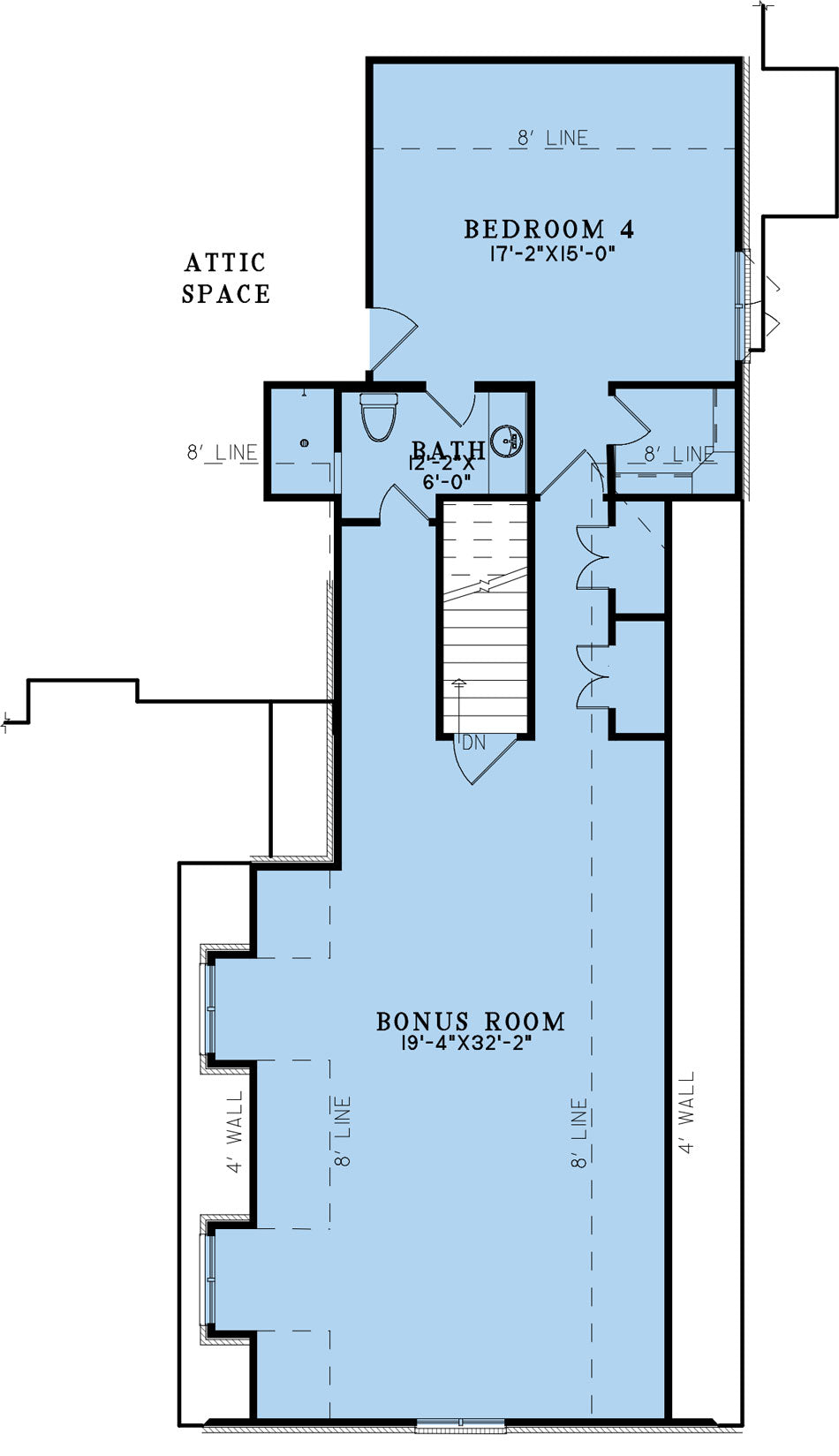
From award-winning designer Michael E. Nelson comes the newest addition to our European House Collection. The Aberdeen is the perfect luxury home plan to suit your family’s needs. A white brick exterior paired with both European and craftsman elements creates a unique curb appeal that is sure to turn heads. A grand hall and foyer lead you to a massive great room with timber beamed ceilings that will take your breath away. A large eat-at center island separates the kitchen from this space, and to one side you will find a hearth room with a second fireplace and a large walk-in pantry to the other. The master suite of The Aberdeen lies below a stunning vaulted ceiling, and the luxury master bath features two separate vanities, a large walk-in shower, a free-standing tub, and two massive walk-in closets, one of which enjoying access to a spacious laundry room. Bedrooms 2 and 3 are located on the opposite side and share a Jack and Jill bathroom with their own walk-in closets and toilets. Upstairs holds bedroom 4, which enjoys private access to a public bathroom, as well as a walk-in closet. A bonus room is also located above the 2-car garage. How would you customize this amazing house plan?
Customizing This House Plan
Make this house plan into your dream home!
We understand that when it comes to building a home you want it to be perfect for you. Our team of experience house plan specialists would love to be able to help you through the process of modifying this, or any of the other house plans found on our website, to better fit your needs. Whether you know the exact changes you need made or just have some ideas that would like to discuss with our team send us an email at: info@nelsondesigngroup.com or give us a call at 870-931-5777 What to know a little more about the process of customizing one of our house plans? Check out our Modifications FAQ page.
Home Specifications
- Total Living Space: 2998
- Ridge Height (Ft.) 28
- Main Floor (Sq. Ft.): 2998 Sq.Ft
- Ridge Height (In.) 0
- Upper Floor (Sq. Ft.): N/A
- Main Ceiling Height: 10
- Lower Floor (Sq. Ft.): N/A
- Upper Ceiling Height: 8
- Porch (Sq. Ft.): 469 Sq.Ft.
- Lower Ceiling Height: N/A
- Garage (Sq. Ft.): 892 Sq.Ft.
- Garage: 2 Bay Yes
- Bonus (Sq.Ft): 1233 Sq.Ft.
- Garage/Carport Type:Court Yard and Side Load Court Yard and Side Load
- Bedrooms: 3
- Carport: No
- Full Baths: 3
- Roof Pitch: 12:12
- Half Baths: 1
- Porch Roof Pitch: N/A
- Stories: 1.0
- Wall Construction: 2x4
- Lower Bonus (Sq. Ft.): N/A
- Vaulted Ceiling: Yes
- Depth (Ft): 88
- Width (Ft): 77
- Depth (In.) 2
- Width (In.) N/A
- Total Sq. Ft. 5592 Sq.Ft.
- Customizable: Yes
Key Features
- Bonus Room Over Garage
- Covered Front Porch
- Covered Rear Porch
- Decks Patios Balconies
- Great Room
- Home Office/Study
- Jack & Jill Bathroom
- Kitchen Island
- Main Floor Master
- Mudroom
- Nook/Breakfast Area
- Open Floor Plan House Plans
- Outdoor Living Space
- Peninsula/Eating Bar
- Split Bedroom Design
- Walk-in Closet
- Walk-in-Pantry
Plan Collections
- European House Plans Collection
- Michael E. Nelson House Plans Collection
Plan Styles
- Craftsman House Plans
- European House Plans
- Luxury House Plans
- Modern Contemporary House Plans
- Rustic House Plans
- Southern House Plans
- Traditional House Plans
- Vacation House Plans