House Plan 295 Waterfront Cove, Waterfront House Plan

House Plan:NDG 295
$2,050.00
Shipping calculated at checkout.
Add to Wishlist
[View Wishlist]

Or order by phone: (870) 931-5777

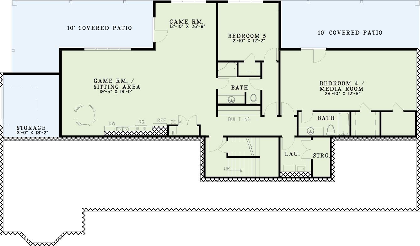
Floor Plans

Floor Plan #1

Description

Upon entering this lake home, a breathtaking view of the lake can be seen through the floor length windows. A vaulted ceiling in the great room opens through to the hearth room and kitchen creating a wonderful ambiance to enjoy the stone fireplace. The private den area features a pass through fireplace to the secluded sitting area, both accessible to the screened porch with French doors. The downstairs master bedroom has a luxurious master bath including ‘his and her’ walk-in closets. The upstairs has two private suites with access to the rear deck.

Home Specifications

  • Total Living Space: 6833
  • Ridge Height (Ft.) 31
  • Main Floor (Sq. Ft.): 3364 Sq.Ft
  • Ridge Height (In.) 4
  • Upper Floor (Sq. Ft.): 1540 Sq.Ft.
  • Main Ceiling Height: 9
  • Lower Floor (Sq. Ft.): N/A
  • Upper Ceiling Height: 8
  • Porch (Sq. Ft.): 798 Sq.Ft.
  • Lower Ceiling Height: 9
  • Garage (Sq. Ft.): 702 Sq.Ft.
  • Garage: No
  • Bonus (Sq.Ft): N/A
  • Garage/Carport Type:Porte-Cochere Porte-Cochere
  • Bedrooms: 5
  • Carport: Yes
  • Full Baths: 6
  • Roof Pitch: 10:12
  • Porch Roof Pitch: N/A
  • Stories: 1.5
  • Wall Construction: 2x4
  • Lower Bonus (Sq. Ft.): N/A
  • Vaulted Ceiling: Yes
  • Depth (Ft): 70
  • Width (Ft): 88
  • Depth (In.) 5
  • Width (In.) 8
  • Total Sq. Ft. 8333 Sq.Ft.
  • Customizable: Yes

Key Features

  • Balcony
  • Covered Rear Porch
  • Decks Patios Balconies
  • Game Room
  • Great Room
  • Home Office/Study
  • Kitchen Island
  • Main Floor Master
  • Media Room
  • No Formal Dining
  • Open Floor Plan House Plans
  • Outdoor Living Space
  • Screened Porch
  • Sitting Area
  • Split Bedroom Design
  • Walk-in Closet
  • Walk-in-Pantry

Plan Collections

  • Waterfront House Plans Collection

Plan Styles

  • Country Home House Plans
  • Traditional House Plans
  • Vacation House Plans

Plan Spec Download

PLAN SPEC DOWNLOAD

Customize This Plan

Need to make changes? We will get you a free price quote!

MODIFY THIS PLAN