House Plan 5464 Saint-Mont Place, European House Plan
Please log in or create account to add the product in wishlist.
Wishlist is not saved permanently yet. Please log in or create account to save it.
Or order by phone: (870) 931-5777
Floor Plans
Description
House Plan MEN 5464 – Saint-Mont Place
Experience timeless European elegance with the Saint-Mont Place House Plan 5464 by Nelson Design Group. This stunning 1½-story home offers approximately 3,755 square feet of luxurious living space, featuring 4 bedrooms, 4 full bathrooms, and 1 half bath. With its grand proportions — 77 feet wide by 90 feet deep — this design captures sophistication while maintaining warmth and comfort for everyday living.
Step through the elegant foyer into a spacious open-concept layout that seamlessly connects the kitchen, dining, and great room. A cozy hearth room adds charm and versatility, perfect for intimate gatherings or quiet evenings. Expansive covered porches extend your living space outdoors, providing the ideal setting for entertaining or simply enjoying peaceful moments in the open air.
Why Choose the Saint-Mont Place House Plan
- Elegant European-inspired architecture with timeless curb appeal
- Spacious open-concept main level perfect for family living and entertaining
- Large covered porch and outdoor spaces that blend indoor and outdoor living
- Four bedrooms and multiple baths offering comfort and flexibility
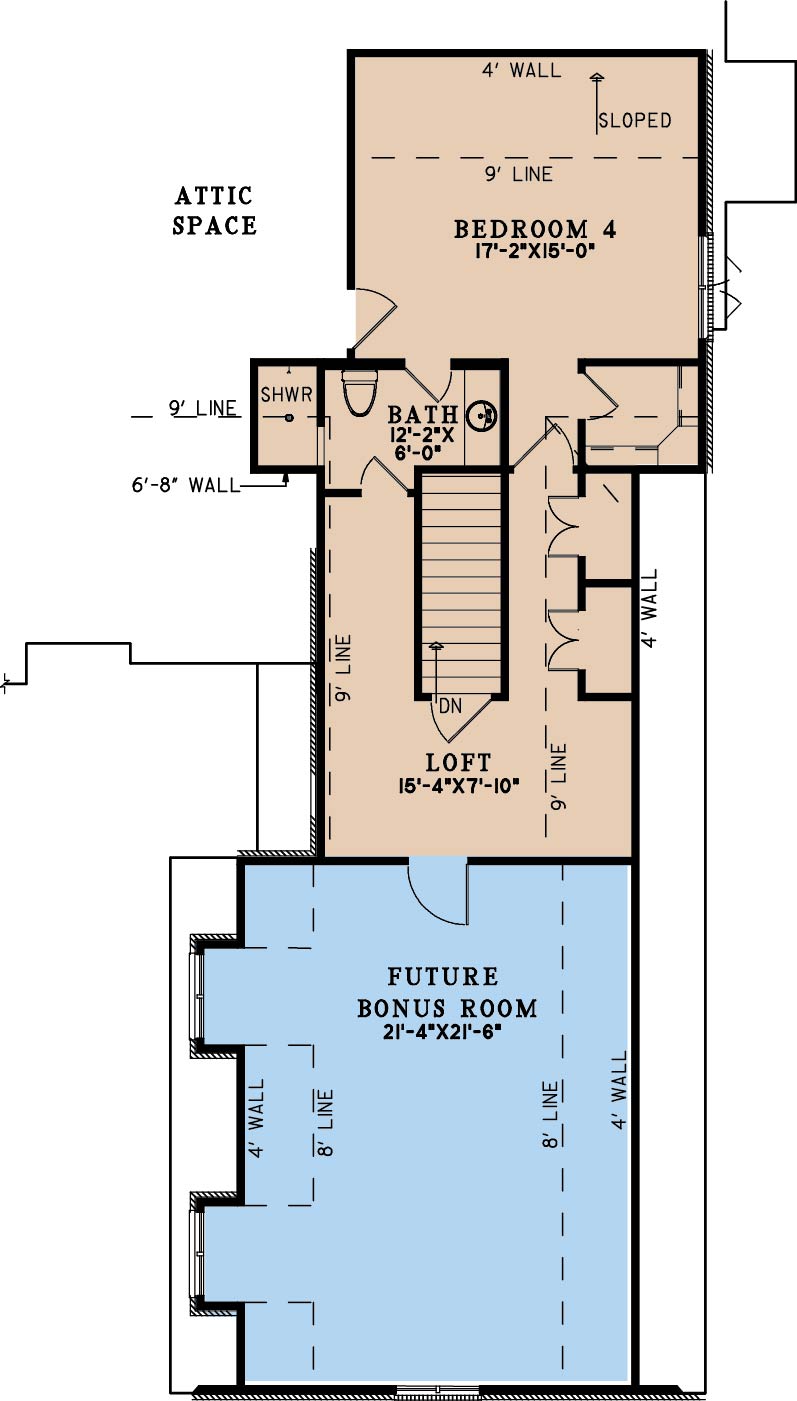
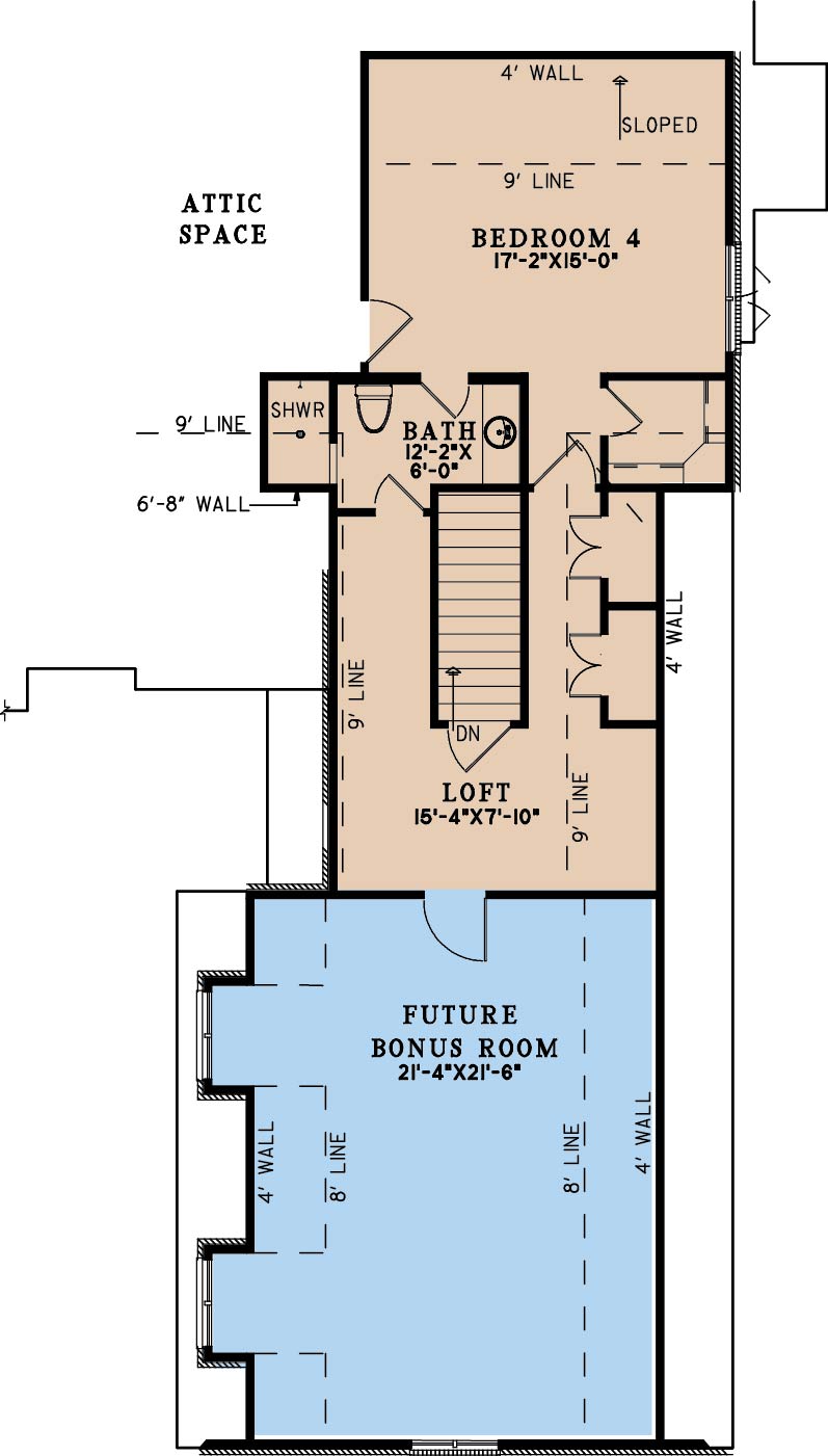
- Bonus room on the upper level for customizable space
- Side-load garage design maintaining both style and convenience
Build Your Dream Home
If you’re looking for house plans that combine European grace with the functionality of modern design, the Saint-Mont Place plan is the perfect fit. Every detail — from the flowing main-level layout to the elegant exterior — has been carefully designed to elevate your living experience.
Home Specifications
- Total Living Space: 3755
- Ridge Height (Ft.) 27
- Main Floor (Sq. Ft.): 3084 Sq.Ft
- Ridge Height (In.) 10
- Upper Floor (Sq. Ft.): 671 Sq.Ft.
- Main Ceiling Height: 10
- Lower Floor (Sq. Ft.): N/A
- Upper Ceiling Height: 8
- Porch (Sq. Ft.): 475 Sq.Ft.
- Lower Ceiling Height: N/A
- Garage (Sq. Ft.): 875 Sq.Ft.
- Garage: 2 Bay Yes
- Bonus (Sq.Ft): 550 Sq.Ft.
- Garage/Carport Type:Court Yard and Side Load Court Yard and Side Load
- Bedrooms: 4
- Carport: N/A
- Full Baths: 4
- Roof Pitch: 12:12
- Half Baths: 1
- Porch Roof Pitch: N/A
- Stories: 1.5
- Wall Construction: 2x4
- Lower Bonus (Sq. Ft.): N/A
- Vaulted Ceiling: Yes
- Depth (Ft): 90
- Width (Ft): 77
- Depth (In.) 2
- Width (In.) N/A
- Total Sq. Ft. 5655 Sq.Ft.
- Customizable: Yes
Key Features
- Bonus Room
- Formal Dining Room
- Great Room
- Kitchen Island
- Main Floor Master
- Open Floor Plan House Plans
- Outdoor Living Space
- Split Bedroom Design
- Walk-in Closet
- Walk-in-Pantry
Plan Collections
- European House Plans Collection
- Michael E. Nelson House Plans Collection
Plan Styles
- Craftsman House Plans
- French Classic House Plans
- French Country House Plans







