House Plan 1014 Barnwood Manor, Farmhouse House Plan
House Plan:SMN 1014
$2,250.00
/
Shipping calculated at checkout.
Add to Wishlist
Remove from Wishlist
[View Wishlist]
Please log in or create account to add the product in wishlist.
Wishlist is not saved permanently yet. Please log in or create account to save it.
Or order by phone: (870) 931-5777
Floor Plans
Description
Discover the Plan SMN 1014 “Barnwood Manor” from Nelson Design Group — a 1½‑story farmhouse design crafted for relaxed, spacious living.
Why You’ll Love This House Plan
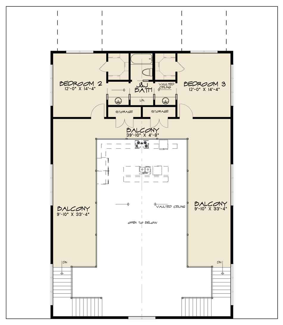
- Total living space of approximately 4,072 sq ft, including about 2,670 sq ft on the main floor and 1,402 sq ft on the upper level.
- Dimensions: about 60 ft 10 in wide by 78 ft deep.
- The exterior evokes a barn‑style appearance with high vaulted ceilings and an expansive wrap‑around porch (~1,915 sq ft), offering strong curb appeal and outdoor connection.
- Main‑floor open layout: foyer flows into the great room, kitchen and breakfast nook; a large pantry/wet bar links to the wrap‑around porch—ideal for indoor‑outdoor living and entertaining.
- Practical design elements: a mud‑room/laundry zone to minimize tracking from outdoors, and upstairs balconies overlooking the great room and kitchen below—adding architectural interest and flexibility for use as reading lofts or study zones.
Who This Plan Is For
If you’re drawn to a home that combines rustic character with ample space and smart layout, “Barnwood Manor” is an excellent fit. It’s especially well‑suited to:
- Families or homeowners who want a spacious home with the ambiance of a country‑style manor.
- Buyers who appreciate barn‑inspired architecture—vaulted open spaces, wrap‑around porch, steep roof pitches, and natural materials.
- Couples or families seeking indoor‑outdoor living with large porch space and easy flow from the great room and kitchen to outdoor areas.
- Anyone wanting flexible upstairs space—with balconies overlooking the main area, which can be adapted as a library, loft, home office, or recreational area.
Home Specifications
- Total Living Space: 4072
- Ridge Height (Ft.) 33
- Main Floor (Sq. Ft.): 2670 Sq.Ft
- Ridge Height (In.) 8
- Upper Floor (Sq. Ft.): 1402 Sq.Ft.
- Main Ceiling Height: 10
- Lower Floor (Sq. Ft.): N/A
- Upper Ceiling Height: 8
- Porch (Sq. Ft.): 1915 Sq.Ft.
- Lower Ceiling Height: N/A
- Garage (Sq. Ft.): N/A
- Garage: No
- Bonus (Sq.Ft): N/A
- Garage/Carport Type:N/A N/A
- Bedrooms: 3
- Carport: N/A
- Full Baths: 2
- Roof Pitch: 8:12
- Half Baths: 2
- Porch Roof Pitch: 6:12
- Stories: 1.5
- Wall Construction: 2x6
- Lower Bonus (Sq. Ft.): N/A
- Vaulted Ceiling: Yes
- Depth (Ft): 78
- Width (Ft): 60
- Depth (In.) N/A
- Width (In.) 10
- Total Sq. Ft. 5987 Sq.Ft.
- Customizable: Yes
Key Features
- Balcony
- Covered Front Porch
- Covered Rear Porch
- Fireplace in Master
- Great Room
- Home Office/Study
- Jack & Jill Bathroom
- Kitchen Island
- Main Floor Master
- Mudroom
- No Formal Dining
- Nook/Breakfast Area
- Open Floor Plan House Plans
- Screened Porch
- Split Bedroom Design
- Walk-in Closet
- Walk-in-Pantry
- Wrap-Around Porch
Plan Collections
- Barn Style Collection
- Barndominium House Plans Collection
- Customizable Exteriors House Plans Collection
- Modern Farmhouse Plans
- Seth M. Nelson House Plans Collection
Plan Styles
- Barndominium House Plans
- Country Home House Plans
- Farmhouse House Plans
- Rustic House Plans



