House Plan 1286 Southbend, Rustic House Plan
Please log in or create account to add the product in wishlist.
Wishlist is not saved permanently yet. Please log in or create account to save it.
Or order by phone: (870) 931-5777
Floor Plans
Description
Southbend – A Spacious Rustic House Plan for Comfortable Luxury
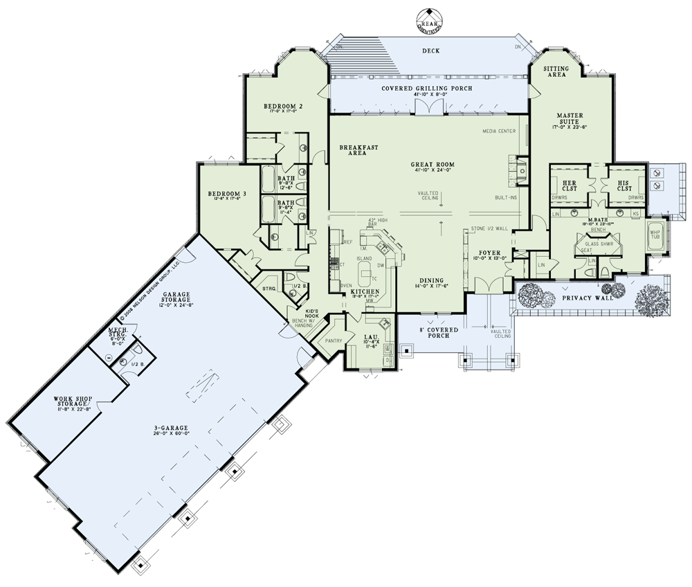
If you’re searching for house plans that combine rustic charm, generous living space, and functional design, Southbend (Plan NDG 1286) is an exceptional choice. This single-story home plan features expansive interiors, a thoughtful layout, and spaces designed for both everyday living and entertaining. With its practical design and timeless appeal, Southbend delivers comfort, style, and flexibility for modern homeowners.
Highlights of the Southbend House Plan
- Approximately 4,080 square feet of living space, providing abundant room for family life and entertaining
- Single-level layout for easy accessibility and seamless flow between living areas
- Three-car angled garage, offering ample space for vehicles, storage, or a workshop
- Grand great room with fireplace and built-ins, flowing into the kitchen, breakfast area, and dining room for open-concept living
- Luxurious master suite retreat with bay-window sitting area, private porch access, dual walk-in closets, recessed whirlpool tub, dual private toilets, and a large glass shower with dual seats
- Two additional bedrooms, each with private full bathrooms and walk-in closets, ideal for family or guests
- Large laundry room and walk-in pantry, providing convenience and efficient organization
- Thoughtful floorplan design that balances rustic elegance with modern comfort, making it ideal for everyday living and entertaining
Southbend combines spaciousness and functionality in a rustic, elegant package. Its open, well-planned design and luxurious features make it a perfect choice for homeowners seeking a home that is both comfortable and stylish.
Home Specifications
- Total Living Space: 4080
- Ridge Height (Ft.) 31
- Main Floor (Sq. Ft.): 4080 Sq.Ft
- Ridge Height (In.) 6
- Upper Floor (Sq. Ft.): N/A
- Main Ceiling Height: 10
- Lower Floor (Sq. Ft.): N/A
- Upper Ceiling Height: N/A
- Porch (Sq. Ft.): 597 Sq.Ft.
- Lower Ceiling Height: N/A
- Garage (Sq. Ft.): 2310 Sq.Ft.
- Garage: 3 Bay Yes
- Bonus (Sq.Ft): N/A
- Garage/Carport Type:Angled Angled
- Bedrooms: 3
- Carport: N/A
- Full Baths: 3
- Roof Pitch: 10:12
- Half Baths: 2
- Porch Roof Pitch: N/A
- Stories: 1.0
- Wall Construction: 2x6
- Lower Bonus (Sq. Ft.): N/A
- Vaulted Ceiling: Yes
- Depth (Ft): 110
- Width (Ft): 142
- Depth (In.) 6
- Width (In.) 8
- Total Sq. Ft. N/A
- Customizable: Yes
Key Features
- Covered Front Porch
- Covered Rear Porch
- Decks Patios Balconies
- Formal Dining Room
- Great Room
- Grilling Porch
- Kitchen Island
- Main Floor Master
- Mudroom
- Nook/Breakfast Area
- Open Floor Plan House Plans
- Outdoor Living Space
- Oversized Garage
- Peninsula/Eating Bar
- Sitting Area
- Split Bedroom Design
- Vaulted High Cathedral Ceiling
- Walk-in Closet
- Walk-in-Pantry
- Workshop Garage
Plan Collections
- Rustic Ridge House Plans Collection
Plan Styles
- Luxury House Plans
- Rustic House Plans
- Traditional House Plans









