House Plan 1320B Dunham Drive-B, Multi-Family House Plan
Please log in or create account to add the product in wishlist.
Wishlist is not saved permanently yet. Please log in or create account to save it.
Or order by phone: (870) 931-5777
Floor Plans
Description
Discover a Smart Multi‑Family House Plan: Dunham Drive B NDG 1320B
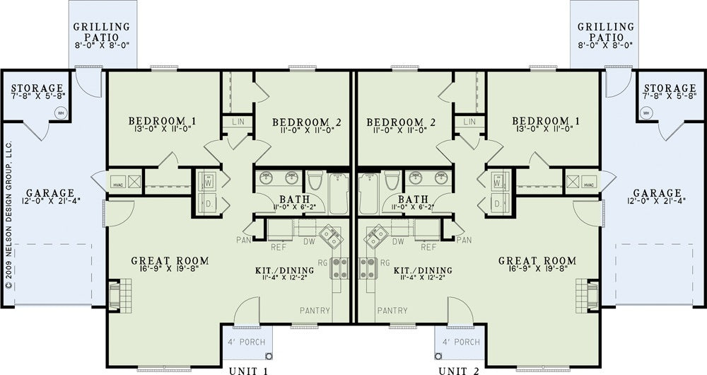
Dunham Drive B (NDG 1320B) is a practical, efficient multi‑unit house plan that maximizes rental potential and functionality — ideal for investors, rental property developments, or households needing multiple compact units on a single lot. This plan’s thoughtful layout and modest footprint make it a cost‑effective, build‑friendly solution for multi‑family housing or shared living arrangements.
Highlights of the Dunham Drive B House Plan
- Each unit offers approximately 1,012 square feet of living space — compact yet livable and cost-conscious
- Each unit includes 2 bedrooms and 1 full bathroom — a practical layout for small families, couples, or roommates
- One‑story layout — simplicity and ease of access for tenants or occupants
- Front‑load, single‑car garage provided per unit — offering secure parking or storage while maintaining a clean exterior facade
- Open floor plan connecting kitchen and Great Room — enhances usable living space and supports flexible living or rental use
- Covered front porch per unit — adds modest outdoor living or seating space, improving curb appeal and tenant comfort
- Compact building footprint (width ~82 ft 8 in, depth ~35 ft) — helpful for fitting multiple units on one parcel or on narrow/urban lots
- Designed for efficiency — straightforward layout and minimal wasted space make this plan economical to build and maintain
A Multi‑Unit Plan Designed for Practicality, Rental Value, and Flexible Living
Dunham Drive B delivers a balanced multi‑unit solution that doesn’t compromise on livability despite its compact size. Its efficient use of space — 2 bedrooms, 1 bath, garage, and open living area in roughly 1,012 sq ft — makes it a practical choice for renters, small families, or shared households. The combination of garages, covered porches, and a clean, efficient layout enhances tenant comfort and long-term value, while the small footprint keeps construction and land costs reasonable.
Whether you’re planning rental units, shared housing, or a multi‑unit property for extended family or income, Dunham Drive B stands out as a smart, functional, and build‑ready plan — offering reliable value, flexibility, and efficient design.
Home Specifications
- Total Living Space: 1012
- Ridge Height (Ft.) 18
- Main Floor (Sq. Ft.): 1012 Sq.Ft
- Ridge Height (In.) 4
- Upper Floor (Sq. Ft.): N/A
- Main Ceiling Height: 9
- Lower Floor (Sq. Ft.): N/A
- Upper Ceiling Height: N/A
- Porch (Sq. Ft.): 24 Sq.Ft.
- Lower Ceiling Height: N/A
- Garage (Sq. Ft.): 324 Sq.Ft.
- Garage: 1 Bay Yes
- Bonus (Sq.Ft): N/A
- Garage/Carport Type:Front Load Front Load
- Bedrooms: 2
- Carport: N/A
- Full Baths: 1
- Roof Pitch: 7:12
- Porch Roof Pitch: N/A
- Stories: 1.0
- Wall Construction: 2x4
- Lower Bonus (Sq. Ft.): N/A
- Vaulted Ceiling: No
- Depth (Ft): 35
- Width (Ft): 82
- Depth (In.) N/A
- Width (In.) 8
- Total Sq. Ft. 1360 Sq.Ft.
- Customizable: Yes
Key Features
- Covered Front Porch
- Decks Patios Balconies
- Economic Structure
- Great Room
- No Formal Dining
- Open Floor Plan House Plans
- Walk-in Closet
Plan Collections
- Multi-Family House Plans
Plan Styles
- Traditional House Plans







