House Plan 1381 Odysseas, European House Plan
Please log in or create account to add the product in wishlist.
Wishlist is not saved permanently yet. Please log in or create account to save it.
Or order by phone: (870) 931-5777
Floor Plans
Description
Discover a Grand European-Style House Plan: Odysseas NDG 1381
Odysseas (NDG 1381) is a luxurious, spacious two-story European-style home designed for comfort, entertaining, and refined living. This expansive plan is ideal for families who value elegance, versatile living spaces, and functionality in a grand yet practical layout.
Highlights of the Odysseas House Plan
- Approximately 6,363 square feet of living space
- Six bedrooms and five full bathrooms, plus one half bath
- Five-bay angled garage with connecting porte-cochere and spacious motor court
- Expansive Great Room with stone fireplace opening to a covered Outdoor Living/Grilling Porch with fireplace
- Large kitchen with prep island, peninsula bar, walk-in pantry with separate freezer, and adjacent Hearth/Dining Room
- Main-floor guest room with private bathroom
- Home theater and safe room for entertainment and added security
- Luxurious master suite with dual walk-in closets, raised corner whirlpool tub, glass shower with seating, double vanities, and private toilet
- Huge laundry room adjacent to the master suite
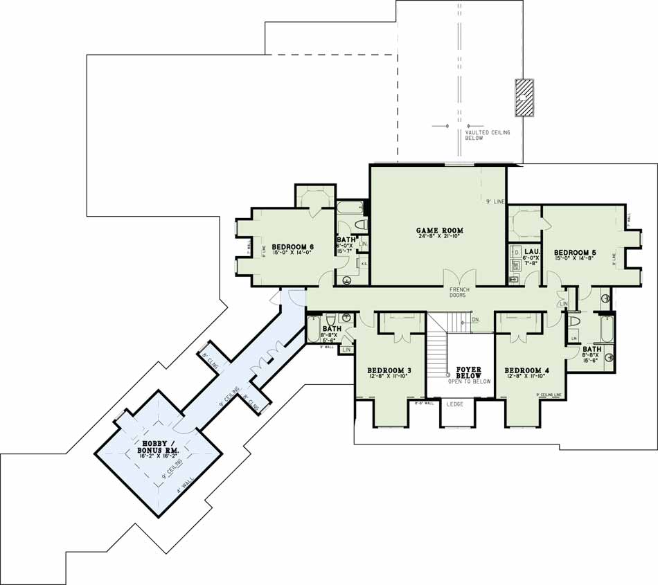
- Four additional bedrooms upstairs with walk-in closets; two have private full bathrooms, two share a bathroom
- Large upstairs Game Room for recreation and family time
- Bonus/Hobby Room above one of the garages for flexible use
A Luxury Home Plan Built for Style, Space, and Flexibility
Odysseas balances grand architecture with practical living. Expansive common areas, multiple private suites, and flexible bonus spaces accommodate large families, frequent entertaining, or multigenerational living. The layout thoughtfully combines privacy and togetherness, indoor comfort and outdoor living.
This plan is perfect for those building a forever home or a statement residence, offering elegant design, generous square footage, and functional features that will serve well for years to come.
Home Specifications
- Total Living Space: 6363
- Ridge Height (Ft.) 40
- Main Floor (Sq. Ft.): 4113 Sq.Ft
- Ridge Height (In.) 4
- Upper Floor (Sq. Ft.): 2250 Sq.Ft.
- Main Ceiling Height: 10
- Lower Floor (Sq. Ft.): N/A
- Upper Ceiling Height: 9
- Porch (Sq. Ft.): 1139 Sq.Ft.
- Lower Ceiling Height: N/A
- Garage (Sq. Ft.): 2063 Sq.Ft.
- Garage: 5 Bay Yes
- Bonus (Sq.Ft): 536 Sq.Ft.
- Garage/Carport Type:Front Load, Rear Load, Angled, and Porte-Cochere Front Load, Rear Load, Angled, and Porte-Cochere
- Bedrooms: 6
- Carport: Yes
- Full Baths: 5
- Roof Pitch: 16:12
- Half Baths: 1
- Porch Roof Pitch: N/A
- Stories: 2.0
- Wall Construction: 2x4
- Lower Bonus (Sq. Ft.): N/A
- Vaulted Ceiling: Yes
- Depth (Ft): 107
- Width (Ft): 120
- Depth (In.) 2
- Width (In.) 6
- Total Sq. Ft. 9565 Sq.Ft.
- Customizable: Yes
Key Features
- Bonus Room Over Garage
- Covered Front Porch
- Covered Rear Porch
- Formal Dining Room
- Game Room
- Great Room
- Grilling Porch
- Home Office/Study
- Home Theater
- In-Law Suite Private Guest
- Jack & Jill Bathroom
- Kitchen Island
- Main Floor Master
- Mudroom
- Nook/Breakfast Area
- Open Floor Plan House Plans
- Outdoor Living Space
- Peninsula/Eating Bar
- Saferoom
- Split Bedroom Design
- Walk-in Closet
- Walk-in-Pantry
- Workshop Garage
- Wrap-Around Porch
- Porte-Cochere
Plan Collections
- European House Plans Collection
Plan Styles
- European House Plans
- Luxury House Plans
- Traditional House Plans

